8.2
Смотреть все фото
БЕЗ КОМИССИИ ID: 1381078 Рейтинг8.1 КлассB+
Бизнес-центр «Лесная»

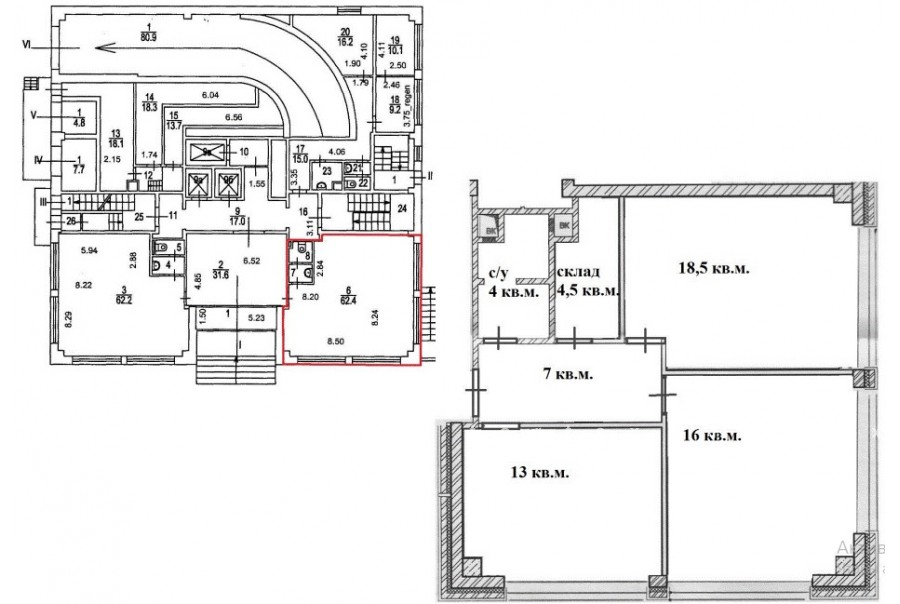
Аренда офиса 85 м²

Москва, 4-й Лесной переулок, 13

Белорусская → 405 м
~ 4 мин
Арендная плата в месяц 320 000 ₽ 45 200 ₽/м² в год С учётом НДС

Презентация по предложению

Собираете информацию? Получите подробную презентацию в удобном формате!

Площадь 85 м²
Состояние Готово к въезду
Планировка Смешанная
Этаж 1

Описание

Преимущества
  • Класс B+
  • Пешком от метро
  • Кондиционирование и вентиляция
  • Свой паркинг
  • Несколько провайдеров связи
Предлагаем в долгосрочную прямую аренду офисное помещение класса B+ площадью 85 квадратных метров в бизнес-центре "Лесная".

Москва, ЦАО, 4-й Лесной переулок, 13

Удобное расположение здания для всех видов транспорта:
- Автомобиль: близость транспортных магистралей, таких как Ленинградский проспект и других.
- Возможность аренды парковочных мест.
- Ближайшее метро: от метро "Белорусская" всего 4 мин пешком

Офис класса B+:
- Помещение с отделкой, готово к въезду
- Вентиляция: Приточно-вытяжная вентиляция
- Кондиционирование: центральное
- Круглосуточная охрана и видеонаблюдение


Если данное предложение подходит Вашему запросу:

1. Мы отправим Вам подробную презентацию с планировкой и фотографиями в течение 10 минут после звонка, чтобы Вы могли поделиться информацией с руководством или с коллегами.
2. Мы готовы ответить на любые Ваши вопросы о помещении и коммерческих условиях аренды.
3. Покажем помещение в удобное для Вас время с менеджером в здании, при необходимости подготовим виртуальный тур.

Звоните нам в любое время. По будням мы сможем ответить на Ваши вопросы до 19:00. В выходные или вечернее время мы передадим Ваш контакт нашему менеджеру по аренде.

Коммерческие условия

Арендная плата 320 000 ₽
Ставка арендной платы 45 200 ₽ м²/год
Эксплуатационные расходы Включены в ставку
Налоги С учётом НДС
Тип договора Прямая аренда
Срок договора от 11 месяцев
Размер платежей 1 месяц
Обеспечительный платеж 2 месяц
Статус Свободен

О бизнес-центре

Класс B+
Этажность 8
Лифты Есть
Общая площадь 6 400 м²
Год постройки 2007
Паркинг Подземный
Вентиляция приточно-вытяжная
Кондиционирование центральное
Телекоммуникации Интернет/Телефония

Расположение

Подробная презентацию по предложению

Собираете информацию? Получите подробную презентацию в удобном формате, чтобы обсудить вариант с коллегами или переслать руководству!

Похожие предложения в других зданиях

БЕЗ КОМИССИИ ID: 1380396 Рейтинг8.6 КлассА

Москва, Новослободская улица, 23

Менделеевская → 12 м
~ 0 мин
Арендная плата в месяц 341 667 ₽ 50 000 ₽/м² в год С учётом НДС
Характеристики 82 м² 7 этаж Готово к въезду
Преимущества
  • Класс А
  • Пешком от метро
  • Кондиционирование и вентиляция
  • Свой паркинг
  • Несколько провайдеров связи
  • Развитая инфраструктура

Сдается в долгосрочную аренду помещение под офис класса А площадью 82 квадр. метров в бизнес-центре "Мейерхольд"... подробнее

Презентация по предложению

Собираете информацию? Получите подробную презентацию в удобном формате!

БЕЗ КОМИССИИ ID: 1307342 Рейтинг7.0 КлассB

Москва, Трёхпрудный переулок, 4 с1

Маяковская → 764 м
~ 8 мин
Арендная плата в месяц 472 000 ₽ 56 600 ₽/м² в год С учётом НДС
Характеристики 100 м² 3 этаж Под отделку
Преимущества
  • Класс B
  • Пешком от метро
  • Кондиционирование и вентиляция
  • Свой паркинг

Предлагается в долгосрочную прямую аренду помещение под офис класса B общей площадью 100 кв.м в историческом бизнес-центре... подробнее

Презентация по предложению

Собираете информацию? Получите подробную презентацию в удобном формате!

БЕЗ КОМИССИИ ID: 1320003 Рейтинг7.0 КлассB

Москва, Трёхпрудный переулок, 4 с1

Маяковская → 764 м
~ 8 мин
Арендная плата в месяц 448 250 ₽ 56 600 ₽/м² в год С учётом НДС
Характеристики 95 м² 6 этаж Под отделку
Преимущества
  • Класс B
  • Пешком от метро
  • Кондиционирование и вентиляция
  • Свой паркинг

Предлагается в долгосрочную прямую аренду помещение под офис класса B общей площадью 95 квадр. метров в историческом бизнес-центре... подробнее

Презентация по предложению

Собираете информацию? Получите подробную презентацию в удобном формате!

БЕЗ КОМИССИИ ID: 1316237 Рейтинг7.0 КлассB

Москва, Трёхпрудный переулок, 4 с1

Маяковская → 764 м
~ 8 мин
Арендная плата в месяц 373 453 ₽ 56 700 ₽/м² в год С учётом НДС
Характеристики 79 м² 6 этаж Под отделку
Преимущества
  • Класс B
  • Пешком от метро
  • Кондиционирование и вентиляция
  • Свой паркинг

Сдается в долгосрочную прямую аренду офисное помещение класса B площадью 79 квадр. метров в историческом бизнес-центре... подробнее

Презентация по предложению

Собираете информацию? Получите подробную презентацию в удобном формате!

БЕЗ КОМИССИИ ID: 1377594 Рейтинг7.0 КлассB

Москва, Трёхпрудный переулок, 4 с1

Маяковская → 764 м
~ 8 мин
Арендная плата в месяц 334 049 ₽ 56 500 ₽/м² в год С учётом НДС
Характеристики 71 м² 3 этаж Под отделку
Преимущества
  • Класс B
  • Пешком от метро
  • Кондиционирование и вентиляция
  • Свой паркинг

Предлагается в долгосрочную аренду офисный блок класса B общей площадью 71 квадратных метров в историческом бизнес-центре... подробнее

Презентация по предложению

Собираете информацию? Получите подробную презентацию в удобном формате!

Посмотреть все похожие предложения
Отнеситесь рационально к процессу поиска нового офиса!

Просто ответьте на 3 вопроса, и наши специалисты сами предложат оптимальные варианты под ваш бюджет

.