8.2
Смотреть все фото
БЕЗ КОМИССИИ ID: 1317326 Рейтинг9.0 КлассB
Жилой дом «Life Time»

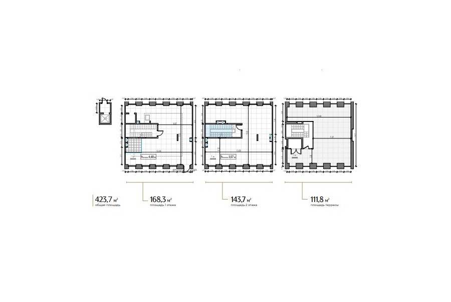
Продажа офиса 424 м²

Москва, улица Сергея Макеева, вл11/9с1-10

Улица 1905 года → 1.1 км
~ 11 мин
Стоимость 361.25 млн ₽ 852 000 ₽/м²

Презентация по предложению

Собираете информацию? Получите подробную презентацию в удобном формате!

Площадь 424 м²
Состояние Под отделку
Планировка Открытая
Этаж 1 - 3

Описание

Преимущества
  • Класс B
  • Пешком от метро
  • Новое строительство
  • Кондиционирование и вентиляция
  • Свой паркинг
В продаже офис общей площадью 424 кв.м в жилом комплексе "Life Time".

Помещение можно адаптировать под любой бизнес благодаря функциональной планировке - идеальный баланс комфорта и экономической выгоды. Оптимальное решение для стабильного бизнеса или выгодных инвестиций.

Офис класса B:
- Офис в состоянии shell & core
- Вентиляция: Приточно-вытяжная вентиляция
- Кондиционирование: центральное

О жилом доме:
Москва, ЦАО, улица Сергея Макеева, вл11/9с1-10

Удобная локация здания:
- Автомобиль: близость транспортных магистралей, таких как Звенигородское шоссе, Третье Транспортное Кольцо и других.
- Возможность аренды парковочных мест.
- Ближайшее метро: от метро "Улица 1905 года" всего 11 мин пешком



Если данное предложение подходит Вашему запросу:

1. Мы подготовили презентацию с информацией о помещении, фотографиями и планировкой, чтобы Вы могли поделиться ей с коллегами или руководством. Попросите об этом нашего менеджера по телефону в объявлении.
2. Задайте любые вопросы менеджеру по телефону, готовы обсуждать любые предложения по финансовым условиям договора продажи.

Вы можете позвонить нам в любое время. Мы ответим на Ваши вопросы по будням до 19:00, а поздно вечером или в выходные сможем передать Ваш контакт нашему менеджеру.

О бизнес-центре

Класс B
Этажность 24
Лифты Есть
Общая площадь 102 002 м²
Год постройки 2026
Паркинг Наземный
Вентиляция приточно-вытяжная
Кондиционирование центральное
Телекоммуникации Интернет/Телефония

Расположение

Подробная презентацию по предложению

Собираете информацию? Получите подробную презентацию в удобном формате, чтобы обсудить вариант с коллегами или переслать руководству!

Похожие предложения в других зданиях

БЕЗ КОМИССИИ ID: 287362 Рейтинг7.7 КлассB+

Москва, Шмитовский проезд, 16 с2

Улица 1905 года → 1.56 км
~ 16 мин
Стоимость 147 000 000 ₽ 350 000 ₽/м²
Характеристики 420 м² -1 этаж Готово к въезду
Преимущества
  • Класс B+
  • Пешком от метро
  • Кондиционирование и вентиляция
  • Свой паркинг
  • Развитая инфраструктура

Продается офис общей площадью 420 кв. метров в жилом комплексе. .. подробнее

Презентация по предложению

Собираете информацию? Получите подробную презентацию в удобном формате!

БЕЗ КОМИССИИ ID: 1320660 Рейтинг7.7 КлассB+

Москва, Шмитовский проезд, 16 с2

Улица 1905 года → 1.56 км
~ 16 мин
Стоимость 73 500 000 ₽ 350 000 ₽/м²
Характеристики 210 м² -1 этаж Готово к въезду
Преимущества
  • Класс B+
  • Пешком от метро
  • Кондиционирование и вентиляция
  • Свой паркинг
  • Развитая инфраструктура

Продается офис площадью 210 кв.м в жилом комплексе. .. подробнее

Презентация по предложению

Собираете информацию? Получите подробную презентацию в удобном формате!

БЕЗ КОМИССИИ ID: 1320661 Рейтинг7.7 КлассB+

Москва, Шмитовский проезд, 16 с2

Улица 1905 года → 1.56 км
~ 16 мин
Стоимость 73 500 000 ₽ 350 000 ₽/м²
Характеристики 210 м² -1 этаж Готово к въезду
Преимущества
  • Класс B+
  • Пешком от метро
  • Кондиционирование и вентиляция
  • Свой паркинг
  • Развитая инфраструктура

Продается офис общей площадью 210 кв. метров в жилом комплексе. .. подробнее

Презентация по предложению

Собираете информацию? Получите подробную презентацию в удобном формате!

БЕЗ КОМИССИИ ID: 1378155 Рейтинг8.3 КлассB

Москва, Шмитовский проезд, 3 с3

Улица 1905 года → 960 м
~ 10 мин
Стоимость 189 999 810 ₽ 417 600 ₽/м²
Характеристики 455 м² 3 этаж Готово к въезду
Преимущества
  • Класс B
  • Пешком от метро
  • Кондиционирование и вентиляция
  • Свой паркинг
  • Развитая инфраструктура

В продаже офисное помещение площадью 455 квадратных метров в бизнес-центре. .. подробнее

Презентация по предложению

Собираете информацию? Получите подробную презентацию в удобном формате!

БЕЗ КОМИССИИ ID: 1328076 Рейтинг8.3 КлассB

Москва, Шмитовский проезд, 3 с3

Улица 1905 года → 960 м
~ 10 мин
Стоимость 189 999 810 ₽ 417 600 ₽/м²
Характеристики 455 м² 2 этаж Готово к въезду
Преимущества
  • Класс B
  • Пешком от метро
  • Кондиционирование и вентиляция
  • Свой паркинг
  • Развитая инфраструктура

В продаже офисный блок общей площадью 455 квадратных метров в бизнес-центре. .. подробнее

Презентация по предложению

Собираете информацию? Получите подробную презентацию в удобном формате!

Посмотреть все похожие предложения
Отнеситесь рационально к процессу поиска нового офиса!

Просто ответьте на 3 вопроса, и наши специалисты сами предложат оптимальные варианты под ваш бюджет

.