8.2
Смотреть все фото
БЕЗ КОМИССИИ ID: 440935 Рейтинг6.7 КлассB
Бизнес-центр «Лихоборы»

Аренда офиса 740 м²

Москва, 2-й Лихачёвский переулок, 1 с11

Коптево → 993 м
~ 10 мин
Арендная плата в месяц 678 300 ₽ 11 000 ₽/м² в год С учётом НДС

Презентация по предложению

Собираете информацию? Получите подробную презентацию в удобном формате!

Площадь 740 м²
Состояние Готово к въезду
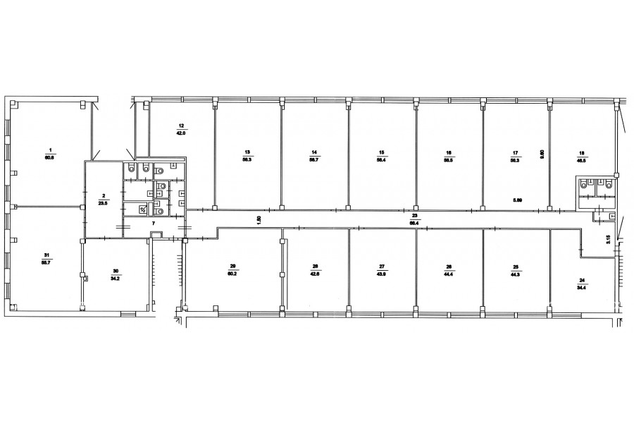
Планировка Кабинетная
Этаж 3

Описание

Преимущества
  • Класс B
  • Пешком от метро
  • Кондиционирование и вентиляция
  • Свой паркинг
Сдаем в долгосрочную аренду офисное помещение класса B общей площадью 740 квадратных метров в бизнес-центре "Лихоборы".

Москва, САО, 2-й Лихачевский переулок, 1 с11

Удобная локация здания:
- Возможность аренды парковочных мест.
- Ближайшее метро: от метро "Коптево" всего 12 мин пешком

Офис класса B:
- Помещение готово к въезду
- Вентиляция: Приточно-вытяжная вентиляция
- Круглосуточная охрана и видеонаблюдение


Если данное предложение подходит Вашему запросу:

1. Мы подготовили презентацию с информацией о помещении, фотографиями и планировкой, чтобы Вы могли поделиться ей с коллегами или руководством. Попросите об этом нашего менеджера по телефону в объявлении.
2. Ответим на любые Ваши вопросы, готовы обсуждать любые предложения по коммерческим условиям аренды помещения.
3. Проводим показы ежедневно, договоримся на удобное для Вас время. Можем организовать виртуальный тур по офисному блоку.

Звоните нам в любое время. По будням мы сможем ответить на Ваши вопросы до 19:00. В выходные или вечернее время мы передадим Ваш контакт нашему менеджеру по аренде.

Коммерческие условия

Арендная плата 678 330 ₽
Ставка арендной платы 11 000 ₽ м²/год
Эксплуатационные расходы Включены в ставку
Налоги С учётом НДС
Тип договора Прямая аренда
Срок договора от 11 месяцев
Размер платежей 1 месяц
Обеспечительный платеж 1 месяц
Статус Сдан

О бизнес-центре

Класс B
Этажность 5
Лифты Есть
Общая площадь 5 000 м²
Год постройки 2009
Паркинг Наземный
Вентиляция приточно-вытяжная
Кондиционирование отсутствует
Телекоммуникации Интернет/Телефония

Расположение

Подробная презентацию по предложению

Собираете информацию? Получите подробную презентацию в удобном формате, чтобы обсудить вариант с коллегами или переслать руководству!

Похожие предложения в других зданиях

БЕЗ КОМИССИИ ID: 168469 Рейтинг6.0 КлассB

Москва, Сенежская улица, 1/9

Коптево → 2.63 км
~ 16 мин
Арендная плата в месяц 583 333 ₽ 10 000 ₽/м² в год С учётом НДС
Характеристики 700 м² 3 этаж Готово к въезду
Преимущества
  • Класс B
  • Кондиционирование и вентиляция
  • Свой паркинг

Предлагается в прямую аренду офисное помещение класса B общей площадью 700 квадратных метров в историческом бизнес-центре... подробнее

Презентация по предложению

Собираете информацию? Получите подробную презентацию в удобном формате!

БЕЗ КОМИССИИ ID: 279920 Рейтинг6.5 КлассB

Москва, Смольная улица, 12

Речной вокзал → 1.83 км
~ 18 мин
Арендная плата в месяц 626 897 ₽ 11 200 ₽/м² в год С учётом НДС
Характеристики 670 м² 1 этаж Готово к въезду
Преимущества
  • Класс B
  • Пешком от метро
  • Кондиционирование и вентиляция
  • Свой паркинг

Собственник сдает в прямую аренду офисное помещение класса B площадью 670 квадратных метров в бизнес-центре... подробнее

Презентация по предложению

Собираете информацию? Получите подробную презентацию в удобном формате!

БЕЗ КОМИССИИ ID: 13906 Рейтинг6.0 КлассB

Москва, Дмитровское шоссе, 71б

Верхние лихоборы → 289 м
~ 3 мин
Арендная плата в месяц 700 000 ₽ 10 500 ₽/м² в год С учётом НДС
Характеристики 800 м² 3 этаж Готово к въезду
Преимущества
  • Класс B
  • Пешком от метро
  • Кондиционирование и вентиляция
  • Свой паркинг

Предлагается в долгосрочную аренду помещение под офис класса B общей площадью 800 кв. метров в новом бизнес-центре "Дмитровский"... подробнее

Презентация по предложению

Собираете информацию? Получите подробную презентацию в удобном формате!

БЕЗ КОМИССИИ ID: 60446 Рейтинг5.5 КлассB

Москва, 5-й Новоподмосковный переулок, 6

Войковская → 758 м
~ 8 мин
Арендная плата в месяц 687 500 ₽ 11 000 ₽/м² в год С учётом НДС
Характеристики 750 м² 4 этаж Под отделку
Преимущества
  • Класс B
  • Пешком от метро
  • Кондиционирование и вентиляция
  • Свой паркинг

Сдается в прямую аренду офисное помещение класса B общей площадью 750 кв.м в бизнес-центре... подробнее

Презентация по предложению

Собираете информацию? Получите подробную презентацию в удобном формате!

БЕЗ КОМИССИИ ID: 115048 Рейтинг6.6 КлассB

Москва, Старопетровский проезд, 1 с2

Войковская → 603 м
~ 6 мин
Арендная плата в месяц 802 083 ₽ 12 500 ₽/м² в год С учётом НДС
Характеристики 770 м² 3 этаж Под отделку
Преимущества
  • Класс B
  • Пешком от метро
  • Кондиционирование и вентиляция
  • Свой паркинг

Собственник сдает в долгосрочную аренду офисное помещение класса B площадью 770 кв. метров в недавно отреконструированном бизнес-центре "Baby Store"... подробнее

Презентация по предложению

Собираете информацию? Получите подробную презентацию в удобном формате!

Посмотреть все похожие предложения
Отнеситесь рационально к процессу поиска нового офиса!

Просто ответьте на 3 вопроса, и наши специалисты сами предложат оптимальные варианты под ваш бюджет

.