8.2
Смотреть все фото
БЕЗ КОМИССИИ ID: 280068 Рейтинг7.4 КлассB+
Бизнес-центр «Лиман»

Аренда офиса 400 м²

Москва, улица Архитектора Власова, 33

Новые Черемушки → 634 м
~ 6 мин
Арендная плата в месяц 800 000 ₽ 24 000 ₽/м² в год С учётом НДС

Презентация по предложению

Собираете информацию? Получите подробную презентацию в удобном формате!

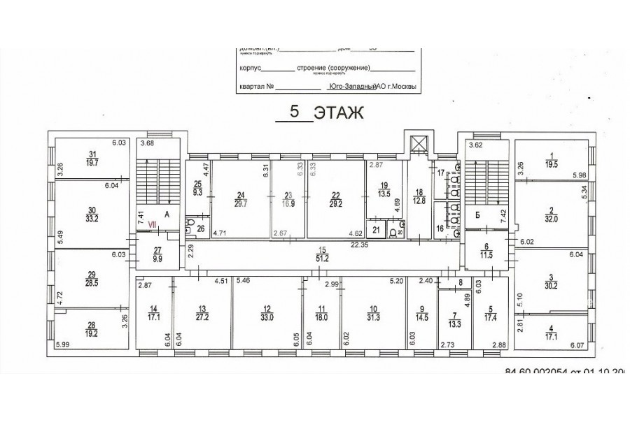
Площадь 400 м²
Состояние Готово к въезду
Планировка Смешанная
Этаж 5

Описание

Преимущества
  • Класс B+
  • Пешком от метро
  • Кондиционирование и вентиляция
  • Свой паркинг
  • Развитая инфраструктура
Предлагаем в долгосрочную прямую аренду офисное помещение класса B+ площадью 400 квадратных метров в недавно отреконструированном бизнес-центре "Лиман".

Москва, ЮЗАО, улица Архитектора Власова, 33

Удобная локация здания:
- Автомобиль: близость транспортных магистралей, таких как Профсоюзная улица, Ленинский проспект и других.
- Возможность аренды парковочных мест.
- Ближайшее метро: от метро "Новые Черемушки" всего 9 мин пешком

Офис класса B+:
- Помещение с отделкой, готово к въезду
- Вентиляция: Приточно-вытяжная вентиляция
- Кондиционирование: центральное
- Развитая инфраструктура внутри здания


Если данное предложение подходит Вашему запросу:

1. Мы отправим Вам подробную презентацию с планировкой и фотографиями в течение 10 минут после звонка, чтобы Вы могли поделиться информацией с руководством или с коллегами.
2. Мы готовы ответить на любые Ваши вопросы о помещении и коммерческих условиях аренды.
3. Покажем помещение в удобное для Вас время с менеджером в здании, при необходимости подготовим виртуальный тур.

Вы можете позвонить нам в любое время. Мы ответим на Ваши вопросы по будням до 19:00, а поздно вечером или в выходные сможем передать Ваш контакт нашему менеджеру.

Коммерческие условия

Арендная плата 800 000 ₽
Ставка арендной платы 24 000 ₽ м²/год
Эксплуатационные расходы Включены в ставку
Налоги С учётом НДС
Тип договора Прямая аренда
Срок договора от 11 месяцев
Размер платежей 1 месяц
Обеспечительный платеж 1 месяц
Статус Сдан

О бизнес-центре

Класс B+
Этажность 5
Лифты Есть
Общая площадь 4 070 м²
Год постройки 1966
Паркинг Наземный
Вентиляция приточно-вытяжная
Кондиционирование центральное
Телекоммуникации Интернет/Телефония

Расположение

Подробная презентацию по предложению

Собираете информацию? Получите подробную презентацию в удобном формате, чтобы обсудить вариант с коллегами или переслать руководству!

Похожие предложения в других зданиях

БЕЗ КОМИССИИ ID: 1378624 Рейтинг8.2 КлассB+

Москва, Профсоюзная улица, 56

Новые Черемушки → 179 м
~ 2 мин
Арендная плата в месяц 759 210 ₽ 25 300 ₽/м² в год С учётом НДС
Характеристики 360 м² 6 - 8 этаж Готово к въезду
Преимущества
  • Класс B+
  • Пешком от метро
  • Кондиционирование и вентиляция
  • Свой паркинг
  • Развитая инфраструктура

Предлагается в долгосрочную аренду помещение под офис класса B+ площадью 360 квадр. метров в бизнес-центре "Черри Тауэр"... подробнее

Презентация по предложению

Собираете информацию? Получите подробную презентацию в удобном формате!

БЕЗ КОМИССИИ ID: 280607 Рейтинг5.3 КлассB

Москва, Профсоюзная улица, 45

Новые Черемушки → 392 м
~ 4 мин
Арендная плата в месяц 890 000 ₽ 26 700 ₽/м² в год С учётом НДС
Характеристики 400 м² 1 этаж Готово к въезду
Преимущества
  • Класс B
  • Пешком от метро
  • Развитая инфраструктура

Предлагается в долгосрочную прямую аренду офис класса B общей площадью 400 кв. метров в бизнес-центре... подробнее

Презентация по предложению

Собираете информацию? Получите подробную презентацию в удобном формате!

БЕЗ КОМИССИИ ID: 1378192 Рейтинг6.8 КлассB

Москва, Старокалужское шоссе, 62

Воронцовская → 266 м
~ 3 мин
Арендная плата в месяц 844 514 ₽ 25 000 ₽/м² в год С учётом НДС
Характеристики 406 м² 3 этаж Готово к въезду
Преимущества
  • Класс B
  • Пешком от метро
  • Кондиционирование и вентиляция
  • Свой паркинг
  • Несколько провайдеров связи
  • Развитая инфраструктура

Сдается в долгосрочную аренду офисное помещение класса B площадью 406 кв. метров в бизнес-центре "Vallex"... подробнее

Презентация по предложению

Собираете информацию? Получите подробную презентацию в удобном формате!

БЕЗ КОМИССИИ ID: 1242895 Рейтинг6.8 КлассB

Москва, Старокалужское шоссе, 62

Воронцовская → 266 м
~ 3 мин
Арендная плата в месяц 838 300 ₽ 24 900 ₽/м² в год С учётом НДС
Характеристики 404 м² 1 этаж Готово к въезду
Преимущества
  • Класс B
  • Пешком от метро
  • Кондиционирование и вентиляция
  • Свой паркинг
  • Несколько провайдеров связи
  • Развитая инфраструктура

Сдаем в долгосрочную прямую аренду офисное помещение класса B площадью 404 кв.м в бизнес-центре "Vallex"... подробнее

>

Виртуальный тур

Презентация по предложению

Собираете информацию? Получите подробную презентацию в удобном формате!

БЕЗ КОМИССИИ ID: 1377438 Рейтинг6.8 КлассB

Москва, Старокалужское шоссе, 62

Воронцовская → 266 м
~ 3 мин
Арендная плата в месяц 771 835 ₽ 25 000 ₽/м² в год С учётом НДС
Характеристики 371 м² 3 - 7 этаж Готово к въезду
Преимущества
  • Класс B
  • Пешком от метро
  • Кондиционирование и вентиляция
  • Свой паркинг
  • Несколько провайдеров связи
  • Развитая инфраструктура

Предлагается в долгосрочную аренду офисное помещение класса B площадью 371 квадр. метров в бизнес-центре "Vallex"... подробнее

Презентация по предложению

Собираете информацию? Получите подробную презентацию в удобном формате!

Посмотреть все похожие предложения
Отнеситесь рационально к процессу поиска нового офиса!

Просто ответьте на 3 вопроса, и наши специалисты сами предложат оптимальные варианты под ваш бюджет

.