8.2
Смотреть все фото
БЕЗ КОМИССИИ ID: 1130095 Рейтинг8.5 КлассB

Москва, улица Лобачевского, 114

Мичуринский проспект → 584 м
~ 6 мин
Арендная плата в месяц 893 700 ₽ 16 500 ₽/м² в год С учётом НДС

Презентация по предложению

Собираете информацию? Получите подробную презентацию в удобном формате!

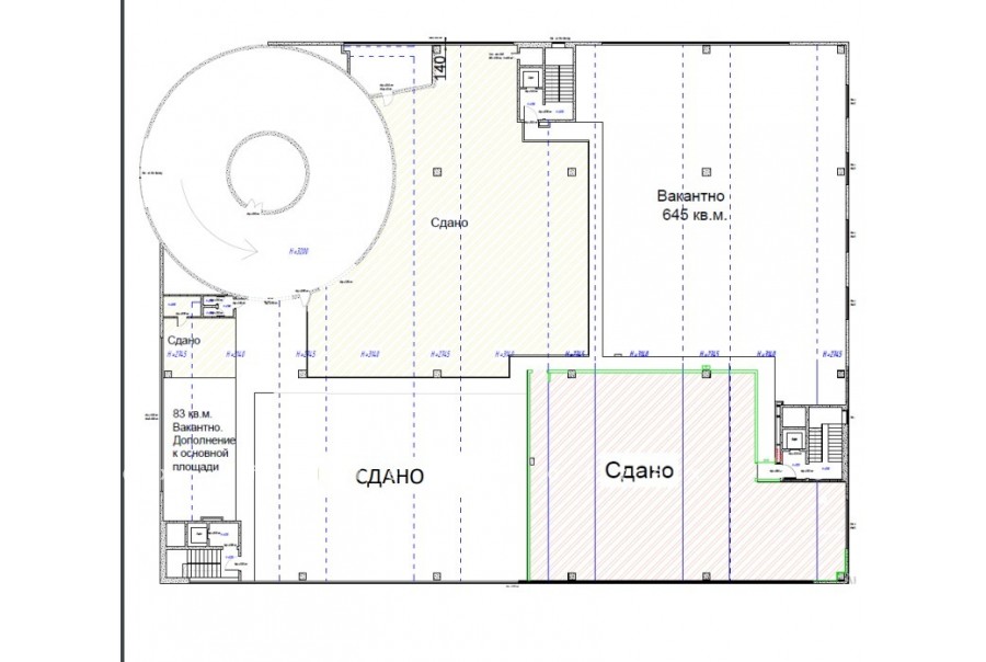
Площадь 650 м²
Состояние Под отделку
Планировка Открытая
Этаж 6

Описание

Преимущества
  • Класс B
  • Пешком от метро
  • Кондиционирование и вентиляция
  • Свой паркинг
Предлагаем в долгосрочную прямую аренду офисный блок класса B площадью 650 квадратных метров в бизнес-центре.

Москва, ЗАО, улица Лобачевского, 114

Удобная локация здания:
- Автомобиль: близость транспортных магистралей, таких как Мичуринский проспект и других.
- Возможность аренды парковочных мест.
- Ближайшее метро: от метро "Мичуринский проспект" всего 13 мин пешком

Офис класса B:
- Офис в состоянии shell & core
- Вентиляция: Приточно-вытяжная вентиляция
- Кондиционирование: центральное
- Круглосуточная охрана и видеонаблюдение


Если предложение предварительно Вам подходит:

1. Получите презентацию в течение 10 минут в Whatsapp или на почту с фотографиями и планировкой, чтобы обсудить данный вариант с коллегами или переслать руководству. Для этого позвоните по телефону, указанному в объявлении.
2. Задайте любые вопросы менеджеру по телефону, готовы обсуждать любые предложения по финансовым условиям договора аренды.
3. Покажем помещение в удобное для Вас время с менеджером в здании, при необходимости подготовим виртуальный тур.

Звоните нам в любое время. По будням мы сможем ответить на Ваши вопросы до 19:00. В выходные или вечернее время мы передадим Ваш контакт нашему менеджеру по аренде.

Коммерческие условия

Арендная плата 812 500 ₽
Ставка арендной платы 16 500 ₽ м²/год
Эксплуатационные расходы Включены в ставку
Налоги С учётом НДС
Тип договора Прямая аренда
Срок договора от 11 месяцев
Размер платежей 1 месяц
Обеспечительный платеж 2 месяц
Статус Сдан

О бизнес-центре

Класс B
Этажность 7
Лифты Есть
Общая площадь 18 500 м²
Год постройки 2011
Паркинг Наземный
Вентиляция приточно-вытяжная
Кондиционирование центральное
Телекоммуникации Интернет/Телефония

Расположение

Подробная презентацию по предложению

Собираете информацию? Получите подробную презентацию в удобном формате, чтобы обсудить вариант с коллегами или переслать руководству!

Похожие предложения в других зданиях

БЕЗ КОМИССИИ ID: 178589 Рейтинг7.8 КлассB

Москва, Мичуринский проспект, 49

Мичуринский проспект → 485 м
~ 5 мин
Арендная плата в месяц 700 000 ₽ 14 000 ₽/м² в год С учётом НДС
Характеристики 600 м² 4 этаж Готово к въезду
Преимущества
  • Класс B
  • Пешком от метро
  • Кондиционирование и вентиляция
  • Свой паркинг

Предлагаем в долгосрочную прямую аренду офис класса B площадью 600 квадр. метров в бизнес-центре... подробнее

Презентация по предложению

Собираете информацию? Получите подробную презентацию в удобном формате!

БЕЗ КОМИССИИ ID: 122134 Рейтинг7.4 КлассА

улица Мичуринский Проспект, Олимпийская Деревня, 1к4

Мичуринский проспект → 1.51 км
~ 15 мин
Арендная плата в месяц 931 250 ₽ 15 000 ₽/м² в год С учётом НДС
Характеристики 745 м² 2 этаж Под отделку
Преимущества
  • Класс А
  • Пешком от метро
  • Кондиционирование и вентиляция
  • Свой паркинг
  • Развитая инфраструктура

Предлагается в долгосрочную аренду офис класса А площадью 745 кв. метров в бизнес-центре "Чемпион-парк"... подробнее

Презентация по предложению

Собираете информацию? Получите подробную презентацию в удобном формате!

БЕЗ КОМИССИИ ID: 192755 Рейтинг7.4 КлассА

улица Мичуринский Проспект, Олимпийская Деревня, 1к4

Мичуринский проспект → 1.51 км
~ 15 мин
Арендная плата в месяц 641 667 ₽ 14 000 ₽/м² в год С учётом НДС
Характеристики 550 м² 2 этаж Готово к въезду
Преимущества
  • Класс А
  • Пешком от метро
  • Кондиционирование и вентиляция
  • Свой паркинг
  • Развитая инфраструктура

Предлагаем в аренду помещение под офис класса А площадью 550 кв.м в бизнес-центре "Чемпион-парк"... подробнее

Презентация по предложению

Собираете информацию? Получите подробную презентацию в удобном формате!

БЕЗ КОМИССИИ ID: 1257452 Рейтинг6.4 КлассB

Москва, Очаковское шоссе, 10к2 с1

Аминьевская → 1.2 км
~ 12 мин
Арендная плата в месяц 825 917 ₽ 17 000 ₽/м² в год С учётом НДС
Характеристики 583 м² 2 этаж Готово к въезду
Преимущества
  • Класс B
  • Пешком от метро
  • Кондиционирование и вентиляция

Собственник сдает в долгосрочную аренду офис класса B общей площадью 583 кв.м в бизнес-центре... подробнее

Презентация по предложению

Собираете информацию? Получите подробную презентацию в удобном формате!

БЕЗ КОМИССИИ ID: 294735 Рейтинг6.3 КлассB

Москва, проспект Вернадского, 29

Проспект Вернадского → 844 м
~ 8 мин
Арендная плата в месяц 900 000 ₽ 18 000 ₽/м² в год С учётом НДС
Характеристики 600 м² 9 этаж Готово к въезду
Преимущества
  • Класс B
  • Пешком от метро
  • Кондиционирование и вентиляция
  • Свой паркинг
  • Несколько провайдеров связи
  • Развитая инфраструктура

Сдается в долгосрочную аренду помещение под офис класса B общей площадью 600 кв.м в недавно отреконструированном бизнес-центре "Лето"... подробнее

Презентация по предложению

Собираете информацию? Получите подробную презентацию в удобном формате!

Посмотреть все похожие предложения
Отнеситесь рационально к процессу поиска нового офиса!

Просто ответьте на 3 вопроса, и наши специалисты сами предложат оптимальные варианты под ваш бюджет

.