8.2
Смотреть все фото
БЕЗ КОМИССИИ ID: 1377982 Рейтинг7.7 КлассB+
Бизнес-центр «Лофт 46»

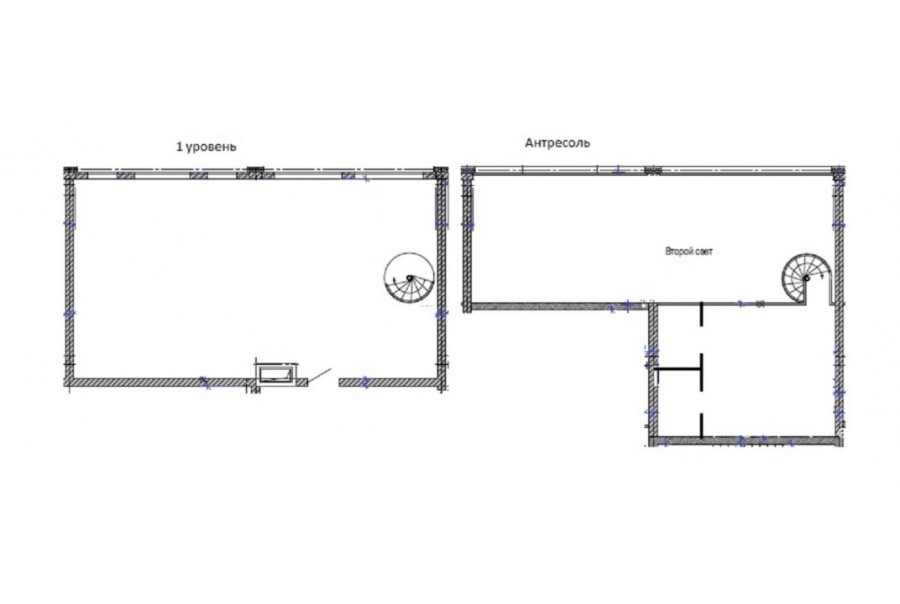
Продажа офиса 109 м²

Москва, улица Фридриха Энгельса, 46 с1

Бауманская → 1.07 км
~ 11 мин
Стоимость 34.99 млн ₽ 321 000 ₽/м²

Презентация по предложению

Собираете информацию? Получите подробную презентацию в удобном формате!

Площадь 109 м²
Состояние Готово к въезду
Планировка Смешанная
Этаж 3

Описание

Преимущества
  • Класс B+
  • Пешком от метро
  • Кондиционирование и вентиляция
В продаже офисный блок общей площадью 109 квадратных метров в бизнес-центре "Лофт 46".

Помещение можно адаптировать под любой бизнес благодаря функциональной планировке - идеальный баланс комфорта и экономической выгоды. Оптимальное решение для стабильного бизнеса или выгодных инвестиций.

Офис класса B+:
- Помещение готово к въезду
- Вентиляция: Приточно-вытяжная вентиляция
- Кондиционирование: центральное

О офисном центре:
Москва, ЦАО, улица Фридриха Энгельса, 46 с1

Удобная локация здания:
- Автомобиль: близость транспортных магистралей, таких как Третье Транспортное Кольцо, улица Стромынка, Русаковская улица и других.
- Ближайшее метро: от метро "Бауманская" всего 11 мин пешком



Если данное предложение подходит Вашему запросу:

1. Мы отправим Вам подробную презентацию с планировкой и фотографиями в течение 10 минут после звонка, чтобы Вы могли поделиться информацией с руководством или с коллегами.
2. Ответим на любые Ваши вопросы, готовы обсуждать любые предложения по коммерческим условиям продажи помещения.

Вы можете позвонить нам в любое время. Мы ответим на Ваши вопросы по будням до 19:00, а поздно вечером или в выходные сможем передать Ваш контакт нашему менеджеру.

О бизнес-центре

Класс B+
Этажность 8
Лифты Нет
Общая площадь 21 963 м²
Год постройки 1917
Паркинг Наземный
Вентиляция приточно-вытяжная
Кондиционирование центральное
Телекоммуникации Интернет/Телефония

Расположение

Подробная презентацию по предложению

Собираете информацию? Получите подробную презентацию в удобном формате, чтобы обсудить вариант с коллегами или переслать руководству!

Похожие предложения в других зданиях

БЕЗ КОМИССИИ ID: 72580 Рейтинг6.3 КлассB

Москва, улица Фридриха Энгельса, 75 с9

Электрозаводская → 1.21 км
~ 12 мин
Стоимость 199 999 950 ₽ 289 900 ₽/м²
Характеристики 690 м² 1 - 3 этаж Готово к въезду
Преимущества
  • Класс B
  • Пешком от метро
  • Кондиционирование и вентиляция
  • Свой паркинг

В продаже офисный блок площадью 690 кв.м в бизнес-центре. .. подробнее

>

Виртуальный тур

Презентация по предложению

Собираете информацию? Получите подробную презентацию в удобном формате!

БЕЗ КОМИССИИ ID: 1376840 Рейтинг6.0 КлассB

Москва, Переведеновский переулок, 13 с7

Электрозаводская → 1.41 км
~ 14 мин
Стоимость 360 001 017 ₽ 159 400 ₽/м²
Характеристики 2 259 м² 1 - 4 этаж Готово к въезду
Преимущества
  • Класс B
  • Пешком от метро

Продается офис общей площадью 2259 квадратных метров в бизнес-центре. .. подробнее

Презентация по предложению

Собираете информацию? Получите подробную презентацию в удобном формате!

БЕЗ КОМИССИИ ID: 1290368 Рейтинг8.4 КлассB

Москва, Переведеновский переулок, 13 с18

Электрозаводская → 1.36 км
~ 14 мин
Стоимость 30 225 000 ₽ 325 000 ₽/м²
Характеристики 93 м² 6 этаж Готово к въезду
Преимущества
  • Класс B
  • Пешком от метро
  • Кондиционирование и вентиляция
  • Свой паркинг

Продается офис площадью 93 квадратных метров в бизнес-центре "МФК Союз". .. подробнее

Презентация по предложению

Собираете информацию? Получите подробную презентацию в удобном формате!

БЕЗ КОМИССИИ ID: 1328942 Рейтинг8.4 КлассB

Москва, Переведеновский переулок, 13 с18

Электрозаводская → 1.36 км
~ 14 мин
Стоимость 23 075 000 ₽ 355 000 ₽/м²
Характеристики 65 м² 4 этаж Готово к въезду
Преимущества
  • Класс B
  • Пешком от метро
  • Кондиционирование и вентиляция
  • Свой паркинг

Продается офис площадью 65 кв. метров в бизнес-центре "МФК Союз". .. подробнее

Презентация по предложению

Собираете информацию? Получите подробную презентацию в удобном формате!

БЕЗ КОМИССИИ ID: 1319082 Рейтинг6.7 КлассB

Москва, Рубцовская набережная, 3 с1

Электрозаводская → 825 м
~ 8 мин
Стоимость 106 560 000 ₽ 160 000 ₽/м²
Характеристики 666 м² 4 этаж Готово к въезду
Преимущества
  • Класс B
  • Пешком от метро
  • Кондиционирование и вентиляция
  • Свой паркинг
  • Развитая инфраструктура

Продается офис общей площадью 666 квадратных метров в бизнес-центре. .. подробнее

Презентация по предложению

Собираете информацию? Получите подробную презентацию в удобном формате!

Посмотреть все похожие предложения
Отнеситесь рационально к процессу поиска нового офиса!

Просто ответьте на 3 вопроса, и наши специалисты сами предложат оптимальные варианты под ваш бюджет

.