8.2
Смотреть все фото
БЕЗ КОМИССИИ ID: 511650 Рейтинг7.4 КлассB+
Бизнес-центр «LOFT SAVELOVSKAYA»

Аренда офиса 585 м²

Москва, Складочная улица, 1 с9

Дмитровская → 1.2 км
~ 12 мин
Арендная плата в месяц 1 121 200 ₽ 23 000 ₽/м² в год С учётом НДС

Презентация по предложению

Собираете информацию? Получите подробную презентацию в удобном формате!

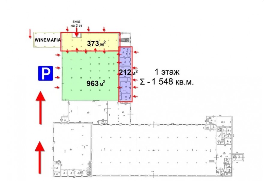
Площадь 585 м²
Состояние Готово к въезду
Планировка Открытая
Этаж 1

Описание

Преимущества
  • Класс B+
  • Пешком от метро
  • Кондиционирование и вентиляция
  • Свой паркинг
Предлагается в долгосрочную прямую аренду помещение под офис класса B+ общей площадью 585 квадратных метров в бизнес-центре "LOFT SAVELOVSKAYA".

Москва, СВАО, Складочная улица, 1 с9

Удобная локация здания:
- Автомобиль: близость транспортных магистралей, таких как Дмитровское шоссе, Третье Транспортное Кольцо, Бутырская улица и других.
- Возможность аренды парковочных мест.
- Ближайшее метро: от метро "Дмитровская" всего 12 мин пешком

Офис класса B+:
- Офис с отделкой, полностью готов к аренде
- Вентиляция: Приточно-вытяжная вентиляция
- Кондиционирование: центральное
- Круглосуточная охрана и видеонаблюдение

Возможность заключения контракта в соответствии с 44ФЗ по госзакупкам.

Если предложение предварительно Вам подходит:

1. Мы подготовили презентацию с информацией о помещении, фотографиями и планировкой, чтобы Вы могли поделиться ей с коллегами или руководством. Попросите об этом нашего менеджера по телефону в объявлении.
2. Ответим на любые Ваши вопросы, готовы обсуждать любые предложения по коммерческим условиям аренды помещения.
3. Оперативно организуем просмотр помещения, договоримся на любое удобное время, подготовим виртуальный тур.

Звоните нам в любое время. По будням мы сможем ответить на Ваши вопросы до 19:00. В выходные или вечернее время мы передадим Ваш контакт нашему менеджеру по аренде.

Коммерческие условия

Арендная плата 1 121 250 ₽
Ставка арендной платы 23 000 ₽ м²/год
Эксплуатационные расходы Включены в ставку
Налоги С учётом НДС
Тип договора Прямая аренда
Срок договора от 11 месяцев
Размер платежей 1 месяц
Обеспечительный платеж 2 месяц
Статус Сдан

О бизнес-центре

Класс B+
Этажность 3
Лифты Нет
Общая площадь 5 500 м²
Паркинг Наземный
Вентиляция приточно-вытяжная
Кондиционирование центральное
Телекоммуникации Интернет/Телефония

Расположение

Подробная презентацию по предложению

Собираете информацию? Получите подробную презентацию в удобном формате, чтобы обсудить вариант с коллегами или переслать руководству!

Похожие предложения в других зданиях

БЕЗ КОМИССИИ ID: 1377521 Рейтинг6.4 КлассB

Москва, Складочная улица, 1 с1

Савеловская → 880 м
~ 9 мин
Арендная плата в месяц 1 213 887 ₽ 26 200 ₽/м² в год С учётом НДС
Характеристики 556 м² 2 - 4 этаж Готово к въезду
Преимущества
  • Класс B
  • Пешком от метро
  • Кондиционирование и вентиляция
  • Свой паркинг
  • Несколько провайдеров связи

Предлагаем в долгосрочную прямую аренду офисное помещение класса B площадью 556 квадратных метров в бизнес-центре "Станколит"... подробнее

Презентация по предложению

Собираете информацию? Получите подробную презентацию в удобном формате!

БЕЗ КОМИССИИ ID: 19623 Рейтинг4.8 КлассB

Москва, Новодмитровская улица, 5А с3

Дмитровская → 1.16 км
~ 12 мин
Арендная плата в месяц 879 750 ₽ 20 700 ₽/м² в год С учётом НДС
Характеристики 510 м² 1 этаж Готово к въезду
Преимущества
  • Класс B
  • Пешком от метро
  • Кондиционирование и вентиляция
  • Свой паркинг
  • Развитая инфраструктура

Предлагаем в долгосрочную аренду офис класса B площадью 510 кв. метров в недавно отреконструированном бизнес-центре "Новодмитровка"... подробнее

Презентация по предложению

Собираете информацию? Получите подробную презентацию в удобном формате!

БЕЗ КОМИССИИ ID: 225711 Рейтинг7.6 КлассB+

Москва, Бутырская улица, 75

Дмитровская → 584 м
~ 6 мин
Арендная плата в месяц 873 333 ₽ 20 000 ₽/м² в год С учётом НДС
Характеристики 524 м² 6 этаж Готово к въезду
Преимущества
  • Класс B+
  • Пешком от метро
  • Кондиционирование и вентиляция
  • Свой паркинг
  • Развитая инфраструктура

Предлагаем в долгосрочную прямую аренду помещение под офис класса B+ площадью 524 кв. метров в бизнес-центре... подробнее

Презентация по предложению

Собираете информацию? Получите подробную презентацию в удобном формате!

БЕЗ КОМИССИИ ID: 1378996 Рейтинг6.8 КлассB

Москва, Полковая улица, 3

Марьина Роща → 1.07 км
~ 11 мин
Арендная плата в месяц 1 300 000 ₽ 26 000 ₽/м² в год С учётом НДС
Характеристики 600 м² 3 этаж Готово к въезду
Преимущества
  • Класс B
  • Пешком от метро
  • Кондиционирование и вентиляция
  • Свой паркинг
  • Несколько провайдеров связи
  • Развитая инфраструктура

Предлагаем в долгосрочную аренду офис класса B общей площадью 600 кв.м в историческом бизнес-центре "Офис-парк Шереметьевский"... подробнее

Презентация по предложению

Собираете информацию? Получите подробную презентацию в удобном формате!

БЕЗ КОМИССИИ ID: 1197370 Рейтинг8.1 КлассB+

Москва, 2-я Ямская улица, 4

Марьина Роща → 612 м
~ 6 мин
Арендная плата в месяц 1 041 667 ₽ 25 000 ₽/м² в год С учётом НДС
Характеристики 500 м² 1 этаж Готово к въезду
Преимущества
  • Класс B+
  • Пешком от метро
  • Кондиционирование и вентиляция
  • Свой паркинг

Предлагаем в прямую аренду офисное помещение класса B+ площадью 500 кв.м в бизнес-центре... подробнее

Презентация по предложению

Собираете информацию? Получите подробную презентацию в удобном формате!

Посмотреть все похожие предложения
Отнеситесь рационально к процессу поиска нового офиса!

Просто ответьте на 3 вопроса, и наши специалисты сами предложат оптимальные варианты под ваш бюджет

.