8.2
Смотреть все фото
БЕЗ КОМИССИИ ID: 447525 Рейтинг8.0 КлассА
Бизнес-центр «Loft Studio 8»

Аренда офиса 424 м²

Москва, проезд Аэропорта, 8

Аэропорт → 837 м
~ 8 мин
Арендная плата в месяц 699 600 ₽ 19 800 ₽/м² в год С учётом НДС

Презентация по предложению

Собираете информацию? Получите подробную презентацию в удобном формате!

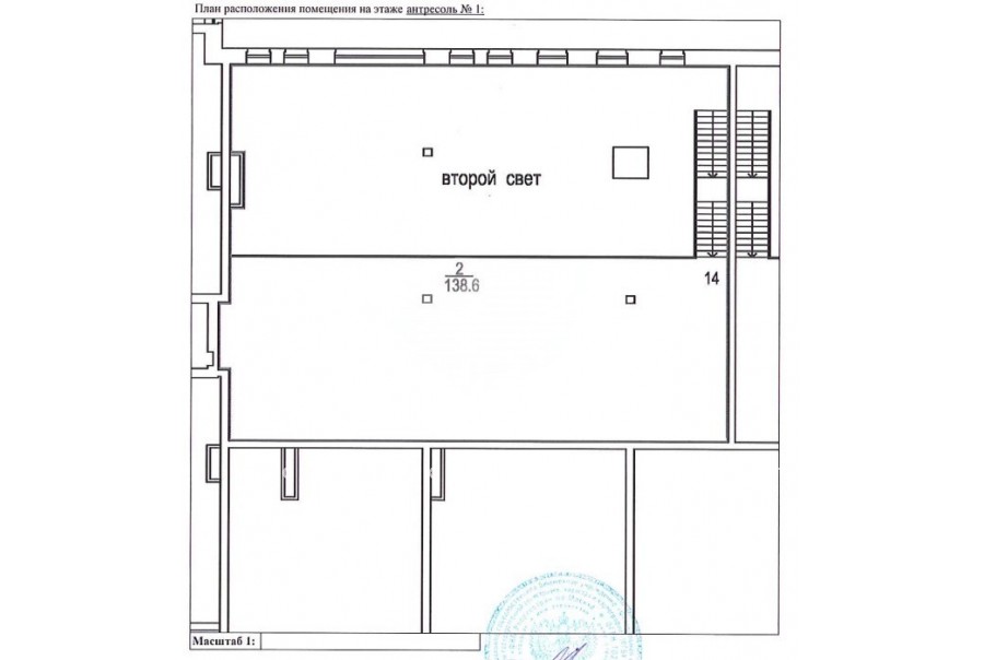
Площадь 424 м²
Состояние Под отделку
Планировка Открытая
Этаж 1

Описание

Преимущества
  • Класс А
  • Пешком от метро
  • Кондиционирование и вентиляция
Сдается в долгосрочную прямую аренду офисное помещение класса А площадью 424 кв.м в бизнес-центре "Loft Studio 8".

Москва, САО, проезд Аэропорта, 8

Удобная локация здания:
- Автомобиль: близость транспортных магистралей, таких как Ленинградский проспект, Ленинградское шоссе, Волоколамское шоссе и других.
- Ближайшее метро: от метро "Аэропорт" всего 8 мин пешком

Офис класса А:
- Офис без отделки
- Вентиляция: Приточно-вытяжная вентиляция
- Кондиционирование: центральное


Что еще можно узнать о предложении:

1. Мы подготовили презентацию с информацией о помещении, фотографиями и планировкой, чтобы Вы могли поделиться ей с коллегами или руководством. Попросите об этом нашего менеджера по телефону в объявлении.
2. Ответим на любые Ваши вопросы, готовы обсуждать любые предложения по коммерческим условиям аренды помещения.
3. Оперативно организуем просмотр помещения, договоримся на любое удобное время, подготовим виртуальный тур.

Вы можете позвонить нам в любое время. Мы ответим на Ваши вопросы по будням до 19:00, а поздно вечером или в выходные зафиксируем Ваш контакт и перезвоним в рабочее время.

Коммерческие условия

Арендная плата 749 600 ₽
Ставка арендной платы 19 800 ₽ м²/год
Эксплуатационные расходы Включены в ставку
Налоги С учётом НДС
Тип договора Прямая аренда
Срок договора от 11 месяцев
Размер платежей 1 месяц
Обеспечительный платеж 1 месяц
Статус Сдан

О бизнес-центре

Класс А
Этажность 3
Лифты Нет
Общая площадь 0 м²
Год постройки 2015
Паркинг Наземный
Вентиляция приточно-вытяжная
Кондиционирование центральное
Телекоммуникации Интернет/Телефония

Расположение

Подробная презентацию по предложению

Собираете информацию? Получите подробную презентацию в удобном формате, чтобы обсудить вариант с коллегами или переслать руководству!

Похожие предложения в других зданиях

БЕЗ КОМИССИИ ID: 389228 Рейтинг5.2 КлассB

Москва, улица Алабяна, 3 к1

Сокол → 471 м
~ 5 мин
Арендная плата в месяц 610 500 ₽ 18 000 ₽/м² в год Упрощённая система налогообложения
Характеристики 407 м² -1 - 1 этаж Готово к въезду
Преимущества
  • Класс B
  • Пешком от метро
  • Кондиционирование и вентиляция

Сдается в прямую аренду помещение под офис класса B общей площадью 407 квадратных метров в жилом комплексе... подробнее

>

Виртуальный тур

Презентация по предложению

Собираете информацию? Получите подробную презентацию в удобном формате!

БЕЗ КОМИССИИ ID: 301992 Рейтинг6.7 КлассB

Москва, улица Усиевича, 20 к1

Сокол → 668 м
~ 7 мин
Арендная плата в месяц 638 333 ₽ 20 000 ₽/м² в год С учётом НДС
Характеристики 383 м² 1 этаж Готово к въезду
Преимущества
  • Класс B
  • Пешком от метро
  • Кондиционирование и вентиляция
  • Свой паркинг

Сдается в долгосрочную прямую аренду офис класса B площадью 383 квадр. метров в историческом недавно отреконструированном бизнес-центре "Сокол Плаза"... подробнее

Презентация по предложению

Собираете информацию? Получите подробную презентацию в удобном формате!

БЕЗ КОМИССИИ ID: 246911 Рейтинг7.6 КлассB

Москва, Ленинградский проспект, 80 к17

Сокол → 498 м
~ 5 мин
Арендная плата в месяц 655 000 ₽ 20 000 ₽/м² в год С учётом НДС
Характеристики 393 м² 1 - 3 этаж Готово к въезду
Преимущества
  • Класс B
  • Пешком от метро
  • Кондиционирование и вентиляция
  • Свой паркинг

Сдается в прямую аренду офис класса B общей площадью 393 квадратных метров в бизнес-центре... подробнее

Презентация по предложению

Собираете информацию? Получите подробную презентацию в удобном формате!

БЕЗ КОМИССИИ ID: 287994 Рейтинг4.4 КлассB

Москва, Красноармейская улица, 11

Аэропорт → 968 м
~ 10 мин
Арендная плата в месяц 566 667 ₽ 17 000 ₽/м² в год С учётом НДС
Характеристики 400 м² 2 этаж Готово к въезду
Преимущества
  • Класс B
  • Пешком от метро
  • Кондиционирование и вентиляция
  • Свой паркинг
  • Развитая инфраструктура

Сдается в прямую аренду офисный блок класса B общей площадью 400 кв.м в бизнес-центре... подробнее

Презентация по предложению

Собираете информацию? Получите подробную презентацию в удобном формате!

БЕЗ КОМИССИИ ID: 1041861 Рейтинг9.0 КлассB+

Москва, улица Маршала Рыбалко, 2

Панфиловская → 95 м
~ 1 мин
Арендная плата в месяц 690 867 ₽ 17 200 ₽/м² в год С учётом НДС
Характеристики 482 м² 11 этаж Готово к въезду
Преимущества
  • Класс B+
  • Пешком от метро
  • Кондиционирование и вентиляция
  • Свой паркинг

Сдается в прямую аренду офисный блок класса B+ общей площадью 482 кв. метров в бизнес-центре "МФК Маршал"... подробнее

Презентация по предложению

Собираете информацию? Получите подробную презентацию в удобном формате!

Посмотреть все похожие предложения
Отнеситесь рационально к процессу поиска нового офиса!

Просто ответьте на 3 вопроса, и наши специалисты сами предложат оптимальные варианты под ваш бюджет

.