8.2
Смотреть все фото
БЕЗ КОМИССИИ ID: 302872 Рейтинг6.6 КлассB

Москва, Малая Пироговская улица, 18 с1

Спортивная → 671 м
~ 7 мин
Арендная плата в месяц 1 514 300 ₽ 22 000 ₽/м² в год С учётом НДС

Презентация по предложению

Собираете информацию? Получите подробную презентацию в удобном формате!

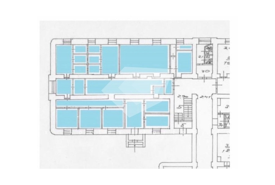
Площадь 826 м²
Состояние Готово к въезду
Планировка Кабинетная
Этаж 1 - 4

Описание

Преимущества
  • Класс B
  • Пешком от метро
  • Кондиционирование и вентиляция
  • Свой паркинг
  • Несколько провайдеров связи
  • Развитая инфраструктура
Предлагаем в долгосрочную аренду офисный блок класса B общей площадью 826 квадратных метров в историческом недавно отреконструированном бизнес-центре.

Москва, ЦАО, Малая Пироговская улица, 18 с1

Удобная локация здания:
- Автомобиль: близость транспортных магистралей, таких как Комсомольский проспект, Третье Транспортное Кольцо и других.
- Возможность аренды парковочных мест.
- Ближайшее метро: от метро "Спортивная" всего 7 мин пешком

Офис класса B:
- Помещение с отделкой, готово к въезду
- Кондиционирование: сплит-системы
- Круглосуточная охрана и видеонаблюдение
- Развитая инфраструктура внутри здания

Возможность заключения контракта в соответствии с 44ФЗ по госзакупкам.

Если данное предложение подходит Вашему запросу:

1. Мы отправим Вам подробную презентацию с планировкой и фотографиями в течение 10 минут после звонка, чтобы Вы могли поделиться информацией с руководством или с коллегами.
2. Задайте любые вопросы менеджеру по телефону, готовы обсуждать любые предложения по финансовым условиям договора аренды.
3. Оперативно организуем просмотр помещения с менеджерами на объекте или подготовим виртуальный тур.

Вы можете позвонить нам в любое время. Мы ответим на Ваши вопросы по будням до 19:00, а поздно вечером или в выходные зафиксируем Ваш контакт и перезвоним в рабочее время.

Коммерческие условия

Арендная плата 1 514 330 ₽
Ставка арендной платы 22 000 ₽ м²/год
Эксплуатационные расходы Включены в ставку
Налоги С учётом НДС
Тип договора Субаренда
Срок договора от 11 месяцев
Размер платежей 1 месяц
Обеспечительный платеж 1 месяц
Статус Сдан

О бизнес-центре

Класс B
Этажность 5
Лифты Есть
Общая площадь 15 000 м²
Год постройки 1911
Паркинг Наземный
Вентиляция естественная
Кондиционирование сплит-системы
Телекоммуникации Интернет/Телефония

Расположение

Подробная презентацию по предложению

Собираете информацию? Получите подробную презентацию в удобном формате, чтобы обсудить вариант с коллегами или переслать руководству!

Похожие предложения в других зданиях

БЕЗ КОМИССИИ ID: 73386 Рейтинг6.1 КлассB

Москва, Малая Пироговская улица, 13 с1

Спортивная → 884 м
~ 9 мин
Арендная плата в месяц 1 187 500 ₽ 19 000 ₽/м² в год С учётом НДС
Характеристики 750 м² 4 этаж Под отделку
Преимущества
  • Класс B
  • Пешком от метро
  • Кондиционирование и вентиляция
  • Свой паркинг
  • Развитая инфраструктура

Предлагаем в прямую аренду офис класса B общей площадью 750 кв. метров в историческом бизнес-центре "П13"... подробнее

Презентация по предложению

Собираете информацию? Получите подробную презентацию в удобном формате!

БЕЗ КОМИССИИ ID: 195711 Рейтинг8.1 КлассB+

Москва, Усачёва улица, 33 с1

Спортивная → 250 м
~ 3 мин
Арендная плата в месяц 1 419 250 ₽ 21 000 ₽/м² в год С учётом НДС
Характеристики 811 м² 2 - 4 этаж Готово к въезду
Преимущества
  • Класс B+
  • Пешком от метро
  • Кондиционирование и вентиляция
  • Свой паркинг
  • Несколько провайдеров связи

Предлагаем в долгосрочную аренду офисный блок класса B+ площадью 811 кв.м в бизнес-центре "Спектр Хамовники"... подробнее

Презентация по предложению

Собираете информацию? Получите подробную презентацию в удобном формате!

БЕЗ КОМИССИИ ID: 77758 Рейтинг8.2 КлассB

Москва, Усачёва улица, 35 с1

Спортивная → 267 м
~ 3 мин
Арендная плата в месяц 1 248 333 ₽ 20 000 ₽/м² в год С учётом НДС
Характеристики 749 м² 1 - 3 этаж Готово к въезду
Преимущества
  • Класс B
  • Пешком от метро
  • Кондиционирование и вентиляция
  • Свой паркинг
  • Несколько провайдеров связи

Предлагаем в прямую аренду помещение под офис класса B площадью 749 квадр. метров в бизнес-центре... подробнее

Презентация по предложению

Собираете информацию? Получите подробную презентацию в удобном формате!

БЕЗ КОМИССИИ ID: 172657 Рейтинг8.4 КлассА

Москва, Саввинская набережная, 15

Киевская → 1.24 км
~ 12 мин
Арендная плата в месяц 1 340 625 ₽ 22 500 ₽/м² в год С учётом НДС
Характеристики 715 м² 7 этаж Готово к въезду
Преимущества
  • Класс А
  • Пешком от метро
  • Кондиционирование и вентиляция
  • Свой паркинг
  • Несколько провайдеров связи
  • Развитая инфраструктура

Собственник сдает в прямую аренду офис класса А общей площадью 715 кв.м в бизнес-центре "Японский дом"... подробнее

Презентация по предложению

Собираете информацию? Получите подробную презентацию в удобном формате!

БЕЗ КОМИССИИ ID: 1318810 Рейтинг7.3 КлассB

Москва, улица Россолимо, 17 с1

Фрунзенская → 811 м
~ 8 мин
Арендная плата в месяц 1 228 461 ₽ 20 800 ₽/м² в год С учётом НДС
Характеристики 709 м² 3 - 5 этаж Готово к въезду
Преимущества
  • Класс B
  • Пешком от метро
  • Кондиционирование и вентиляция
  • Свой паркинг
  • Развитая инфраструктура

Предлагаем в долгосрочную аренду офис класса B общей площадью 709 кв. метров в историческом бизнес-центре "Технопарк Россолимо"... подробнее

Презентация по предложению

Собираете информацию? Получите подробную презентацию в удобном формате!

Посмотреть все похожие предложения
Отнеситесь рационально к процессу поиска нового офиса!

Просто ответьте на 3 вопроса, и наши специалисты сами предложат оптимальные варианты под ваш бюджет

.