8.2

Виртуальный тур

Смотреть все фото
БЕЗ КОМИССИИ ID: 1296340 Рейтинг6.8 КлассB

Москва, Маломосковская улица, 10

Алексеевская → 877 м
~ 9 мин
Арендная плата в месяц 1 023 700 ₽ 20 500 ₽/м² в год С учётом НДС

Презентация по предложению

Собираете информацию? Получите подробную презентацию в удобном формате!

Площадь 600 м²
Состояние Готово к въезду
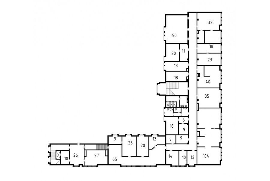
Планировка Смешанная
Этаж 4

Описание

Преимущества
  • Класс B
  • Пешком от метро
  • Кондиционирование и вентиляция
Сдается в долгосрочную прямую аренду помещение под офис класса B площадью 600 квадр. метров в бизнес-центре.

Москва, СВАО, Маломосковская улица, 10

Характеристики местоположения:
- Ближайшее метро: от метро "Алексеевская" всего 11 мин пешком

Офис класса B:
- Помещение готово к въезду
- Вентиляция: Приточно-вытяжная вентиляция
- Кондиционирование: центральное


Если предложение предварительно Вам подходит:

1. Мы подготовили презентацию с информацией о помещении, фотографиями и планировкой, чтобы Вы могли поделиться ей с коллегами или руководством. Попросите об этом нашего менеджера по телефону в объявлении.
2. Ответим на любые Ваши вопросы, готовы обсуждать любые предложения по коммерческим условиям аренды помещения.
3.

Вы можете позвонить нам в любое время. Мы ответим на Ваши вопросы по будням до 19:00, а поздно вечером или в выходные зафиксируем Ваш контакт и перезвоним в рабочее время.

Коммерческие условия

Арендная плата 975 000 ₽
Ставка арендной платы 20 500 ₽ м²/год
Эксплуатационные расходы Включены в ставку
Налоги С учётом НДС
Тип договора Прямая аренда
Срок договора от 11 месяцев
Размер платежей 1 месяц
Обеспечительный платеж 1 месяц
Статус Сдан

О бизнес-центре

Класс B
Этажность 5
Лифты Есть
Общая площадь 6 000 м²
Паркинг Наземный
Вентиляция приточно-вытяжная
Кондиционирование центральное
Телекоммуникации Интернет/Телефония

Расположение

Подробная презентацию по предложению

Собираете информацию? Получите подробную презентацию в удобном формате, чтобы обсудить вариант с коллегами или переслать руководству!

Похожие предложения в других зданиях

БЕЗ КОМИССИИ ID: 1316053 Рейтинг6.9 КлассB

Москва, 3-я Мытищинская улица, 16

Алексеевская → 777 м
~ 8 мин
Арендная плата в месяц 930 000 ₽ 18 000 ₽/м² в год С учётом НДС
Характеристики 620 м² 3 - 4 этаж Готово к въезду
Преимущества
  • Класс B
  • Пешком от метро
  • Кондиционирование и вентиляция
  • Свой паркинг

Сдается в долгосрочную аренду офисный блок класса B площадью 620 квадр. метров в историческом бизнес-центре "Квант-Н"... подробнее

Презентация по предложению

Собираете информацию? Получите подробную презентацию в удобном формате!

БЕЗ КОМИССИИ ID: 1316336 Рейтинг6.9 КлассB

Москва, 3-я Мытищинская улица, 16

Алексеевская → 777 м
~ 8 мин
Арендная плата в месяц 828 000 ₽ 18 000 ₽/м² в год С учётом НДС
Характеристики 552 м² 3 - 4 этаж Готово к въезду
Преимущества
  • Класс B
  • Пешком от метро
  • Кондиционирование и вентиляция
  • Свой паркинг

Предлагаем в долгосрочную аренду помещение под офис класса B общей площадью 552 квадр. метров в историческом бизнес-центре "Квант-Н"... подробнее

Презентация по предложению

Собираете информацию? Получите подробную презентацию в удобном формате!

БЕЗ КОМИССИИ ID: 1314912 Рейтинг6.9 КлассB

Москва, 3-я Мытищинская улица, 16

Алексеевская → 777 м
~ 8 мин
Арендная плата в месяц 798 000 ₽ 18 000 ₽/м² в год С учётом НДС
Характеристики 532 м² 3 - 4 этаж Готово к въезду
Преимущества
  • Класс B
  • Пешком от метро
  • Кондиционирование и вентиляция
  • Свой паркинг

Сдается в долгосрочную аренду офисное помещение класса B площадью 532 кв.м в историческом бизнес-центре "Квант-Н"... подробнее

Презентация по предложению

Собираете информацию? Получите подробную презентацию в удобном формате!

БЕЗ КОМИССИИ ID: 1313886 Рейтинг6.9 КлассB

Москва, 3-я Мытищинская улица, 16

Алексеевская → 777 м
~ 8 мин
Арендная плата в месяц 777 000 ₽ 18 000 ₽/м² в год С учётом НДС
Характеристики 518 м² 3 - 4 этаж Готово к въезду
Преимущества
  • Класс B
  • Пешком от метро
  • Кондиционирование и вентиляция
  • Свой паркинг

Предлагаем в долгосрочную аренду офисный блок класса B площадью 518 кв.м в историческом бизнес-центре "Квант-Н"... подробнее

Презентация по предложению

Собираете информацию? Получите подробную презентацию в удобном формате!

БЕЗ КОМИССИИ ID: 1326131 Рейтинг6.3 КлассB

Москва, проезд Ольминского, 3a c3

Алексеевская → 860 м
~ 9 мин
Арендная плата в месяц 1 153 833 ₽ 23 000 ₽/м² в год Упрощённая система налогообложения
Характеристики 602 м² 2 - 6 этаж Готово к въезду
Преимущества
  • Класс B
  • Пешком от метро
  • Кондиционирование и вентиляция
  • Свой паркинг

Предлагается в долгосрочную прямую аренду офисное помещение класса B площадью 602 кв. метров в бизнес-центре... подробнее

Презентация по предложению

Собираете информацию? Получите подробную презентацию в удобном формате!

Посмотреть все похожие предложения
Отнеситесь рационально к процессу поиска нового офиса!

Просто ответьте на 3 вопроса, и наши специалисты сами предложат оптимальные варианты под ваш бюджет