8.2

Виртуальный тур

Смотреть все фото
БЕЗ КОМИССИИ ID: 966934 Рейтинг6.1 КлассB
Бизнес-центр «Марфинский 4»

Аренда офиса 700 м²

Москва, Марфинский проезд, 4

Петровско-Разумовская → 1.68 км
~ 17 мин
Арендная плата в месяц 1 283 300 ₽ 22 000 ₽/м² в год С учётом НДС

Презентация по предложению

Собираете информацию? Получите подробную презентацию в удобном формате!

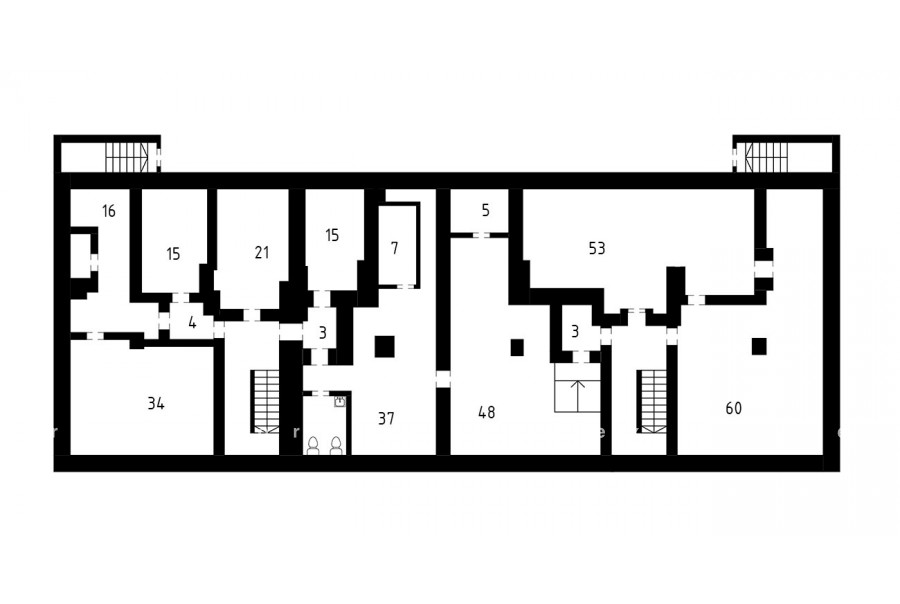
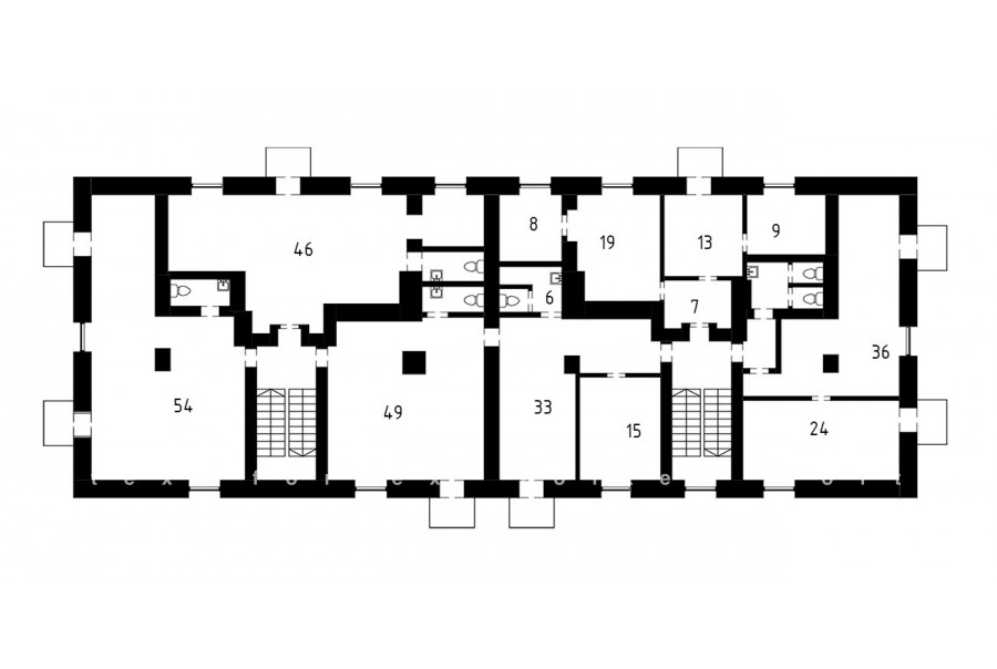
Площадь 700 м²
Состояние Готово к въезду
Планировка Смешанная
Этаж -1 - 3

Описание

Преимущества
  • Класс B
  • Пешком от метро
  • Кондиционирование и вентиляция
  • Свой паркинг
Предлагаем в долгосрочную аренду помещение под офис класса B общей площадью 700 кв.м в бизнес-центре.

Москва, СВАО, Марфинский проезд, 4

Характеристики местоположения:
- Автомобиль: близость транспортных магистралей, таких как Алтуфьевское шоссе, Дмитровское шоссе и других.
- Возможность аренды парковочных мест.
- Ближайшее метро: от метро "Фонвизинская" можно добраться пешком или на городском транспорте

Офис класса B:
- Офис с отделкой, полностью готов к аренде
- Кондиционирование: сплит-системы


Если предложение предварительно Вам подходит:

1. Мы отправим Вам подробную презентацию с планировкой и фотографиями в течение 10 минут после звонка, чтобы Вы могли поделиться информацией с руководством или с коллегами.
2. Ответим на любые Ваши вопросы, готовы обсуждать любые предложения по коммерческим условиям аренды помещения.
3.

Звоните нам в любое время. По будням мы сможем ответить на Ваши вопросы до 19:00. В выходные или вечернее время мы передадим Ваш контакт нашему менеджеру по аренде.

Коммерческие условия

Арендная плата 1 283 330 ₽
Ставка арендной платы 22 000 ₽ м²/год
Эксплуатационные расходы Включены в ставку
Налоги С учётом НДС
Тип договора Прямая аренда
Срок договора от 11 месяцев
Размер платежей 1 месяц
Обеспечительный платеж 1 месяц
Статус Сдан

О бизнес-центре

Класс B
Этажность 3
Лифты Нет
Общая площадь 2 345 м²
Паркинг Наземный
Вентиляция естественная
Кондиционирование сплит-системы
Телекоммуникации Интернет/Телефония

Расположение

Подробная презентацию по предложению

Собираете информацию? Получите подробную презентацию в удобном формате, чтобы обсудить вариант с коллегами или переслать руководству!

Похожие предложения в других зданиях

БЕЗ КОМИССИИ ID: 204427 Рейтинг7.6 КлассB

Москва, Дмитровское шоссе, 27 к1

Тимирязевская → 1.02 км
~ 10 мин
Арендная плата в месяц 1 537 200 ₽ 25 200 ₽/м² в год С учётом НДС
Характеристики 732 м² 15 - 19 этаж Под отделку
Преимущества
  • Класс B
  • Пешком от метро
  • Кондиционирование и вентиляция
  • Свой паркинг

Сдаем в долгосрочную прямую аренду помещение под офис класса B площадью 732 кв. метров в бизнес-центре "Молодежный"... подробнее

Презентация по предложению

Собираете информацию? Получите подробную презентацию в удобном формате!

БЕЗ КОМИССИИ ID: 219453 Рейтинг7.6 КлассB

Москва, Дмитровское шоссе, 27 к1

Тимирязевская → 1.02 км
~ 10 мин
Арендная плата в месяц 1 386 000 ₽ 25 200 ₽/м² в год С учётом НДС
Характеристики 660 м² 8 этаж Готово к въезду
Преимущества
  • Класс B
  • Пешком от метро
  • Кондиционирование и вентиляция
  • Свой паркинг

Предлагается в долгосрочную аренду офисное помещение класса B площадью 660 квадр. метров в бизнес-центре "Молодежный"... подробнее

Презентация по предложению

Собираете информацию? Получите подробную презентацию в удобном формате!

ВОЗМОЖНО ОСВОБОЖДЕНИЕ ID: 1100632 Рейтинг6.6 КлассB

Москва, улица Руставели, 14 с6

Бутырская → 338 м
~ 4 мин
Арендная плата в месяц 1 222 650 ₽ 19 800 ₽/м² в год С учётом НДС
Характеристики 741 м² 2 этаж Готово к въезду
Преимущества
  • Класс B
  • Пешком от метро
  • Кондиционирование и вентиляция
  • Свой паркинг
  • Несколько провайдеров связи
  • Развитая инфраструктура

Сдается в прямую аренду офисный блок класса B площадью 741 кв.м в бизнес-центре... подробнее

Презентация по предложению

Собираете информацию? Получите подробную презентацию в удобном формате!

БЕЗ КОМИССИИ ID: 131558 Рейтинг6.5 КлассB

Москва, 1-я Останкинская улица, 33 к4

ВДНХ → 1.22 км
~ 12 мин
Арендная плата в месяц 997 500 ₽ 19 000 ₽/м² в год С учётом НДС
Характеристики 630 м² 1 этаж Готово к въезду
Преимущества
  • Класс B
  • Пешком от метро
  • Кондиционирование и вентиляция

Предлагается в прямую аренду офисный блок класса B общей площадью 630 кв. метров в бизнес-центре... подробнее

Презентация по предложению

Собираете информацию? Получите подробную презентацию в удобном формате!

БЕЗ КОМИССИИ ID: 3703 Рейтинг6.8 КлассB+

Москва, Нововладыкинский проезд, 8 с4

Окружная → 728 м
~ 7 мин
Арендная плата в месяц 1 333 333 ₽ 20 000 ₽/м² в год С учётом НДС
Характеристики 800 м² 0 этаж Готово к въезду
Преимущества
  • Класс B+
  • Пешком от метро
  • Кондиционирование и вентиляция
  • Свой паркинг
  • Несколько провайдеров связи

Сдается в прямую аренду офисный блок класса B+ площадью 800 квадратных метров в бизнес-центре "Красивый дом"... подробнее

Презентация по предложению

Собираете информацию? Получите подробную презентацию в удобном формате!

Посмотреть все похожие предложения
Отнеситесь рационально к процессу поиска нового офиса!

Просто ответьте на 3 вопроса, и наши специалисты сами предложат оптимальные варианты под ваш бюджет

.