8.2
Смотреть все фото
БЕЗ КОМИССИИ ID: 1281322 Рейтинг9.2 КлассА
Бизнес-центр «Marr Plaza»

Аренда офиса 2279 м²

Москва, улица Сергея Макеева, 13

Улица 1905 года → 931 м
~ 9 мин
Арендная плата в месяц 8 906 300 ₽ 46 900 ₽/м² в год С учётом НДС

Презентация по предложению

Собираете информацию? Получите подробную презентацию в удобном формате!

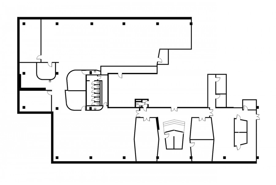
Площадь 2 279 м²
Состояние Готово к въезду
Планировка Смешанная
Этаж 7

Описание

Преимущества
  • Класс А
  • Пешком от метро
  • Кондиционирование и вентиляция
  • Свой паркинг
  • Развитая инфраструктура
Сдаем в прямую аренду помещение под офис класса А площадью 2279 квадр. метров в бизнес-центре "Marr Plaza".

Москва, ЦАО, улица Сергея Макеева, 13

Удобная локация здания:
- Автомобиль: близость транспортных магистралей, таких как Звенигородское шоссе, Третье Транспортное Кольцо и других.
- Возможность аренды парковочных мест.
- Ближайшее метро: от метро "Улица 1905 года" всего 9 мин пешком

Офис класса А:
- Помещение с отделкой, готово к въезду
- Вентиляция: Приточно-вытяжная вентиляция
- Кондиционирование: центральное
- Презентабельный центральный рецепшн
- Круглосуточная охрана и видеонаблюдение
- Развитая инфраструктура внутри здания

Возможность заключения контракта в соответствии с 44ФЗ по госзакупкам.

Если данное предложение подходит Вашему запросу:

1. Мы отправим Вам подробную презентацию с планировкой и фотографиями в течение 10 минут после звонка, чтобы Вы могли поделиться информацией с руководством или с коллегами.
2. Ответим на любые Ваши вопросы, готовы обсуждать любые предложения по коммерческим условиям аренды помещения.
3. Оперативно организуем просмотр помещения, договоримся на любое удобное время, подготовим виртуальный тур.

Звоните нам в любое время. По будням мы сможем ответить на Ваши вопросы до 19:00. В выходные или вечернее время мы передадим Ваш контакт нашему менеджеру по аренде.

Коммерческие условия

Арендная плата 8 096 720 ₽
Ставка арендной платы 46 900 ₽ м²/год
Эксплуатационные расходы Включены в ставку
Налоги С учётом НДС
Тип договора Прямая аренда
Срок договора от 11 месяцев
Размер платежей 1 месяц
Обеспечительный платеж 1 месяц
Статус Сдан

О бизнес-центре

Класс А
Этажность 9
Лифты Есть
Общая площадь 21 000 м²
Год постройки 2010
Паркинг Подземный
Вентиляция приточно-вытяжная
Кондиционирование центральное
Телекоммуникации Интернет/Телефония

Расположение

Подробная презентацию по предложению

Собираете информацию? Получите подробную презентацию в удобном формате, чтобы обсудить вариант с коллегами или переслать руководству!

Похожие предложения в других зданиях

БЕЗ КОМИССИИ ID: 277303 Рейтинг8.9 КлассА

Москва, 2-я Звенигородская улица, 2/1 с1

Улица 1905 года → 1.12 км
~ 11 мин
Арендная плата в месяц 10 272 250 ₽ 51 000 ₽/м² в год С учётом НДС
Характеристики 2 417 м² -1 - 3 этаж Готово к въезду
Преимущества
  • Класс А
  • Пешком от метро
  • Кондиционирование и вентиляция
  • Свой паркинг

Предлагаем в долгосрочную аренду офисный блок класса А общей площадью 2417 квадратных метров в историческом недавно отреконструированном бизнес-центре... подробнее

Презентация по предложению

Собираете информацию? Получите подробную презентацию в удобном формате!

БЕЗ КОМИССИИ ID: 165586 Рейтинг8.9 КлассА

Москва, 2-я Звенигородская улица, 2/1 с1

Улица 1905 года → 1.12 км
~ 11 мин
Арендная плата в месяц 9 000 000 ₽ 45 000 ₽/м² в год С учётом НДС
Характеристики 2 400 м² 0 - 3 этаж Готово к въезду
Преимущества
  • Класс А
  • Пешком от метро
  • Кондиционирование и вентиляция
  • Свой паркинг

Предлагается в долгосрочную прямую аренду офисное помещение класса А общей площадью 2400 кв. метров в историческом недавно отреконструированном бизнес-центре... подробнее

Презентация по предложению

Собираете информацию? Получите подробную презентацию в удобном формате!

БЕЗ КОМИССИИ ID: 241734 Рейтинг9.5 КлассА

Москва, 1-й Красногвардейский проезд, 15

Выставочная → 201 м
~ 2 мин
Арендная плата в месяц 10 911 333 ₽ 52 000 ₽/м² в год С учётом НДС
Характеристики 2 518 м² 16 этаж Готово к въезду
Преимущества
  • Класс А
  • Пешком от метро
  • Кондиционирование и вентиляция
  • Свой паркинг

Предлагается в аренду офисное помещение класса А площадью 2518 кв.м в бизнес-центре "Меркурий Тауэр"... подробнее

Презентация по предложению

Собираете информацию? Получите подробную презентацию в удобном формате!

БЕЗ КОМИССИИ ID: 1379454 Рейтинг8.9 КлассА

Москва, Тестовская улица, 10

Международная → 357 м
~ 5 мин
Арендная плата в месяц 14 956 895 ₽ 69 500 ₽/м² в год С учётом НДС
Характеристики 2 581 м² 2 этаж Готово к въезду
Преимущества
  • Класс А
  • Пешком от метро
  • Кондиционирование и вентиляция
  • Свой паркинг
  • Развитая инфраструктура

Сдается в прямую аренду офисное помещение класса А общей площадью 2581 квадратных метров в бизнес-центре "Северная Башня"... подробнее

Презентация по предложению

Собираете информацию? Получите подробную презентацию в удобном формате!

ВОЗМОЖНО ОСВОБОЖДЕНИЕ ID: 1288264 Рейтинг8.8 КлассА

Москва, Малый Конюшковский переулок, 2

Краснопресненская → 404 м
~ 4 мин
Арендная плата в месяц 10 312 500 ₽ 49 500 ₽/м² в год С учётом НДС
Характеристики 2 500 м² 3 этаж Готово к въезду
Преимущества
  • Класс А
  • Пешком от метро
  • Кондиционирование и вентиляция
  • Свой паркинг

Сдается в долгосрочную аренду офисное помещение класса А площадью 2500 кв. метров в бизнес-центре "MOD Design"... подробнее

Презентация по предложению

Собираете информацию? Получите подробную презентацию в удобном формате!

Посмотреть все похожие предложения
Отнеситесь рационально к процессу поиска нового офиса!

Просто ответьте на 3 вопроса, и наши специалисты сами предложат оптимальные варианты под ваш бюджет

.