8.2
Смотреть все фото
БЕЗ КОМИССИИ ID: 241653 Рейтинг9.2 КлассА
Бизнес-центр «Marr Plaza»

Аренда офиса 457 м²

Москва, улица Сергея Макеева, 13

Улица 1905 года → 931 м
~ 9 мин
Арендная плата в месяц 1 218 700 ₽ 32 000 ₽/м² в год С учётом НДС

Презентация по предложению

Собираете информацию? Получите подробную презентацию в удобном формате!

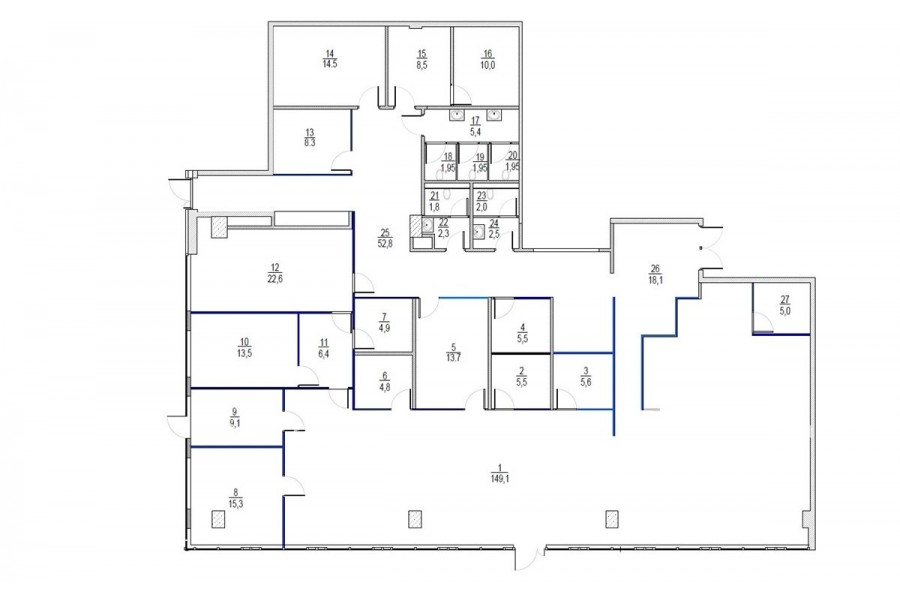
Площадь 457 м²
Состояние Готово к въезду
Планировка Смешанная
Этаж 1

Описание

Преимущества
  • Класс А
  • Пешком от метро
  • Кондиционирование и вентиляция
  • Свой паркинг
  • Развитая инфраструктура
Предлагается в долгосрочную аренду офис класса А площадью 457 кв. метров в бизнес-центре "Marr Plaza".

Москва, ЦАО, улица Сергея Макеева, 13

Удобная локация здания:
- Автомобиль: близость транспортных магистралей, таких как Третье Транспортное Кольцо, Звенигородское шоссе и других.
- Возможность аренды парковочных мест.
- Ближайшее метро: от метро "Улица 1905 года" всего 9 мин пешком

Офис класса А:
- Помещение с отделкой, готово к въезду
- Вентиляция: Приточно-вытяжная вентиляция
- Кондиционирование: центральное
- Презентабельный центральный ресепшн
- Круглосуточная охрана и видеонаблюдение
- Развитая инфраструктура внутри здания

Возможность заключения контракта в соответствии с 44ФЗ по госзакупкам.

Если данное предложение подходит Вашему запросу:

1. Мы подготовили презентацию с информацией о помещении, фотографиями и планировкой, чтобы Вы могли поделиться ей с коллегами или руководством. Попросите об этом нашего менеджера по телефону в объявлении.
2. Мы готовы ответить на любые Ваши вопросы о помещении и коммерческих условиях аренды.
3. Оперативно организуем просмотр помещения, договоримся на любое удобное время, подготовим виртуальный тур.

Вы можете позвонить нам в любое время. Мы ответим на Ваши вопросы по будням до 19:00, а поздно вечером или в выходные зафиксируем Ваш контакт и перезвоним в рабочее время.

Коммерческие условия

Арендная плата 1 486 770 ₽
Ставка арендной платы 32 000 ₽ м²/год
Эксплуатационные расходы Включены в ставку
Налоги С учётом НДС
Тип договора Прямая аренда
Срок договора Долгосрочный
Размер платежей 1 месяц
Обеспечительный платеж 2 месяц
Статус Сдан

О бизнес-центре

Класс А
Этажность 9
Лифты Есть
Общая площадь 21 000 м²
Год постройки 2010
Паркинг Подземный
Вентиляция приточно-вытяжная
Кондиционирование центральное
Телекоммуникации Интернет/Телефония

Расположение

Подробная презентацию по предложению

Собираете информацию? Получите подробную презентацию в удобном формате, чтобы обсудить вариант с коллегами или переслать руководству!

Похожие предложения в других зданиях

ВОЗМОЖНО ОСВОБОЖДЕНИЕ ID: 1285238 Рейтинг8.0 КлассB+

Москва, 2-я Звенигородская улица, 13 с43

Улица 1905 года → 959 м
~ 10 мин
Арендная плата в месяц 1 240 250 ₽ 33 000 ₽/м² в год С учётом НДС
Характеристики 451 м² 6 этаж Готово к въезду
Преимущества
  • Класс B+
  • Пешком от метро
  • Кондиционирование и вентиляция
  • Свой паркинг
  • Несколько провайдеров связи

Предлагаем в прямую аренду офис класса B+ общей площадью 451 кв.м в бизнес-центре... подробнее

>

Виртуальный тур

Презентация по предложению

Собираете информацию? Получите подробную презентацию в удобном формате!

ВОЗМОЖНО ОСВОБОЖДЕНИЕ ID: 249825 Рейтинг7.7 КлассB

Москва, 2-я Звенигородская улица, 13 с15

Улица 1905 года → 770 м
~ 8 мин
Арендная плата в месяц 1 185 000 ₽ 30 000 ₽/м² в год С учётом НДС
Характеристики 474 м² 3 этаж Готово к въезду
Преимущества
  • Класс B
  • Пешком от метро
  • Кондиционирование и вентиляция
  • Свой паркинг
  • Несколько провайдеров связи

Сдается в долгосрочную прямую аренду офисный блок класса B площадью 474 кв.м в бизнес-центре... подробнее

Презентация по предложению

Собираете информацию? Получите подробную презентацию в удобном формате!

БЕЗ КОМИССИИ ID: 1290114 Рейтинг7.8 КлассB+

Москва, 2-я Звенигородская улица, 13 с42

Улица 1905 года → 1.03 км
~ 10 мин
Арендная плата в месяц 1 080 750 ₽ 33 000 ₽/м² в год С учётом НДС
Характеристики 393 м² 9 этаж Готово к въезду
Преимущества
  • Класс B+
  • Пешком от метро
  • Кондиционирование и вентиляция
  • Свой паркинг
  • Развитая инфраструктура

Предлагается в долгосрочную прямую аренду помещение под офис класса B+ площадью 393 кв. метров в бизнес-центре "Краснопресненский"... подробнее

>

Виртуальный тур

Презентация по предложению

Собираете информацию? Получите подробную презентацию в удобном формате!

БЕЗ КОМИССИИ ID: 528422 Рейтинг6.4 КлассB

Москва, Столярный переулок, 3 к6

Краснопресненская → 763 м
~ 8 мин
Арендная плата в месяц 1 080 000 ₽ 30 000 ₽/м² в год С учётом НДС
Характеристики 432 м² 1 этаж Готово к въезду
Преимущества
  • Класс B
  • Пешком от метро
  • Кондиционирование и вентиляция

Сдается в прямую аренду офисное помещение класса B общей площадью 432 кв.м в бизнес-центре "Апельсин"... подробнее

Презентация по предложению

Собираете информацию? Получите подробную презентацию в удобном формате!

БЕЗ КОМИССИИ ID: 278595 Рейтинг8.6 КлассА

Москва, Беговая улица, 6А

Беговая → 778 м
~ 8 мин
Арендная плата в месяц 1 182 500 ₽ 30 000 ₽/м² в год С учётом НДС
Характеристики 473 м² 4 этаж Готово к въезду
Преимущества
  • Класс А
  • Пешком от метро
  • Кондиционирование и вентиляция
  • Свой паркинг

Сдается в долгосрочную аренду помещение под офис класса А площадью 473 кв.м в бизнес-центре... подробнее

Презентация по предложению

Собираете информацию? Получите подробную презентацию в удобном формате!

Посмотреть все похожие предложения
Отнеситесь рационально к процессу поиска нового офиса!

Просто ответьте на 3 вопроса, и наши специалисты сами предложат оптимальные варианты под ваш бюджет

.