8.2
Смотреть все фото
БЕЗ КОМИССИИ ID: 1378061 Рейтинг7.8 КлассB
Бизнес-центр «Мастеркова 4»

Аренда офиса 540 м²

Москва, улица Мастеркова, 4

Автозаводская → 69 м
~ 1 мин
Арендная плата в месяц 1 350 000 ₽ 30 000 ₽/м² в год С учётом НДС

Презентация по предложению

Собираете информацию? Получите подробную презентацию в удобном формате!

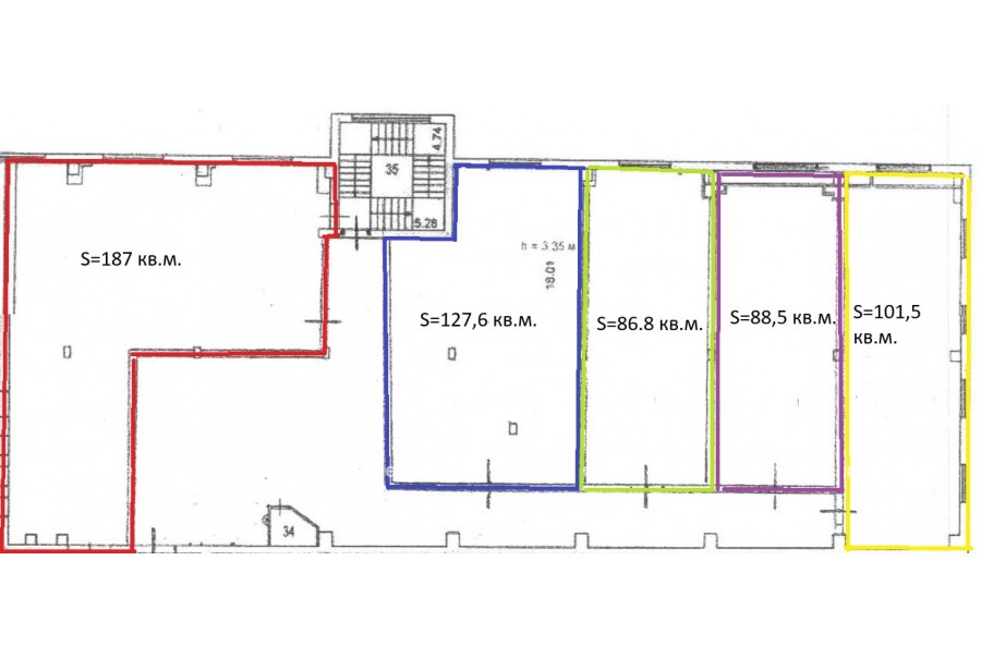
Площадь 540 м²
Состояние Готово к въезду
Планировка Смешанная
Этаж 2

Описание

Преимущества
  • Класс B
  • Пешком от метро
  • Кондиционирование и вентиляция
  • Свой паркинг
  • Развитая инфраструктура
Сдается в долгосрочную прямую аренду офисное помещение класса B площадью 540 кв. метров в бизнес-центре.

Москва, ЮАО, улица Мастеркова, 4

Удобное расположение здания для всех видов транспорта:
- Автомобиль: близость транспортных магистралей, таких как Проспект Андропова, Третье Транспортное Кольцо и других.
- Возможность аренды парковочных мест.
- Ближайшее метро: буквально 1 мин пешком от метро "Автозаводская"

Офис класса B:
- Помещение готово к въезду
- Вентиляция: Приточно-вытяжная вентиляция
- Кондиционирование: центральное
- Круглосуточная охрана и видеонаблюдение
- Развитая инфраструктура внутри здания


Что еще можно узнать о предложении:

1. Мы подготовили презентацию с информацией о помещении, фотографиями и планировкой, чтобы Вы могли поделиться ей с коллегами или руководством. Попросите об этом нашего менеджера по телефону в объявлении.
2. Мы готовы ответить на любые Ваши вопросы о помещении и коммерческих условиях аренды.
3. Оперативно организуем просмотр помещения с менеджерами на объекте или подготовим виртуальный тур.

Вы можете позвонить нам в любое время. Мы ответим на Ваши вопросы по будням до 19:00, а поздно вечером или в выходные зафиксируем Ваш контакт и перезвоним в рабочее время.

Коммерческие условия

Арендная плата 1 350 000 ₽
Ставка арендной платы 30 000 ₽ м²/год
Эксплуатационные расходы Включены в ставку
Налоги С учётом НДС
Тип договора Субаренда
Срок договора от 11 месяцев
Размер платежей 1 месяц
Обеспечительный платеж 1 месяц
Статус Свободен

О бизнес-центре

Класс B
Этажность 22
Лифты Есть
Общая площадь 27 547 м²
Год постройки 1986
Паркинг Наземный
Вентиляция приточно-вытяжная
Кондиционирование центральное
Телекоммуникации Интернет/Телефония

Расположение

Подробная презентацию по предложению

Собираете информацию? Получите подробную презентацию в удобном формате, чтобы обсудить вариант с коллегами или переслать руководству!

Похожие предложения в других зданиях

БЕЗ КОМИССИИ ID: 137085 Рейтинг8.4 КлассB+

Москва, улица Ленинская Слобода, 19

Автозаводская → 574 м
~ 6 мин
Арендная плата в месяц 1 608 000 ₽ 32 000 ₽/м² в год С учётом НДС
Характеристики 603 м² 5 этаж Готово к въезду
Преимущества
  • Класс B+
  • Пешком от метро
  • Кондиционирование и вентиляция
  • Свой паркинг
  • Несколько провайдеров связи
  • Развитая инфраструктура

Предлагаем в долгосрочную аренду помещение под офис класса B+ общей площадью 603 кв. метров в бизнес-центре "Омега Плаза"... подробнее

Презентация по предложению

Собираете информацию? Получите подробную презентацию в удобном формате!

БЕЗ КОМИССИИ ID: 1378627 Рейтинг8.4 КлассB+

Москва, улица Ленинская Слобода, 19

Автозаводская → 574 м
~ 6 мин
Арендная плата в месяц 1 252 674 ₽ 31 000 ₽/м² в год Упрощённая система налогообложения
Характеристики 485 м² 3 - 5 этаж Готово к въезду
Преимущества
  • Класс B+
  • Пешком от метро
  • Кондиционирование и вентиляция
  • Свой паркинг
  • Несколько провайдеров связи
  • Развитая инфраструктура

Сдается в долгосрочную аренду офис класса B+ общей площадью 485 квадратных метров в бизнес-центре "Омега Плаза"... подробнее

Презентация по предложению

Собираете информацию? Получите подробную презентацию в удобном формате!

БЕЗ КОМИССИИ ID: 1381016 Рейтинг8.6 КлассB+

Москва, улица Ленинская Слобода, 26 с5

Автозаводская → 674 м
~ 7 мин
Арендная плата в месяц 1 667 090 ₽ 33 100 ₽/м² в год С учётом НДС
Характеристики 604 м² 1 - 5 этаж Готово к въезду
Преимущества
  • Класс B+
  • Пешком от метро
  • Кондиционирование и вентиляция
  • Свой паркинг

Предлагается в прямую аренду офис класса B+ площадью 604 кв.м в недавно отреконструированном бизнес-центре "Симонов Плаза"... подробнее

Презентация по предложению

Собираете информацию? Получите подробную презентацию в удобном формате!

БЕЗ КОМИССИИ ID: 1381015 Рейтинг8.6 КлассB+

Москва, улица Ленинская Слобода, 26 с5

Автозаводская → 674 м
~ 7 мин
Арендная плата в месяц 1 259 917 ₽ 30 200 ₽/м² в год С учётом НДС
Характеристики 500 м² 1 - 2 этаж Готово к въезду
Преимущества
  • Класс B+
  • Пешком от метро
  • Кондиционирование и вентиляция
  • Свой паркинг

Предлагается в прямую аренду офисный блок класса B+ общей площадью 500 квадратных метров в недавно отреконструированном бизнес-центре "Симонов Плаза"... подробнее

Презентация по предложению

Собираете информацию? Получите подробную презентацию в удобном формате!

БЕЗ КОМИССИИ ID: 1282190 Рейтинг8.5 КлассB+

Москва, улица Ленинская Слобода, 26 с2

Автозаводская → 428 м
~ 4 мин
Арендная плата в месяц 1 540 000 ₽ 30 800 ₽/м² в год С учётом НДС
Характеристики 600 м² 2 этаж Готово к въезду
Преимущества
  • Класс B+
  • Пешком от метро
  • Кондиционирование и вентиляция
  • Свой паркинг

Предлагается в прямую аренду офисное помещение класса B+ общей площадью 600 кв.м в новом Офисно-торговом центре "Глобал Молл"... подробнее

Презентация по предложению

Собираете информацию? Получите подробную презентацию в удобном формате!

Посмотреть все похожие предложения
Отнеситесь рационально к процессу поиска нового офиса!

Просто ответьте на 3 вопроса, и наши специалисты сами предложат оптимальные варианты под ваш бюджет

.