8.2
Смотреть все фото
ВОЗМОЖНО ОСВОБОЖДЕНИЕ ID: 208662 Рейтинг8.0 КлассB+
Бизнес-центр «Матвеевский»

Аренда офиса 1290 м²

Москва, улица Пречистенка, 38

Парк культуры → 813 м
~ 8 мин
Арендная плата в месяц по запросу потенциального арендатора Срок освобождение в течение 3 месяцев

Информация по помещению

Ознакомьтесь с дополнительной информацией по помещению и коммерческим условиям!

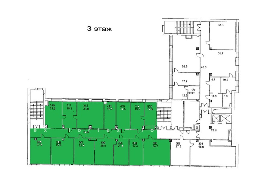
Площадь 1 290 м²
Планировка Кабинетная
Этаж 3 - 4

Описание

Преимущества
  • Класс B+
  • Пешком от метро
  • Кондиционирование и вентиляция
  • Свой паркинг

Коммерческие условия

Арендная плата по запросу
Ставка арендной платы по запросу
Эксплуатационные расходы Включены в ставку
Налоги С учётом НДС
Тип договора Прямая аренда
Срок договора от 11 месяцев
Размер платежей 1 месяц
Обеспечительный платеж 3 месяц
Статус Сдан

О бизнес-центре

Класс B+
Этажность 4
Лифты Есть
Общая площадь 4 250 м²
Год постройки 1989
Паркинг Наземный
Вентиляция приточно-вытяжная
Кондиционирование центральное
Телекоммуникации Интернет/Телефония

Расположение

Информация по помещению

Получите дополнительную информацию по помещению и коммерческом условиям!

Похожие предложения в других зданиях

БЕЗ КОМИССИИ ID: 4003 Рейтинг8.3 КлассB+

Москва, Смоленский бульвар, 4

Парк культуры → 772 м
~ 8 мин
Арендная плата в месяц 3 331 125 ₽ 31 500 ₽/м² в год С учётом НДС
Характеристики 1 269 м² 2 этаж Готово к въезду
Преимущества
  • Класс B+
  • Пешком от метро
  • Кондиционирование и вентиляция
  • Свой паркинг
  • Развитая инфраструктура

Собственник сдает в долгосрочную прямую аренду офис класса B+ общей площадью 1269 квадр. метров в историческом бизнес-центре... подробнее

Презентация по предложению

Собираете информацию? Получите подробную презентацию в удобном формате!

БЕЗ КОМИССИИ ID: 49583 Рейтинг8.5 КлассB+

Москва, улица Бурденко, 14

Парк культуры → 909 м
~ 9 мин
Арендная плата в месяц 3 500 000 ₽ 35 000 ₽/м² в год С учётом НДС
Характеристики 1 200 м² 2 этаж Готово к въезду
Преимущества
  • Класс B+
  • Пешком от метро
  • Кондиционирование и вентиляция
  • Свой паркинг

Предлагается в долгосрочную аренду офис класса B+ общей площадью 1200 квадр. метров в бизнес-центре... подробнее

Презентация по предложению

Собираете информацию? Получите подробную презентацию в удобном формате!

БЕЗ КОМИССИИ ID: 544295 Рейтинг7.8 КлассB+

Москва, Малый Могильцевский переулок, 2

Кропоткинская → 815 м
~ 8 мин
Арендная плата в месяц 2 905 000 ₽ 30 000 ₽/м² в год С учётом НДС
Характеристики 1 162 м² 2 - 4 этаж Готово к въезду
Преимущества
  • Класс B+
  • Пешком от метро
  • Кондиционирование и вентиляция
  • Свой паркинг

Предлагаем в долгосрочную прямую аренду офисное помещение класса B+ общей площадью 1162 квадр. метров в бизнес-центре "Гагаринский"... подробнее

Презентация по предложению

Собираете информацию? Получите подробную презентацию в удобном формате!

БЕЗ КОМИССИИ ID: 220529 Рейтинг4.9 КлассB

Москва, улица Тимура Фрунзе, 11 к8

Парк культуры → 425 м
~ 4 мин
Арендная плата в месяц 3 167 017 ₽ 31 100 ₽/м² в год С учётом НДС
Характеристики 1 222 м² 1 - 3 этаж Готово к въезду
Преимущества
  • Класс B
  • Пешком от метро
  • Кондиционирование и вентиляция

Предлагается в долгосрочную аренду помещение под офис класса B площадью 1222 квадр. метров в бизнес-центре "Морозов"... подробнее

Презентация по предложению

Собираете информацию? Получите подробную презентацию в удобном формате!

БЕЗ КОМИССИИ ID: 1380936 Рейтинг6.2 КлассB

Москва, Земледельческий переулок, 15

Смоленская → 1.03 км
~ 10 мин
Арендная плата в месяц 2 815 777 ₽ 30 200 ₽/м² в год С учётом НДС
Характеристики 1 119 м² 2 - 5 этаж Готово к въезду
Преимущества
  • Класс B
  • Пешком от метро
  • Кондиционирование и вентиляция
  • Свой паркинг

Предлагается в долгосрочную прямую аренду офис класса B площадью 1119 квадр. метров в бизнес-центре... подробнее

Презентация по предложению

Собираете информацию? Получите подробную презентацию в удобном формате!

Посмотреть все похожие предложения
Отнеситесь рационально к процессу поиска нового офиса!

Просто ответьте на 3 вопроса, и наши специалисты сами предложат оптимальные варианты под ваш бюджет

.