8.2
Смотреть все фото
ВОЗМОЖНО ОСВОБОЖДЕНИЕ ID: 265541 Рейтинг8.0 КлассB+
Бизнес-центр «Матвеевский»

Аренда офиса 3600 м²

Москва, улица Пречистенка, 38

Парк культуры → 813 м
~ 8 мин
Арендная плата в месяц по запросу потенциального арендатора Срок освобождение в течение 3 месяцев

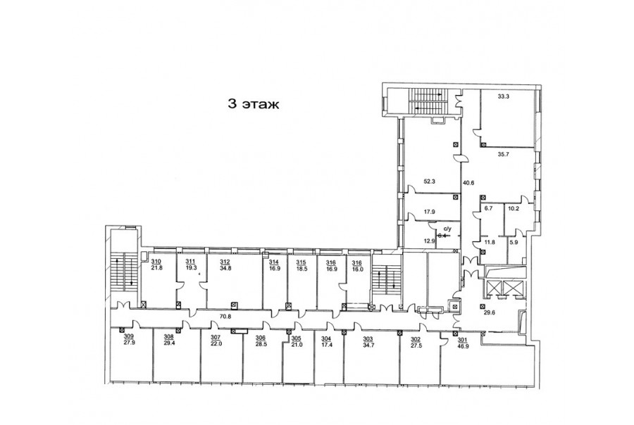
Информация по помещению

Ознакомьтесь с дополнительной информацией по помещению и коммерческим условиям!

Площадь 3 600 м²
Планировка Кабинетная
Этаж 1 - 4

Описание

Преимущества
  • Класс B+
  • Пешком от метро
  • Кондиционирование и вентиляция
  • Свой паркинг

Коммерческие условия

Арендная плата по запросу
Ставка арендной платы по запросу
Эксплуатационные расходы Включены в ставку
Налоги С учётом НДС
Тип договора Прямая аренда
Срок договора от 11 месяцев
Размер платежей 1 месяц
Обеспечительный платеж 3 месяц
Статус Сдан

О бизнес-центре

Класс B+
Этажность 4
Лифты Есть
Общая площадь 4 250 м²
Год постройки 1989
Паркинг Наземный
Вентиляция приточно-вытяжная
Кондиционирование центральное
Телекоммуникации Интернет/Телефония

Расположение

Информация по помещению

Получите дополнительную информацию по помещению и коммерческом условиям!

Похожие предложения в других зданиях

БЕЗ КОМИССИИ ID: 233194 Рейтинг8.7 КлассА

Москва, Смоленский бульвар, 13

Смоленская → 835 м
~ 8 мин
Арендная плата в месяц 12 350 000 ₽ 39 000 ₽/м² в год С учётом НДС
Характеристики 3 800 м² 1 - 8 этаж Под отделку
Преимущества
  • Класс А
  • Пешком от метро
  • Новое строительство
  • Кондиционирование и вентиляция
  • Свой паркинг

Сдается в долгосрочную аренду офисное помещение класса А площадью 3800 кв. метров в бизнес-центре... подробнее

Презентация по предложению

Собираете информацию? Получите подробную презентацию в удобном формате!

БЕЗ КОМИССИИ ID: 21475 Рейтинг4.9 КлассB

Москва, улица Тимура Фрунзе, 11 к8

Парк культуры → 425 м
~ 4 мин
Арендная плата в месяц 12 833 333 ₽ 38 500 ₽/м² в год С учётом НДС
Характеристики 4 000 м² 1 этаж Под отделку
Преимущества
  • Класс B
  • Пешком от метро
  • Кондиционирование и вентиляция

Собственник сдает в долгосрочную прямую аренду помещение под офис класса B общей площадью 4000 квадр. метров в бизнес-центре "Морозов"... подробнее

Презентация по предложению

Собираете информацию? Получите подробную презентацию в удобном формате!

БЕЗ КОМИССИИ ID: 1054232 Рейтинг6.9 КлассB

Москва, Ружейный переулок, 6 с1

Смоленская → 697 м
~ 7 мин
Арендная плата в месяц 10 521 875 ₽ 34 100 ₽/м² в год С учётом НДС
Характеристики 3 700 м² -1 - 4 этаж Готово к въезду
Преимущества
  • Класс B
  • Пешком от метро
  • Кондиционирование и вентиляция
  • Свой паркинг
  • Развитая инфраструктура

Сдаем в долгосрочную прямую аренду помещение под офис класса B общей площадью 3700 квадр. метров в историческом бизнес-центре... подробнее

>

Виртуальный тур

Презентация по предложению

Собираете информацию? Получите подробную презентацию в удобном формате!

ВОЗМОЖНО ОСВОБОЖДЕНИЕ ID: 227164 Рейтинг9.2 КлассB+

Москва, Плотников переулок, 17

Смоленская → 476 м
~ 5 мин
Арендная плата в месяц 9 900 000 ₽ 36 000 ₽/м² в год С учётом НДС
Характеристики 3 300 м² 1 - 7 этаж Готово к въезду
Преимущества
  • Класс B+
  • Пешком от метро
  • Кондиционирование и вентиляция
  • Свой паркинг
  • Несколько провайдеров связи

Собственник сдает в долгосрочную прямую аренду помещение под офис класса B+ площадью 3300 квадратных метров в бизнес-центре... подробнее

Презентация по предложению

Собираете информацию? Получите подробную презентацию в удобном формате!

БЕЗ КОМИССИИ ID: 236915 Рейтинг9.4 КлассА

Москва, Новинский бульвар, 8

Смоленская → 479 м
~ 5 мин
Арендная плата в месяц 11 526 667 ₽ 40 000 ₽/м² в год С учётом НДС
Характеристики 3 458 м² 6 этаж Готово к въезду
Преимущества
  • Класс А
  • Пешком от метро
  • Кондиционирование и вентиляция
  • Свой паркинг
  • Несколько провайдеров связи
  • Развитая инфраструктура

Сдается в долгосрочную прямую аренду помещение под офис класса А общей площадью 3458 квадр. метров в бизнес-центре "Лотте Плаза"... подробнее

Презентация по предложению

Собираете информацию? Получите подробную презентацию в удобном формате!

Посмотреть все похожие предложения
Отнеситесь рационально к процессу поиска нового офиса!

Просто ответьте на 3 вопроса, и наши специалисты сами предложат оптимальные варианты под ваш бюджет

.