8.2
Смотреть все фото
БЕЗ КОМИССИИ ID: 225439 Рейтинг8.0 КлассB
Бизнес-центр «Медынская 14А»

Аренда офиса 876 м²

Москва, Медынская улица, 14А

Пражская → 5.23 км
~ 19 мин
Арендная плата в месяц 1 460 000 ₽ 20 000 ₽/м² в год С учётом НДС

Презентация по предложению

Собираете информацию? Получите подробную презентацию в удобном формате!

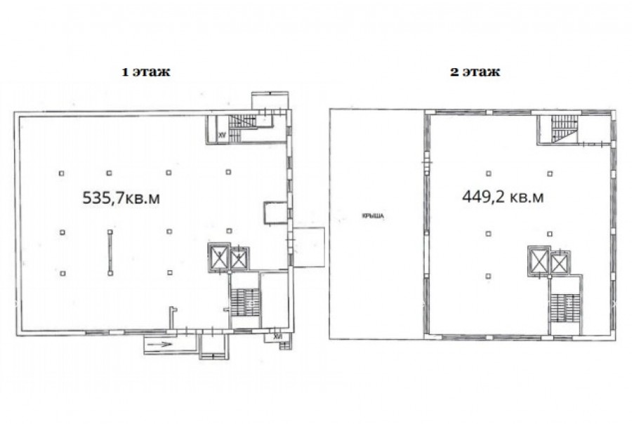
Площадь 876 м²
Состояние Готово к въезду
Планировка Кабинетная
Этаж 1

Описание

Преимущества
  • Класс B
  • Кондиционирование и вентиляция
  • Свой паркинг
Сдаем в прямую аренду офисное помещение класса B общей площадью 876 кв. метров в бизнес-центре.

Москва, ЮАО, Медынская улица, 14А

Характеристики местоположения:
- Автомобиль: близость транспортных магистралей, таких как Липецкая улица, МКАД и других.
- Возможность аренды парковочных мест.
- Ближайшее метро: метро "Пражская", далее городской транспорт до здания

Офис класса B:
- Помещение готово к въезду
- Вентиляция: Приточно-вытяжная вентиляция
- Кондиционирование: центральное


Если данное предложение подходит Вашему запросу:

1. Мы отправим Вам подробную презентацию с планировкой и фотографиями в течение 10 минут после звонка, чтобы Вы могли поделиться информацией с руководством или с коллегами.
2. Ответим на любые Ваши вопросы, готовы обсуждать любые предложения по коммерческим условиям аренды помещения.
3. Оперативно организуем просмотр помещения с менеджерами на объекте или подготовим виртуальный тур.

Вы можете позвонить нам в любое время. Мы ответим на Ваши вопросы по будням до 19:00, а поздно вечером или в выходные сможем передать Ваш контакт нашему менеджеру.

Коммерческие условия

Арендная плата 1 460 000 ₽
Ставка арендной платы 20 000 ₽ м²/год
Эксплуатационные расходы Включены в ставку
Налоги С учётом НДС
Тип договора Прямая аренда
Срок договора от 11 месяцев
Размер платежей 1 месяц
Обеспечительный платеж 1 месяц
Статус Сдан

О бизнес-центре

Класс B
Этажность 4
Лифты Есть
Общая площадь 4 598 м²
Год постройки 1975
Паркинг Наземный
Вентиляция приточно-вытяжная
Кондиционирование центральное
Телекоммуникации Интернет/Телефония

Расположение

Подробная презентацию по предложению

Собираете информацию? Получите подробную презентацию в удобном формате, чтобы обсудить вариант с коллегами или переслать руководству!

Похожие предложения в других зданиях

ВОЗМОЖНО ОСВОБОЖДЕНИЕ ID: 1310217 Рейтинг7.3 КлассB+

Москва, Дорожная улица, 60Б

Аннино → 930 м
~ 9 мин
Арендная плата в месяц 1 837 500 ₽ 22 000 ₽/м² в год С учётом НДС
Характеристики 1 000 м² 6 этаж Готово к въезду
Преимущества
  • Класс B+
  • Пешком от метро
  • Кондиционирование и вентиляция
  • Свой паркинг
  • Несколько провайдеров связи
  • Развитая инфраструктура

Предлагается в долгосрочную аренду офис класса B+ общей площадью 1000 квадр. метров в бизнес-центре "Аннино Плаза"... подробнее

Презентация по предложению

Собираете информацию? Получите подробную презентацию в удобном формате!

ВОЗМОЖНО ОСВОБОЖДЕНИЕ ID: 1310238 Рейтинг7.3 КлассB+

Москва, Дорожная улица, 60Б

Аннино → 930 м
~ 9 мин
Арендная плата в месяц 1 653 750 ₽ 22 000 ₽/м² в год С учётом НДС
Характеристики 900 м² 6 этаж Готово к въезду
Преимущества
  • Класс B+
  • Пешком от метро
  • Кондиционирование и вентиляция
  • Свой паркинг
  • Несколько провайдеров связи
  • Развитая инфраструктура

Предлагается в долгосрочную прямую аренду офисное помещение класса B+ площадью 900 квадратных метров в бизнес-центре "Аннино Плаза"... подробнее

Презентация по предложению

Собираете информацию? Получите подробную презентацию в удобном формате!

БЕЗ КОМИССИИ ID: 1320770 Рейтинг4.5 КлассB

Москва, Дорожная улица, 12

Пражская → 1.77 км
~ 18 мин
Арендная плата в месяц 1 780 000 ₽ 21 400 ₽/м² в год С учётом НДС
Характеристики 1 000 м² 1 - 2 этаж Готово к въезду
Преимущества
  • Класс B
  • Пешком от метро

Сдается в прямую аренду помещение под офис класса B общей площадью 1000 квадратных метров в бизнес-центре... подробнее

Презентация по предложению

Собираете информацию? Получите подробную презентацию в удобном формате!

БЕЗ КОМИССИИ ID: 208305 Рейтинг6.7 КлассB

Москва, Варшавское шоссе, 129 к2

Пражская → 671 м
~ 7 мин
Арендная плата в месяц 1 510 000 ₽ 20 000 ₽/м² в год С учётом НДС
Характеристики 906 м² 2 этаж Готово к въезду
Преимущества
  • Класс B
  • Пешком от метро
  • Кондиционирование и вентиляция
  • Свой паркинг
  • Несколько провайдеров связи
  • Развитая инфраструктура

Сдаем в долгосрочную прямую аренду помещение под офис класса B общей площадью 906 квадратных метров в бизнес-центре "Офис-парк Варшавский"... подробнее

Презентация по предложению

Собираете информацию? Получите подробную презентацию в удобном формате!

БЕЗ КОМИССИИ ID: 103224 Рейтинг6.7 КлассB

Москва, Варшавское шоссе, 129 к2

Пражская → 671 м
~ 7 мин
Арендная плата в месяц 1 500 000 ₽ 20 000 ₽/м² в год С учётом НДС
Характеристики 900 м² 4 этаж Готово к въезду
Преимущества
  • Класс B
  • Пешком от метро
  • Кондиционирование и вентиляция
  • Свой паркинг
  • Несколько провайдеров связи
  • Развитая инфраструктура

Предлагается в прямую аренду офис класса B общей площадью 900 квадратных метров в бизнес-центре "Офис-парк Варшавский"... подробнее

Презентация по предложению

Собираете информацию? Получите подробную презентацию в удобном формате!

Посмотреть все похожие предложения
Отнеситесь рационально к процессу поиска нового офиса!

Просто ответьте на 3 вопроса, и наши специалисты сами предложат оптимальные варианты под ваш бюджет

.