8.2

Виртуальный тур

Смотреть все фото
БЕЗ КОМИССИИ ID: 288863 Рейтинг9.2 КлассА

Москва, проспект Мира, 6

Сухаревская → 84 м
~ 1 мин
Арендная плата в месяц 714 600 ₽ 35 000 ₽/м² в год С учётом НДС

Презентация по предложению

Собираете информацию? Получите подробную презентацию в удобном формате!

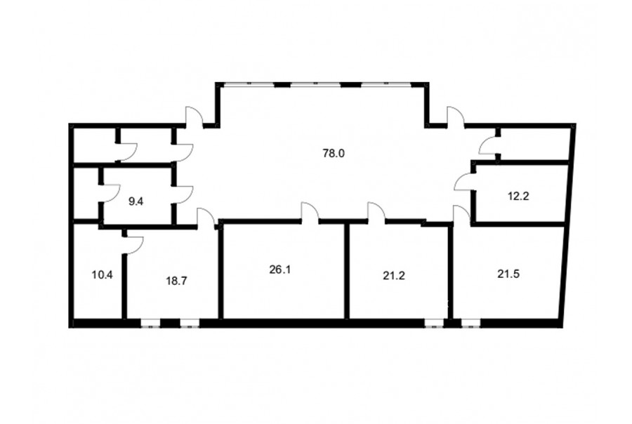
Площадь 245 м²
Состояние Готово к въезду
Планировка Смешанная
Этаж 4

Описание

Преимущества
  • Класс А
  • Пешком от метро
  • Кондиционирование и вентиляция
  • Свой паркинг
  • Развитая инфраструктура
Предлагается в прямую аренду офис класса А площадью 245 квадратных метров в бизнес-центре "Мелиора Плейс".

Москва, ЦАО, проспект Мира, 6

Удобное расположение здания для всех видов транспорта:
- Автомобиль: близость транспортных магистралей, таких как Садовое Кольцо, Проспект Мира и других.
- Возможность аренды парковочных мест.
- Ближайшее метро: буквально 1 мин пешком от метро "Сухаревская"

Офис класса А:
- Помещение готово к въезду
- Вентиляция: Приточно-вытяжная вентиляция
- Кондиционирование: центральное
- Развитая инфраструктура внутри здания


Если данное предложение подходит Вашему запросу:

1. Мы подготовили презентацию с информацией о помещении, фотографиями и планировкой, чтобы Вы могли поделиться ей с коллегами или руководством. Попросите об этом нашего менеджера по телефону в объявлении.
2. Ответим на любые Ваши вопросы, готовы обсуждать любые предложения по коммерческим условиям аренды помещения.
3.

Звоните нам в любое время. По будням мы сможем ответить на Ваши вопросы до 19:00. В выходные или вечернее время мы передадим Ваш контакт нашему менеджеру по аренде.

Коммерческие условия

Арендная плата 871 790 ₽
Ставка арендной платы 35 000 ₽ м²/год
Эксплуатационные расходы Включены в ставку
Налоги С учётом НДС
Тип договора Прямая аренда
Срок договора от 11 месяцев
Размер платежей 1 месяц
Обеспечительный платеж 1 месяц
Статус Сдан

О бизнес-центре

Класс А
Этажность 4
Лифты Есть
Общая площадь 4 872 м²
Год постройки 2008
Паркинг Подземный
Вентиляция приточно-вытяжная
Кондиционирование центральное
Телекоммуникации Интернет/Телефония

Расположение

Подробная презентацию по предложению

Собираете информацию? Получите подробную презентацию в удобном формате, чтобы обсудить вариант с коллегами или переслать руководству!

Похожие предложения в других зданиях

БЕЗ КОМИССИИ ID: 236354 Рейтинг8.2 КлассB

Москва, улица Гиляровского, 4 с5

Сухаревская → 199 м
~ 2 мин
Арендная плата в месяц 871 150 ₽ 39 900 ₽/м² в год С учётом НДС
Характеристики 262 м² 4 этаж Готово к въезду
Преимущества
  • Класс B
  • Пешком от метро
  • Кондиционирование и вентиляция
  • Свой паркинг

Предлагается в долгосрочную прямую аренду помещение под офис класса B общей площадью 262 квадратных метров в историческом недавно отреконструированном бизнес-центре... подробнее

Презентация по предложению

Собираете информацию? Получите подробную презентацию в удобном формате!

БЕЗ КОМИССИИ ID: 280052 Рейтинг7.3 КлассB+

Москва, проспект Мира, 20 к2

Проспект Мира → 397 м
~ 4 мин
Арендная плата в месяц 647 500 ₽ 30 000 ₽/м² в год С учётом НДС
Характеристики 259 м² 1 этаж Готово к въезду
Преимущества
  • Класс B+
  • Пешком от метро
  • Кондиционирование и вентиляция
  • Развитая инфраструктура

Предлагаем в прямую аренду офисное помещение класса B+ общей площадью 259 кв. метров в историческом недавно отреконструированном бизнес-центре... подробнее

Презентация по предложению

Собираете информацию? Получите подробную презентацию в удобном формате!

БЕЗ КОМИССИИ ID: 236178 Рейтинг5.7 КлассB

Москва, проспект Мира, 26с1

Проспект Мира → 208 м
~ 2 мин
Арендная плата в месяц 720 000 ₽ 36 000 ₽/м² в год С учётом НДС
Характеристики 240 м² 2 этаж Готово к въезду
Преимущества
  • Класс B
  • Пешком от метро
  • Кондиционирование и вентиляция
  • Развитая инфраструктура

Сдается в прямую аренду офисный блок класса B общей площадью 240 квадратных метров в бизнес-центре "Аптекарский огород"... подробнее

Презентация по предложению

Собираете информацию? Получите подробную презентацию в удобном формате!

БЕЗ КОМИССИИ ID: 1041446 Рейтинг7.2 КлассB

Москва, Трубная улица, 28 с1

Цветной бульвар → 543 м
~ 5 мин
Арендная плата в месяц 638 577 ₽ 35 200 ₽/м² в год С учётом НДС
Характеристики 218 м² 5 этаж Готово к въезду
Преимущества
  • Класс B
  • Пешком от метро
  • Кондиционирование и вентиляция
  • Свой паркинг

Сдаем в прямую аренду офисное помещение класса B площадью 218 кв. метров в бизнес-центре... подробнее

>

Виртуальный тур

Презентация по предложению

Собираете информацию? Получите подробную презентацию в удобном формате!

ВОЗМОЖНО ОСВОБОЖДЕНИЕ ID: 1296190 Рейтинг7.2 КлассB

Москва, Трубная улица, 28 с1

Цветной бульвар → 543 м
~ 5 мин
Арендная плата в месяц 636 533 ₽ 35 200 ₽/м² в год С учётом НДС
Характеристики 217 м² 5 этаж Готово к въезду
Преимущества
  • Класс B
  • Пешком от метро
  • Кондиционирование и вентиляция
  • Свой паркинг

Предлагаем в долгосрочную прямую аренду офис класса B общей площадью 217 кв.м в бизнес-центре... подробнее

>

Виртуальный тур

Презентация по предложению

Собираете информацию? Получите подробную презентацию в удобном формате!

Посмотреть все похожие предложения
Отнеситесь рационально к процессу поиска нового офиса!

Просто ответьте на 3 вопроса, и наши специалисты сами предложат оптимальные варианты под ваш бюджет

.