8.2

Виртуальный тур

Смотреть все фото
БЕЗ КОМИССИИ ID: 1255676 Рейтинг9.2 КлассА

Москва, проспект Мира, 6

Сухаревская → 84 м
~ 1 мин
Арендная плата в месяц 1 521 300 ₽ 39 600 ₽/м² в год С учётом НДС

Презентация по предложению

Собираете информацию? Получите подробную презентацию в удобном формате!

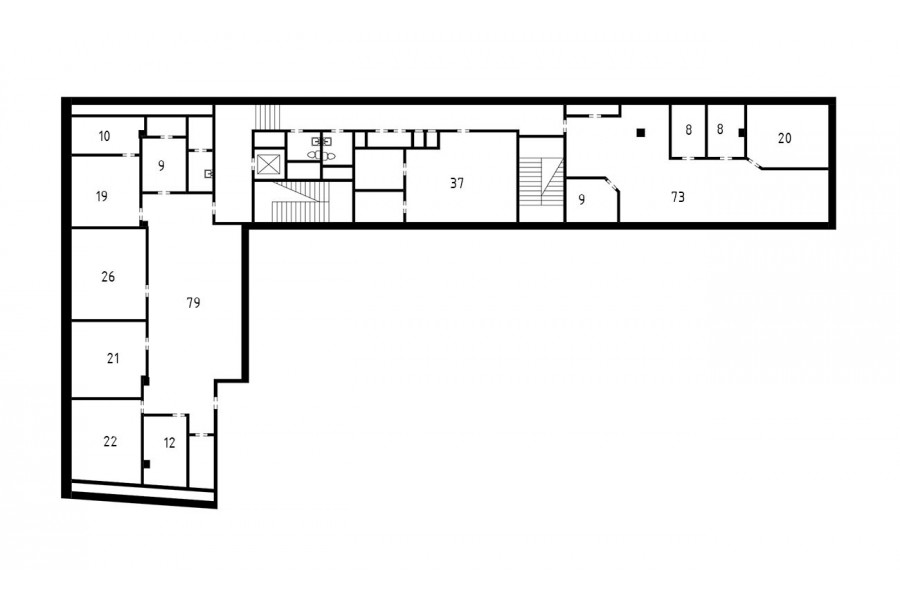
Площадь 461 м²
Состояние Готово к въезду
Планировка Смешанная
Этаж 4

Описание

Преимущества
  • Класс А
  • Пешком от метро
  • Кондиционирование и вентиляция
  • Свой паркинг
  • Развитая инфраструктура
Собственник сдает в прямую аренду офисное помещение класса А общей площадью 461 квадр. метров в бизнес-центре "Мелиора Плейс".

Москва, ЦАО, проспект Мира, 6

Удобное расположение здания для всех видов транспорта:
- Автомобиль: близость транспортных магистралей, таких как Проспект Мира, Садовое Кольцо и других.
- Возможность аренды парковочных мест.
- Ближайшее метро: буквально 1 мин пешком от метро "Сухаревская"

Офис класса А:
- Помещение с отделкой, готово к въезду
- Вентиляция: Приточно-вытяжная вентиляция
- Кондиционирование: центральное
- Развитая инфраструктура внутри здания

Возможность заключения контракта в соответствии с 44ФЗ по госзакупкам.

Что еще можно узнать о предложении:

1. Мы отправим Вам подробную презентацию с планировкой и фотографиями в течение 10 минут после звонка, чтобы Вы могли поделиться информацией с руководством или с коллегами.
2. Мы готовы ответить на любые Ваши вопросы о помещении и коммерческих условиях аренды.
3.

Звоните нам в любое время. По будням мы сможем ответить на Ваши вопросы до 19:00. В выходные или вечернее время мы передадим Ваш контакт нашему менеджеру по аренде.

Коммерческие условия

Арендная плата 1 383 000 ₽
Ставка арендной платы 39 600 ₽ м²/год
Эксплуатационные расходы Включены в ставку
Налоги С учётом НДС
Тип договора Прямая аренда
Срок договора от 11 месяцев
Размер платежей 1 месяц
Обеспечительный платеж 1 месяц
Статус Сдан

О бизнес-центре

Класс А
Этажность 4
Лифты Есть
Общая площадь 4 872 м²
Год постройки 2008
Паркинг Подземный
Вентиляция приточно-вытяжная
Кондиционирование центральное
Телекоммуникации Интернет/Телефония

Расположение

Подробная презентацию по предложению

Собираете информацию? Получите подробную презентацию в удобном формате, чтобы обсудить вариант с коллегами или переслать руководству!

Похожие предложения в других зданиях

БЕЗ КОМИССИИ ID: 1189446 Рейтинг9.1 КлассА

Москва, Малая Сухаревская площадь, 12

Сухаревская → 97 м
~ 1 мин
Арендная плата в месяц 1 639 029 ₽ 42 900 ₽/м² в год С учётом НДС
Характеристики 458 м² 5 этаж Готово к въезду
Преимущества
  • Класс А
  • Пешком от метро
  • Кондиционирование и вентиляция
  • Свой паркинг
  • Развитая инфраструктура

Собственник сдает в долгосрочную аренду офисный блок класса А общей площадью 458 квадратных метров в бизнес-центре "Садовая Галерея"... подробнее

>

Виртуальный тур

Презентация по предложению

Собираете информацию? Получите подробную презентацию в удобном формате!

БЕЗ КОМИССИИ ID: 1374817 Рейтинг8.6 КлассB+

Москва, Большая Сухаревская площадь, 9

Сухаревская → 538 м
~ 5 мин
Арендная плата в месяц 1 892 538 ₽ 45 200 ₽/м² в год Упрощённая система налогообложения
Характеристики 503 м² 4 этаж Готово к въезду
Преимущества
  • Класс B+
  • Пешком от метро
  • Кондиционирование и вентиляция
  • Свой паркинг

Сдается в прямую аренду офисный блок класса B+ общей площадью 503 кв. метров в бизнес-центре "На Спасской"... подробнее

Презентация по предложению

Собираете информацию? Получите подробную презентацию в удобном формате!

ВОЗМОЖНО ОСВОБОЖДЕНИЕ ID: 289433 Рейтинг8.6 КлассB+

Москва, Последний переулок, 24

Сухаревская → 447 м
~ 4 мин
Арендная плата в месяц 1 385 417 ₽ 35 000 ₽/м² в год С учётом НДС
Характеристики 475 м² 4 этаж Готово к въезду
Преимущества
  • Класс B+
  • Пешком от метро
  • Кондиционирование и вентиляция

Предлагается в долгосрочную прямую аренду офисный блок класса B+ общей площадью 475 кв. метров в недавно отреконструированном бизнес-центре "MODERNUM"... подробнее

Презентация по предложению

Собираете информацию? Получите подробную презентацию в удобном формате!

БЕЗ КОМИССИИ ID: 138076 Рейтинг5.7 КлассB

Москва, проспект Мира, 26с1

Проспект Мира → 208 м
~ 2 мин
Арендная плата в месяц 1 536 000 ₽ 36 000 ₽/м² в год С учётом НДС
Характеристики 512 м² 3 этаж Готово к въезду
Преимущества
  • Класс B
  • Пешком от метро
  • Кондиционирование и вентиляция
  • Развитая инфраструктура

Предлагаем в прямую аренду помещение под офис класса B площадью 512 квадр. метров в бизнес-центре "Аптекарский огород"... подробнее

Презентация по предложению

Собираете информацию? Получите подробную презентацию в удобном формате!

БЕЗ КОМИССИИ ID: 159323 Рейтинг5.7 КлассB

Москва, проспект Мира, 26с1

Проспект Мира → 208 м
~ 2 мин
Арендная плата в месяц 1 305 000 ₽ 36 000 ₽/м² в год С учётом НДС
Характеристики 435 м² 3 этаж Готово к въезду
Преимущества
  • Класс B
  • Пешком от метро
  • Кондиционирование и вентиляция
  • Развитая инфраструктура

Собственник сдает в долгосрочную аренду помещение под офис класса B общей площадью 435 квадр. метров в бизнес-центре "Аптекарский огород"... подробнее

Презентация по предложению

Собираете информацию? Получите подробную презентацию в удобном формате!

Посмотреть все похожие предложения
Отнеситесь рационально к процессу поиска нового офиса!

Просто ответьте на 3 вопроса, и наши специалисты сами предложат оптимальные варианты под ваш бюджет