8.2
Смотреть все фото
БЕЗ КОМИССИИ ID: 898209 Рейтинг9.2 КлассА

Москва, проспект Мира, 6

Сухаревская → 84 м
~ 1 мин
Арендная плата в месяц 2 114 200 ₽ 29 500 ₽/м² в год С учётом НДС

Презентация по предложению

Собираете информацию? Получите подробную презентацию в удобном формате!

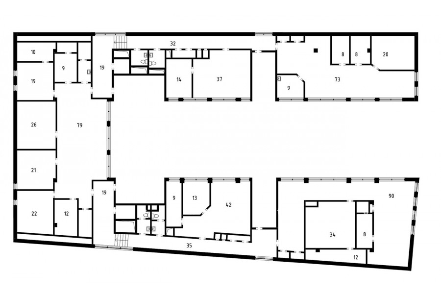
Площадь 860 м²
Состояние Готово к въезду
Планировка Смешанная
Этаж 1 - 4

Описание

Преимущества
  • Класс А
  • Пешком от метро
  • Кондиционирование и вентиляция
  • Свой паркинг
  • Развитая инфраструктура
Сдается в прямую аренду офис класса А общей площадью 860 квадратных метров в бизнес-центре "Мелиора Плейс".

Москва, ЦАО, проспект Мира, 6

Удобная локация здания:
- Автомобиль: близость транспортных магистралей, таких как Проспект Мира, Садовое Кольцо и других.
- Возможность аренды парковочных мест.
- Ближайшее метро: от метро "Проспект Мира" всего 12 мин пешком

Офис класса А:
- Помещение с отделкой, готово к въезду
- Вентиляция: Приточно-вытяжная вентиляция
- Кондиционирование: центральное
- Развитая инфраструктура внутри здания

Возможность заключения контракта в соответствии с 44ФЗ по госзакупкам.

Что еще можно узнать о предложении:

1. Мы подготовили презентацию с информацией о помещении, фотографиями и планировкой, чтобы Вы могли поделиться ей с коллегами или руководством. Попросите об этом нашего менеджера по телефону в объявлении.
2. Ответим на любые Ваши вопросы, готовы обсуждать любые предложения по коммерческим условиям аренды помещения.
3. Проводим показы ежедневно, договоримся на удобное для Вас время. Можем организовать виртуальный тур по офисному блоку.

Вы можете позвонить нам в любое время. Мы ответим на Ваши вопросы по будням до 19:00, а поздно вечером или в выходные сможем передать Ваш контакт нашему менеджеру.

Коммерческие условия

Арендная плата 2 114 170 ₽
Ставка арендной платы 29 500 ₽ м²/год
Эксплуатационные расходы Включены в ставку
Налоги С учётом НДС
Тип договора Прямая аренда
Срок договора от 11 месяцев
Размер платежей 1 месяц
Обеспечительный платеж 1 месяц
Статус Сдан

О бизнес-центре

Класс А
Этажность 4
Лифты Есть
Общая площадь 4 872 м²
Год постройки 2008
Паркинг Подземный
Вентиляция приточно-вытяжная
Кондиционирование центральное
Телекоммуникации Интернет/Телефония

Расположение

Подробная презентацию по предложению

Собираете информацию? Получите подробную презентацию в удобном формате, чтобы обсудить вариант с коллегами или переслать руководству!

Похожие предложения в других зданиях

БЕЗ КОМИССИИ ID: 1260683 Рейтинг8.5 КлассB

Москва, проспект Мира, 3 с3

Сухаревская → 92 м
~ 1 мин
Арендная плата в месяц 2 062 500 ₽ 27 500 ₽/м² в год С учётом НДС
Характеристики 900 м² 2 этаж Готово к въезду
Преимущества
  • Класс B
  • Пешком от метро
  • Кондиционирование и вентиляция
  • Свой паркинг

Предлагаем в долгосрочную аренду помещение под офис класса B общей площадью 900 кв. метров в бизнес-центре... подробнее

Презентация по предложению

Собираете информацию? Получите подробную презентацию в удобном формате!

БЕЗ КОМИССИИ ID: 1212368 Рейтинг5.4 КлассB

Москва, улица Щепкина, 6 с1

Сухаревская → 299 м
~ 3 мин
Арендная плата в месяц 2 140 800 ₽ 28 800 ₽/м² в год С учётом НДС
Характеристики 892 м² 1 - 2 этаж Готово к въезду
Преимущества
  • Класс B
  • Пешком от метро
  • Кондиционирование и вентиляция
  • Свой паркинг

Сдается в долгосрочную прямую аренду офис класса B общей площадью 880 квадр. метров в историческом бизнес-центре... подробнее

Презентация по предложению

Собираете информацию? Получите подробную презентацию в удобном формате!

БЕЗ КОМИССИИ ID: 1282696 Рейтинг7.7 КлассB+

Москва, улица Щепкина, 3

Сухаревская → 334 м
~ 3 мин
Арендная плата в месяц 2 274 067 ₽ 30 800 ₽/м² в год С учётом НДС
Характеристики 886 м² 5 - 6 этаж Готово к въезду
Преимущества
  • Класс B+
  • Пешком от метро
  • Кондиционирование и вентиляция
  • Свой паркинг

Собственник сдает в долгосрочную аренду помещение под офис класса B+ площадью 886 квадратных метров в историческом недавно отреконструированном бизнес-центре... подробнее

>

Виртуальный тур

Презентация по предложению

Собираете информацию? Получите подробную презентацию в удобном формате!

ВОЗМОЖНО ОСВОБОЖДЕНИЕ ID: 1293075 Рейтинг7.7 КлассB+

Москва, улица Щепкина, 3

Сухаревская → 334 м
~ 3 мин
Арендная плата в месяц 2 178 367 ₽ 28 600 ₽/м² в год С учётом НДС
Характеристики 914 м² 2 - 3 этаж Готово к въезду
Преимущества
  • Класс B+
  • Пешком от метро
  • Кондиционирование и вентиляция
  • Свой паркинг

Сдаем в прямую аренду помещение под офис класса B+ общей площадью 914 кв.м в историческом недавно отреконструированном бизнес-центре... подробнее

>

Виртуальный тур

Презентация по предложению

Собираете информацию? Получите подробную презентацию в удобном формате!

БЕЗ КОМИССИИ ID: 176824 Рейтинг7.0 КлассB

Москва, Большой Сухаревский переулок, 19 с2

Сухаревская → 381 м
~ 4 мин
Арендная плата в месяц 1 831 667 ₽ 28 000 ₽/м² в год С учётом НДС
Характеристики 785 м² 4 - 5 этаж Готово к въезду
Преимущества
  • Класс B
  • Пешком от метро
  • Кондиционирование и вентиляция
  • Свой паркинг

Предлагается в долгосрочную прямую аренду офисный блок класса B общей площадью 785 квадратных метров в бизнес-центре... подробнее

Презентация по предложению

Собираете информацию? Получите подробную презентацию в удобном формате!

Посмотреть все похожие предложения
Отнеситесь рационально к процессу поиска нового офиса!

Просто ответьте на 3 вопроса, и наши специалисты сами предложат оптимальные варианты под ваш бюджет

.