8.2

Виртуальный тур

Смотреть все фото
БЕЗ КОМИССИИ ID: 1328551 Рейтинг7.3 КлассB

Москва, Бережковская набережная, 28

Лужники → 1.7 км
~ 17 мин
Арендная плата в месяц 2 221 400 ₽ 23 000 ₽/м² в год С учётом НДС

Презентация по предложению

Собираете информацию? Получите подробную презентацию в удобном формате!

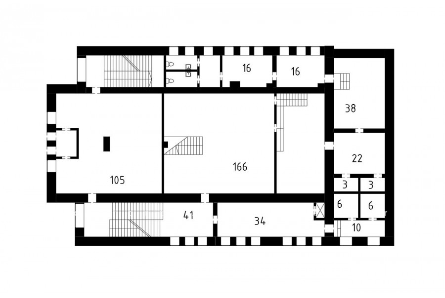
Площадь 1 157 м²
Состояние Готово к въезду
Планировка Кабинетная
Этаж 1 - 2

Описание

Преимущества
  • Класс B
  • Кондиционирование и вентиляция
  • Свой паркинг
Сдается в долгосрочную прямую аренду офис класса B площадью 1157 кв. метров в историческом недавно отреконструированном бизнес-центре "Мельников плаза".

Москва, ЗАО, Бережковская набережная, 28

Характеристики местоположения:
- Автомобиль: близость транспортных магистралей, таких как Третье Транспортное Кольцо и других.
- Возможность аренды парковочных мест.
- Ближайшее метро: от метро "Лужники" можно добраться пешком или на городском транспорте

Офис класса B:
- Офис с отделкой, полностью готов к аренде
- Вентиляция: Приточно-вытяжная вентиляция
- Кондиционирование: центральное

Возможность заключения контракта в соответствии с 44ФЗ по госзакупкам.

Если данное предложение подходит Вашему запросу:

1. Получите презентацию в течение 10 минут в Whatsapp или на почту с фотографиями и планировкой, чтобы обсудить данный вариант с коллегами или переслать руководству. Для этого позвоните по телефону, указанному в объявлении.
2. Ответим на любые Ваши вопросы, готовы обсуждать любые предложения по коммерческим условиям аренды помещения.
3.

Вы можете позвонить нам в любое время. Мы ответим на Ваши вопросы по будням до 19:00, а поздно вечером или в выходные зафиксируем Ваш контакт и перезвоним в рабочее время.

Коммерческие условия

Арендная плата 2 221 440 ₽
Ставка арендной платы 23 000 ₽ м²/год
Эксплуатационные расходы Включены в ставку
Налоги С учётом НДС
Тип договора Прямая аренда
Срок договора от 11 месяцев
Размер платежей 1 месяц
Обеспечительный платеж 1 месяц
Статус Сдан

О бизнес-центре

Класс B
Этажность 3
Лифты Есть
Общая площадь 3 047 м²
Год постройки 1920
Паркинг Наземный
Вентиляция приточно-вытяжная
Кондиционирование центральное
Телекоммуникации Интернет/Телефония

Расположение

Подробная презентацию по предложению

Собираете информацию? Получите подробную презентацию в удобном формате, чтобы обсудить вариант с коллегами или переслать руководству!

Похожие предложения в других зданиях

БЕЗ КОМИССИИ ID: 302632 Рейтинг6.6 КлассB

Москва, Воробьевское шоссе, 6

Киевская → 3.74 км
~ 13 мин
Арендная плата в месяц 2 673 000 ₽ 26 400 ₽/м² в год С учётом НДС
Характеристики 1 215 м² 1 - 2 этаж Готово к въезду
Преимущества
  • Класс B
  • Кондиционирование и вентиляция
  • Свой паркинг

Предлагаем в долгосрочную прямую аренду помещение под офис класса B общей площадью 1215 квадр. метров в историческом бизнес-центре... подробнее

Презентация по предложению

Собираете информацию? Получите подробную презентацию в удобном формате!

БЕЗ КОМИССИИ ID: 302631 Рейтинг6.6 КлассB

Москва, Воробьевское шоссе, 6

Киевская → 3.74 км
~ 13 мин
Арендная плата в месяц 2 200 000 ₽ 26 400 ₽/м² в год С учётом НДС
Характеристики 1 000 м² 1 - 2 этаж Готово к въезду
Преимущества
  • Класс B
  • Кондиционирование и вентиляция
  • Свой паркинг

Сдаем в прямую аренду офисный блок класса B площадью 1000 кв. метров в историческом бизнес-центре... подробнее

Презентация по предложению

Собираете информацию? Получите подробную презентацию в удобном формате!

БЕЗ КОМИССИИ ID: 253727 Рейтинг6.6 КлассB

Москва, Малая Пироговская улица, 18 с1

Спортивная → 671 м
~ 7 мин
Арендная плата в месяц 1 932 000 ₽ 22 400 ₽/м² в год С учётом НДС
Характеристики 1 035 м² 4 - 5 этаж Готово к въезду
Преимущества
  • Класс B
  • Пешком от метро
  • Кондиционирование и вентиляция
  • Свой паркинг
  • Несколько провайдеров связи
  • Развитая инфраструктура

Сдаем в долгосрочную аренду офисный блок класса B общей площадью 1035 квадр. метров в историческом недавно отреконструированном бизнес-центре... подробнее

Презентация по предложению

Собираете информацию? Получите подробную презентацию в удобном формате!

ВОЗМОЖНО ОСВОБОЖДЕНИЕ ID: 291941 Рейтинг8.2 КлассB

Москва, Усачёва улица, 35 с1

Спортивная → 267 м
~ 3 мин
Арендная плата в месяц 2 112 000 ₽ 24 000 ₽/м² в год С учётом НДС
Характеристики 1 056 м² 4 - 5 этаж Готово к въезду
Преимущества
  • Класс B
  • Пешком от метро
  • Кондиционирование и вентиляция
  • Свой паркинг
  • Несколько провайдеров связи

Предлагаем в долгосрочную аренду помещение под офис класса B площадью 1056 кв.м в бизнес-центре... подробнее

Презентация по предложению

Собираете информацию? Получите подробную презентацию в удобном формате!

БЕЗ КОМИССИИ ID: 73389 Рейтинг6.1 КлассB

Москва, Малая Пироговская улица, 13 с1

Спортивная → 884 м
~ 9 мин
Арендная плата в месяц 1 888 333 ₽ 22 000 ₽/м² в год С учётом НДС
Характеристики 1 030 м² 4 этаж Готово к въезду
Преимущества
  • Класс B
  • Пешком от метро
  • Кондиционирование и вентиляция
  • Свой паркинг
  • Развитая инфраструктура

Предлагается в прямую аренду офисное помещение класса B площадью 1030 квадр. метров в историческом бизнес-центре "П13"... подробнее

Презентация по предложению

Собираете информацию? Получите подробную презентацию в удобном формате!

Посмотреть все похожие предложения
Отнеситесь рационально к процессу поиска нового офиса!

Просто ответьте на 3 вопроса, и наши специалисты сами предложат оптимальные варианты под ваш бюджет