8.2
Смотреть все фото
БЕЗ КОМИССИИ ID: 1298157 Рейтинг4.8 КлассB
Бизнес-центр «Мельникова 7 с1»

Аренда офиса 1415 м²

Москва, улица Мельникова, 7 с1

Волгоградский проспект → 1.02 км
~ 10 мин
Арендная плата в месяц 1 159 800 ₽ 9 800 ₽/м² в год С учётом НДС

Презентация по предложению

Собираете информацию? Получите подробную презентацию в удобном формате!

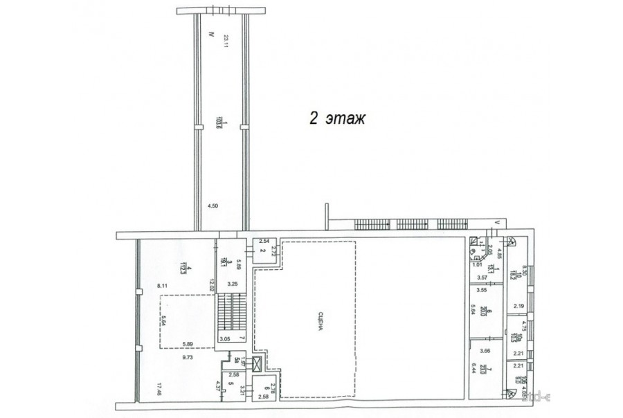
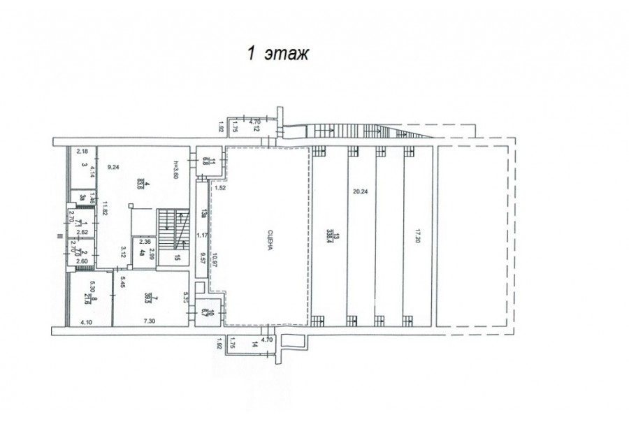
Площадь 1 415 м²
Состояние Готово к въезду
Планировка Смешанная
Этаж -1 - 2

Описание

Преимущества
  • Класс B
  • Пешком от метро
  • Кондиционирование и вентиляция
  • Свой паркинг
  • Несколько провайдеров связи
Предлагаем в аренду офисное здание класса B общей площадью 1415 кв. метров.

Москва, ЮВАО, улица Мельникова, 7 с1

Удобная локация здания:
- Автомобиль: близость транспортных магистралей, таких как Волгоградский проспект и других.
- Возможность аренды парковочных мест.
- Ближайшее метро: от метро "Волгоградский проспект" всего 11 мин пешком

Офис класса B:
- Помещение готово к въезду
- Кондиционирование: сплит-системы


Что еще можно узнать о предложении:

1. Мы отправим Вам подробную презентацию с планировкой и фотографиями в течение 10 минут после звонка, чтобы Вы могли поделиться информацией с руководством или с коллегами.
2. Задайте любые вопросы менеджеру по телефону, готовы обсуждать любые предложения по финансовым условиям договора аренды.
3. Оперативно организуем просмотр помещения с менеджерами на объекте или подготовим виртуальный тур.

Звоните нам в любое время. По будням мы сможем ответить на Ваши вопросы до 19:00. В выходные или вечернее время мы передадим Ваш контакт нашему менеджеру по аренде.

Коммерческие условия

Арендная плата 1 104 640 ₽
Ставка арендной платы 9 800 ₽ м²/год
Эксплуатационные расходы Включены в ставку
Налоги С учётом НДС
Тип договора Субаренда
Срок договора от 11 месяцев
Размер платежей 1 месяц
Обеспечительный платеж 2 месяц
Статус Сдан

О бизнес-центре

Класс B
Этажность 5
Лифты Нет
Общая площадь 1 452 м²
Паркинг Наземный
Вентиляция естественная
Кондиционирование сплит-системы
Телекоммуникации Интернет/Телефония

Расположение

Подробная презентацию по предложению

Собираете информацию? Получите подробную презентацию в удобном формате, чтобы обсудить вариант с коллегами или переслать руководству!

Похожие предложения в других зданиях

БЕЗ КОМИССИИ ID: 135989 Рейтинг4.6 КлассB

Москва, улица Мельникова, 5

Волгоградский проспект → 995 м
~ 10 мин
Арендная плата в месяц 1 000 000 ₽ 10 000 ₽/м² в год С учётом НДС
Характеристики 1 200 м² 3 этаж Готово к въезду
Преимущества
  • Класс B
  • Пешком от метро

Сдается в прямую аренду офисный блок класса B площадью 1200 кв.м в бизнес-центре... подробнее

Презентация по предложению

Собираете информацию? Получите подробную презентацию в удобном формате!

БЕЗ КОМИССИИ ID: 302271 Рейтинг4.0 КлассB

Москва, Михайловский проезд, 5

Волгоградский проспект → 1.06 км
~ 11 мин
Арендная плата в месяц 1 200 000 ₽ 9 600 ₽/м² в год С учётом НДС
Характеристики 1 500 м² 3 этаж Готово к въезду
Преимущества
  • Класс B
  • Пешком от метро

Предлагаем в долгосрочную аренду офис класса B общей площадью 1500 кв. метров в бизнес-центре... подробнее

Презентация по предложению

Собираете информацию? Получите подробную презентацию в удобном формате!

БЕЗ КОМИССИИ ID: 1150582 Рейтинг4.5 КлассB

Москва, 2-я улица Машиностроения, 21

Дубровка → 834 м
~ 8 мин
Арендная плата в месяц 985 500 ₽ 9 000 ₽/м² в год С учётом НДС
Характеристики 1 314 м² 1 этаж Готово к въезду
Преимущества
  • Класс B
  • Пешком от метро
  • Кондиционирование и вентиляция

Сдается в долгосрочную аренду офисное помещение класса B площадью 1314 кв.м в бизнес-центре... подробнее

Презентация по предложению

Собираете информацию? Получите подробную презентацию в удобном формате!

БЕЗ КОМИССИИ ID: 111137 Рейтинг7.1 КлассB

Москва, Дербеневская набережная, 7 с23

Павелецкая → 1.64 км
~ 16 мин
Арендная плата в месяц 1 200 000 ₽ 9 000 ₽/м² в год С учётом НДС
Характеристики 1 600 м² 2 этаж Готово к въезду
Преимущества
  • Класс B
  • Пешком от метро
  • Кондиционирование и вентиляция
  • Свой паркинг

Предлагается в долгосрочную прямую аренду офисное помещение класса B площадью 1600 кв.м в бизнес-центре... подробнее

Презентация по предложению

Собираете информацию? Получите подробную презентацию в удобном формате!

БЕЗ КОМИССИИ ID: 115443 Рейтинг7.1 КлассB

Москва, Дербеневская набережная, 7 с23

Павелецкая → 1.64 км
~ 16 мин
Арендная плата в месяц 975 000 ₽ 9 000 ₽/м² в год С учётом НДС
Характеристики 1 300 м² 2 этаж Готово к въезду
Преимущества
  • Класс B
  • Пешком от метро
  • Кондиционирование и вентиляция
  • Свой паркинг

Сдаем в долгосрочную прямую аренду офисное помещение класса B площадью 1300 кв.м в бизнес-центре... подробнее

Презентация по предложению

Собираете информацию? Получите подробную презентацию в удобном формате!

Посмотреть все похожие предложения
Отнеситесь рационально к процессу поиска нового офиса!

Просто ответьте на 3 вопроса, и наши специалисты сами предложат оптимальные варианты под ваш бюджет

.