8.2

Виртуальный тур

Смотреть все фото
БЕЗ КОМИССИИ ID: 1184031 Рейтинг7.6 КлассB+
Бизнес-центр «Меридиан»

Аренда офиса 1100 м²

Москва, Смольная улица, 24Д

Речной вокзал → 1.31 км
~ 13 мин
Арендная плата в месяц 2 319 200 ₽ 25 300 ₽/м² в год С учётом НДС

Презентация по предложению

Собираете информацию? Получите подробную презентацию в удобном формате!

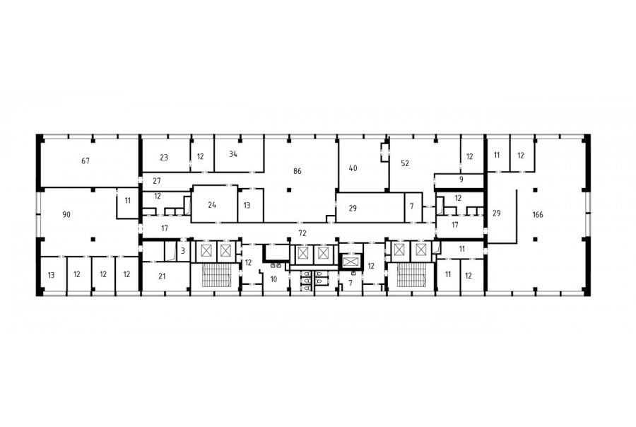
Площадь 1 100 м²
Состояние Готово к въезду
Планировка Смешанная
Этаж 15

Описание

Преимущества
  • Класс B+
  • Пешком от метро
  • Кондиционирование и вентиляция
  • Свой паркинг
Предлагаем в прямую аренду офис класса B+ площадью 1100 кв.м в бизнес-центре "Меридиан".

Москва, САО, Смольная улица, 24Д

Удобная локация здания:
- Автомобиль: близость транспортных магистралей, таких как Ленинградское шоссе и других.
- Возможность аренды парковочных мест.
- Ближайшее метро: от метро "Речной вокзал" всего 11 мин пешком

Офис класса B+:
- Помещение готово к въезду
- Вентиляция: Приточно-вытяжная вентиляция
- Кондиционирование: сплит-системы
- Презентабельный центральный рецепшн
- Круглосуточная охрана и видеонаблюдение

Возможность заключения контракта в соответствии с 44ФЗ по госзакупкам.

Если данное предложение подходит Вашему запросу:

1. Получите презентацию в течение 10 минут в Whatsapp или на почту с фотографиями и планировкой, чтобы обсудить данный вариант с коллегами или переслать руководству. Для этого позвоните по телефону, указанному в объявлении.
2. Ответим на любые Ваши вопросы, готовы обсуждать любые предложения по коммерческим условиям аренды помещения.
3.

Вы можете позвонить нам в любое время. Мы ответим на Ваши вопросы по будням до 19:00, а поздно вечером или в выходные сможем передать Ваш контакт нашему менеджеру.

Коммерческие условия

Арендная плата 2 108 330 ₽
Ставка арендной платы 25 300 ₽ м²/год
Эксплуатационные расходы Включены в ставку
Налоги С учётом НДС
Тип договора Прямая аренда
Срок договора Долгосрочный
Размер платежей 1 месяц
Обеспечительный платеж 2 месяц
Статус Сдан

О бизнес-центре

Класс B+
Этажность 20
Лифты Есть
Общая площадь 22 000 м²
Год постройки 1991
Паркинг Наземный
Вентиляция приточно-вытяжная
Кондиционирование сплит-системы
Телекоммуникации Интернет/Телефония

Расположение

Подробная презентацию по предложению

Собираете информацию? Получите подробную презентацию в удобном формате, чтобы обсудить вариант с коллегами или переслать руководству!

Похожие предложения в других зданиях

БЕЗ КОМИССИИ ID: 1374732 Рейтинг7.8 КлассB+

Москва, Смольная улица, 14

Речной вокзал → 1.5 км
~ 15 мин
Арендная плата в месяц 2 129 167 ₽ 25 000 ₽/м² в год С учётом НДС
Характеристики 1 022 м² 9 - 13 этаж Готово к въезду
Преимущества
  • Класс B+
  • Пешком от метро
  • Кондиционирование и вентиляция
  • Свой паркинг
  • Развитая инфраструктура

Сдается в прямую аренду офисный блок класса B+ общей площадью 1022 квадр. метров в недавно отреконструированном бизнес-центре "Смольный"... подробнее

Презентация по предложению

Собираете информацию? Получите подробную презентацию в удобном формате!

БЕЗ КОМИССИИ ID: 78068 Рейтинг8.7 КлассB+

Москва, Ленинградское шоссе, 69 к1

Ховрино → 2.32 км
~ 14 мин
Арендная плата в месяц 2 306 250 ₽ 25 000 ₽/м² в год С учётом НДС
Характеристики 1 107 м² 3 - 6 этаж Готово к въезду
Преимущества
  • Класс B+
  • Кондиционирование и вентиляция
  • Свой паркинг
  • Несколько провайдеров связи
  • Развитая инфраструктура

Сдаем в прямую аренду офис класса B+ площадью 1107 квадратных метров в недавно отреконструированном бизнес-центре "River City"... подробнее

Презентация по предложению

Собираете информацию? Получите подробную презентацию в удобном формате!

БЕЗ КОМИССИИ ID: 5278 Рейтинг9.0 КлассА

Москва, Ленинградское шоссе, 39

Водный стадион → 689 м
~ 7 мин
Арендная плата в месяц 1 924 700 ₽ 22 800 ₽/м² в год С учётом НДС
Характеристики 1 013 м² 4 этаж Под отделку
Преимущества
  • Класс А
  • Пешком от метро
  • Кондиционирование и вентиляция
  • Свой паркинг
  • Несколько провайдеров связи

Собственник сдает в долгосрочную прямую аренду офисное помещение класса А площадью 1013 кв.м в бизнес-центре "Олимпия парк"... подробнее

Презентация по предложению

Собираете информацию? Получите подробную презентацию в удобном формате!

БЕЗ КОМИССИИ ID: 1380192 Рейтинг9.0 КлассА

Москва, Сходненская улица, 56

Сходненская → 204 м
~ 3 мин
Арендная плата в месяц 3 262 107 ₽ 32 800 ₽/м² в год С учётом НДС
Характеристики 1 192 м² 5 - 8 этаж Готово к въезду
Преимущества
  • Класс А
  • Пешком от метро
  • Кондиционирование и вентиляция
  • Свой паркинг

Предлагается в прямую аренду офис класса А общей площадью 1192 квадратных метров в бизнес-центре "Калейдоскоп"... подробнее

Презентация по предложению

Собираете информацию? Получите подробную презентацию в удобном формате!

БЕЗ КОМИССИИ ID: 1374855 Рейтинг9.0 КлассА

Москва, Сходненская улица, 56

Сходненская → 204 м
~ 3 мин
Арендная плата в месяц 2 781 193 ₽ 34 200 ₽/м² в год С учётом НДС
Характеристики 977 м² 8 этаж Готово к въезду
Преимущества
  • Класс А
  • Пешком от метро
  • Кондиционирование и вентиляция
  • Свой паркинг

Предлагаем в прямую аренду офис класса А общей площадью 977 кв. метров в бизнес-центре "Калейдоскоп"... подробнее

Презентация по предложению

Собираете информацию? Получите подробную презентацию в удобном формате!

Посмотреть все похожие предложения
Отнеситесь рационально к процессу поиска нового офиса!

Просто ответьте на 3 вопроса, и наши специалисты сами предложат оптимальные варианты под ваш бюджет

.