8.2
Смотреть все фото
БЕЗ КОМИССИИ ID: 1324671 Рейтинг7.6 КлассB+
Бизнес-центр «Меридиан»

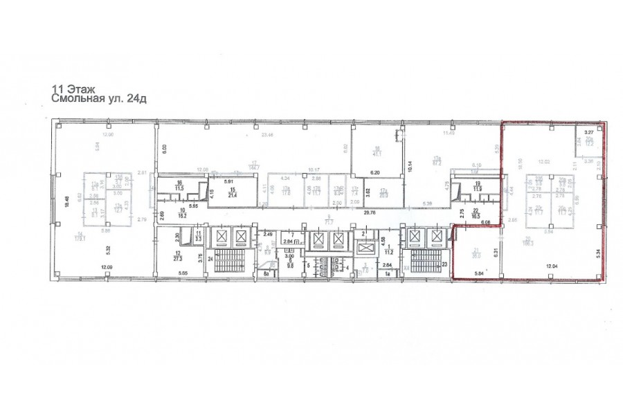
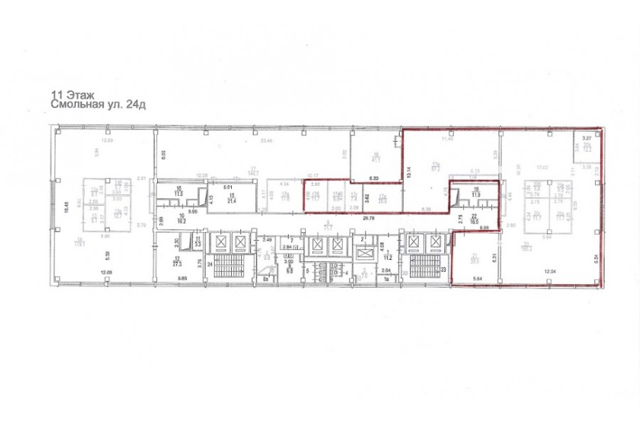
Аренда офиса 1450 м²

Москва, Смольная улица, 24Д

Речной вокзал → 1.31 км
~ 13 мин
Арендная плата в месяц 3 533 300 ₽ 29 200 ₽/м² в год С учётом НДС

Презентация по предложению

Собираете информацию? Получите подробную презентацию в удобном формате!

Площадь 1 450 м²
Состояние Готово к въезду
Планировка Смешанная
Этаж 11

Описание

Преимущества
  • Класс B+
  • Пешком от метро
  • Кондиционирование и вентиляция
  • Свой паркинг
Предлагаем в долгосрочную прямую аренду офисное помещение класса B+ площадью 1961 квадратных метров в бизнес-центре "Меридиан".

Москва, САО, Смольная улица, 24Д

Удобная локация здания:
- Автомобиль: близость транспортных магистралей, таких как Ленинградское шоссе и других.
- Возможность аренды парковочных мест.
- Ближайшее метро: от метро "Речной вокзал" всего 11 мин пешком

Офис класса B+:
- Офис с отделкой, полностью готов к аренде
- Вентиляция: Приточно-вытяжная вентиляция
- Кондиционирование: сплит-системы
- Презентабельный центральный ресепшн
- Круглосуточная охрана и видеонаблюдение

Возможность заключения контракта в соответствии с 44ФЗ по госзакупкам.

Если предложение предварительно Вам подходит:

1. Мы отправим Вам подробную презентацию с планировкой и фотографиями в течение 10 минут после звонка, чтобы Вы могли поделиться информацией с руководством или с коллегами.
2. Мы готовы ответить на любые Ваши вопросы о помещении и коммерческих условиях аренды.
3. Проводим показы ежедневно, договоримся на удобное для Вас время. Можем организовать виртуальный тур по офисному блоку.

Вы можете позвонить нам в любое время. Мы ответим на Ваши вопросы по будням до 19:00, а поздно вечером или в выходные зафиксируем Ваш контакт и перезвоним в рабочее время.

Коммерческие условия

Арендная плата 3 533 290 ₽
Ставка арендной платы 29 200 ₽ м²/год
Эксплуатационные расходы Включены в ставку
Налоги С учётом НДС
Тип договора Прямая аренда
Срок договора от 11 месяцев
Размер платежей 2 месяц
Обеспечительный платеж 1 месяц
Статус Сдан

О бизнес-центре

Класс B+
Этажность 20
Лифты Есть
Общая площадь 22 000 м²
Год постройки 1991
Паркинг Наземный
Вентиляция приточно-вытяжная
Кондиционирование сплит-системы
Телекоммуникации Интернет/Телефония

Расположение

Подробная презентацию по предложению

Собираете информацию? Получите подробную презентацию в удобном формате, чтобы обсудить вариант с коллегами или переслать руководству!

Похожие предложения в других зданиях

БЕЗ КОМИССИИ ID: 1313313 Рейтинг7.9 КлассB

Москва, Выборгская улица, 16 с4

Водный стадион → 1.09 км
~ 11 мин
Арендная плата в месяц 3 213 000 ₽ 28 400 ₽/м² в год С учётом НДС
Характеристики 1 360 м² 1 - 2 этаж Готово к въезду
Преимущества
  • Класс B
  • Пешком от метро
  • Кондиционирование и вентиляция
  • Свой паркинг
  • Несколько провайдеров связи

Предлагается в долгосрочную аренду офис класса B общей площадью 1360 квадратных метров в бизнес-центре... подробнее

Презентация по предложению

Собираете информацию? Получите подробную презентацию в удобном формате!

БЕЗ КОМИССИИ ID: 20055 Рейтинг7.6 КлассB+

Москва, Михалковская улица, 63Б с1

Коптево → 1.27 км
~ 13 мин
Арендная плата в месяц 3 454 500 ₽ 25 200 ₽/м² в год С учётом НДС
Характеристики 1 645 м² 10 этаж Готово к въезду
Преимущества
  • Класс B+
  • Пешком от метро
  • Кондиционирование и вентиляция
  • Свой паркинг

Сдаем в прямую аренду офис класса B+ площадью 1645 кв. метров в бизнес-центре "Головинские пруды"... подробнее

Презентация по предложению

Собираете информацию? Получите подробную презентацию в удобном формате!

БЕЗ КОМИССИИ ID: 210354 Рейтинг7.3 КлассB

Москва, Волоколамское шоссе, 73

Тушинская → 653 м
~ 7 мин
Арендная плата в месяц 3 944 417 ₽ 33 100 ₽/м² в год С учётом НДС
Характеристики 1 430 м² 0 - 8 этаж Готово к въезду
Преимущества
  • Класс B
  • Пешком от метро
  • Кондиционирование и вентиляция
  • Свой паркинг
  • Развитая инфраструктура

Предлагается в долгосрочную прямую аренду офисный блок класса B площадью 1430 кв. метров в бизнес-центре "СДМ"... подробнее

Презентация по предложению

Собираете информацию? Получите подробную презентацию в удобном формате!

БЕЗ КОМИССИИ ID: 1316083 Рейтинг8.0 КлассB

Москва, улица Василия Петушкова, 27

Волоколамская → 2.57 км
~ 13 мин
Арендная плата в месяц 3 500 003 ₽ 27 900 ₽/м² в год С учётом НДС
Характеристики 1 505 м² -1 - 4 этаж Готово к въезду
Преимущества
  • Класс B
  • Кондиционирование и вентиляция
  • Свой паркинг

Сдается в прямую аренду помещение под офис класса B общей площадью 1505 квадратных метров в бизнес-центре... подробнее

Презентация по предложению

Собираете информацию? Получите подробную презентацию в удобном формате!

БЕЗ КОМИССИИ ID: 1326732 Рейтинг7.9 КлассB+

Москва, Волоколамское шоссе, 116 с4

Тушинская → 1.69 км
~ 17 мин
Арендная плата в месяц 3 591 167 ₽ 29 000 ₽/м² в год С учётом НДС
Характеристики 1 486 м² 1 - 2 этаж Готово к въезду
Преимущества
  • Класс B+
  • Пешком от метро
  • Свежая реконструкция
  • Кондиционирование и вентиляция
  • Свой паркинг

Предлагается в долгосрочную прямую аренду офисный блок класса B+ площадью 1486 кв. метров в недавно отреконструированном бизнес-центре "Академия Лофт"... подробнее

Презентация по предложению

Собираете информацию? Получите подробную презентацию в удобном формате!

Посмотреть все похожие предложения
Отнеситесь рационально к процессу поиска нового офиса!

Просто ответьте на 3 вопроса, и наши специалисты сами предложат оптимальные варианты под ваш бюджет

.