8.2
Смотреть все фото
ВОЗМОЖНО ОСВОБОЖДЕНИЕ ID: 287358 Рейтинг7.6 КлассB+
Бизнес-центр «Меридиан»

Аренда офиса 4400 м²

Москва, Смольная улица, 24Д

Речной вокзал → 1.31 км
~ 13 мин
Арендная плата в месяц по запросу потенциального арендатора Срок освобождение в течение 3 месяцев

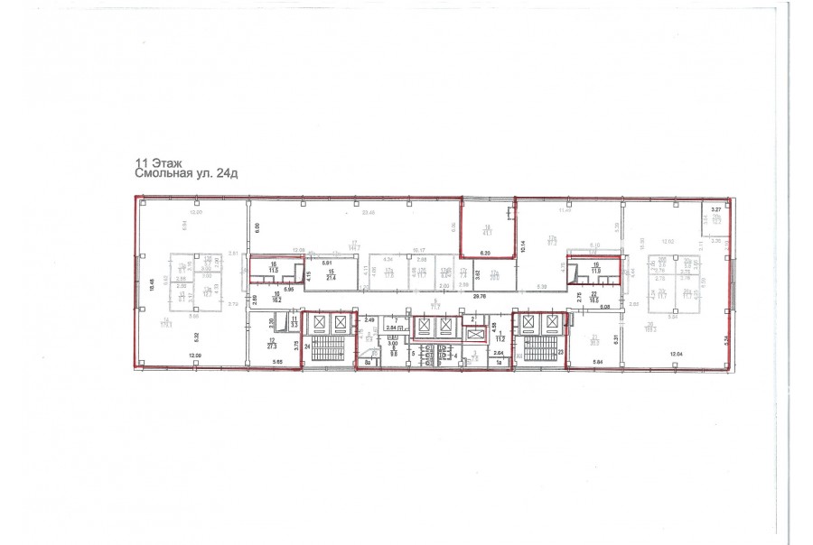
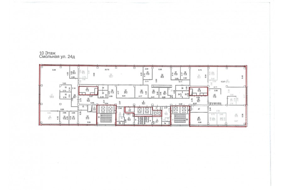
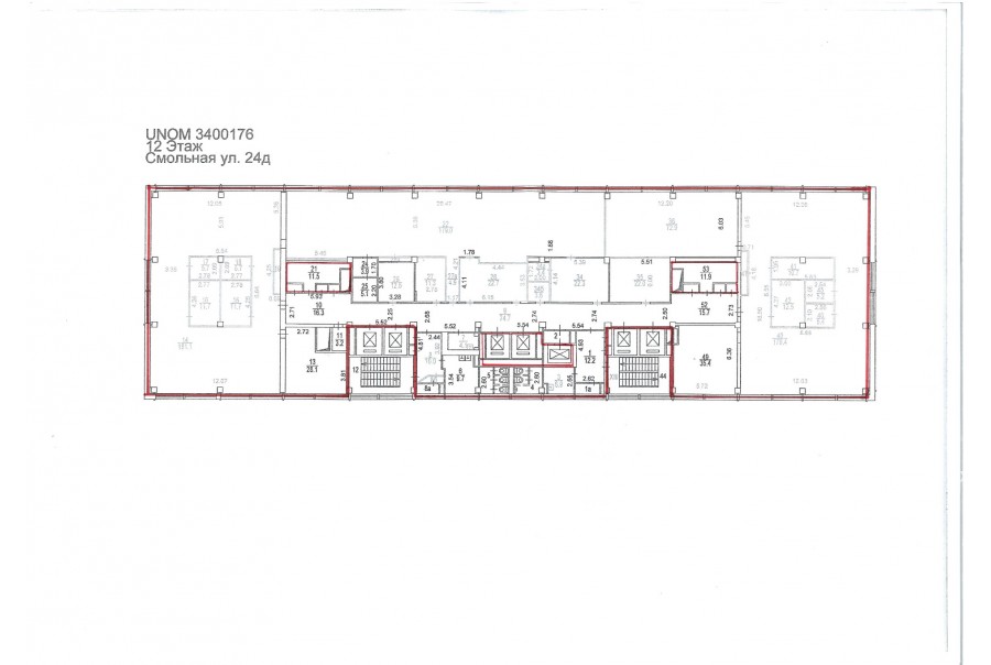
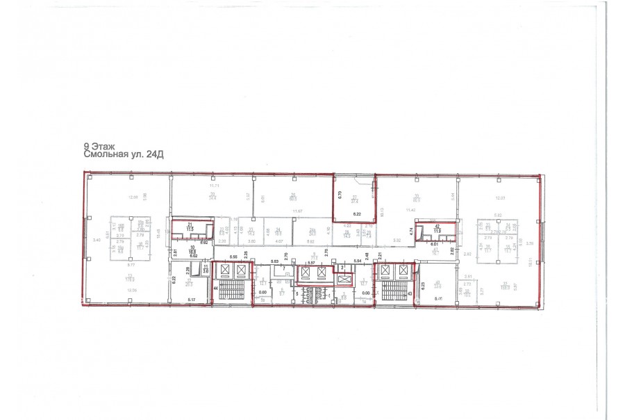
Информация по помещению

Ознакомьтесь с дополнительной информацией по помещению и коммерческим условиям!

Площадь 4 400 м²
Планировка Кабинетная
Этаж 9 - 12

Описание

Преимущества
  • Класс B+
  • Пешком от метро
  • Кондиционирование и вентиляция
  • Свой паркинг

Коммерческие условия

Арендная плата по запросу
Ставка арендной платы по запросу
Эксплуатационные расходы Включены в ставку
Налоги С учётом НДС
Тип договора Прямая аренда
Срок договора Долгосрочный
Размер платежей 3 месяц
Обеспечительный платеж 1 месяц
Статус Сдан

О бизнес-центре

Класс B+
Этажность 20
Лифты Есть
Общая площадь 22 000 м²
Год постройки 1991
Паркинг Наземный
Вентиляция приточно-вытяжная
Кондиционирование сплит-системы
Телекоммуникации Интернет/Телефония

Расположение

Информация по помещению

Получите дополнительную информацию по помещению и коммерческом условиям!

Похожие предложения в других зданиях

БЕЗ КОМИССИИ ID: 58923 Рейтинг8.9 КлассА

Москва, Головинское шоссе, 5 к1

Водный стадион → 540 м
~ 5 мин
Арендная плата в месяц 14 950 000 ₽ 39 000 ₽/м² в год С учётом НДС
Характеристики 4 600 м² 24 - 25 этаж Под отделку
Преимущества
  • Класс А
  • Пешком от метро
  • Кондиционирование и вентиляция
  • Несколько провайдеров связи

Сдаем в прямую аренду офис класса А общей площадью 4600 кв. метров в бизнес-центре "Водный"... подробнее

Презентация по предложению

Собираете информацию? Получите подробную презентацию в удобном формате!

БЕЗ КОМИССИИ ID: 5721 Рейтинг7.8 КлассB+

Москва, Старопетровский проезд, 11 к1

Войковская → 977 м
~ 10 мин
Арендная плата в месяц 11 533 333 ₽ 34 600 ₽/м² в год С учётом НДС
Характеристики 4 000 м² 1 этаж Готово к въезду
Преимущества
  • Класс B+
  • Пешком от метро
  • Кондиционирование и вентиляция
  • Свой паркинг
  • Несколько провайдеров связи

Сдаем в прямую аренду офис класса B+ общей площадью 4000 кв. метров в бизнес-центре "Старопетровский Атриум"... подробнее

Презентация по предложению

Собираете информацию? Получите подробную презентацию в удобном формате!

БЕЗ КОМИССИИ ID: 1325489 Рейтинг7.9 КлассB+

Москва, Волоколамское шоссе, 116 с4

Тушинская → 1.69 км
~ 17 мин
Арендная плата в месяц 11 255 417 ₽ 35 000 ₽/м² в год С учётом НДС
Характеристики 3 859 м² 1 - 2 этаж Готово к въезду
Преимущества
  • Класс B+
  • Пешком от метро
  • Свежая реконструкция
  • Кондиционирование и вентиляция
  • Свой паркинг

Предлагается в долгосрочную прямую аренду офис класса B+ площадью 4097 квадратных метров в недавно отреконструированном бизнес-центре "Академия Лофт"... подробнее

Презентация по предложению

Собираете информацию? Получите подробную презентацию в удобном формате!

БЕЗ КОМИССИИ ID: 300343 Рейтинг7.6 КлассB+

Москва, Смольная улица, 24Д

Речной вокзал → 1.31 км
~ 13 мин
Арендная плата в месяц 11 687 500 ₽ 34 000 ₽/м² в год С учётом НДС
Характеристики 4 125 м² 9 - 12 этаж Готово к въезду
Преимущества
  • Класс B+
  • Пешком от метро
  • Кондиционирование и вентиляция
  • Свой паркинг

Предлагаем в долгосрочную прямую аренду офисное помещение класса B+ общей площадью 4125 кв.м в бизнес-центре "Меридиан"... подробнее

Презентация по предложению

Собираете информацию? Получите подробную презентацию в удобном формате!

Посмотреть все похожие предложения
Отнеситесь рационально к процессу поиска нового офиса!

Просто ответьте на 3 вопроса, и наши специалисты сами предложат оптимальные варианты под ваш бюджет

.