8.2

Виртуальный тур

Смотреть все фото
БЕЗ КОМИССИИ ID: 1041885 Рейтинг7.6 КлассB+
Бизнес-центр «Меридиан»

Аренда офиса 490 м²

Москва, Смольная улица, 24Д

Речной вокзал → 1.31 км
~ 13 мин
Арендная плата в месяц 1 388 300 ₽ 34 000 ₽/м² в год С учётом НДС

Презентация по предложению

Собираете информацию? Получите подробную презентацию в удобном формате!

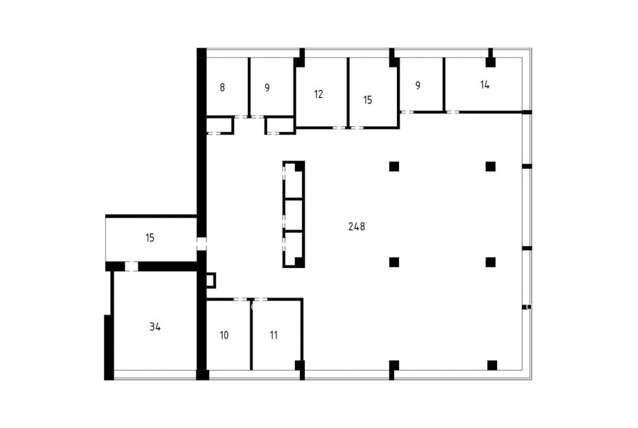
Площадь 490 м²
Состояние Готово к въезду
Планировка Смешанная
Этаж 2

Описание

Преимущества
  • Класс B+
  • Пешком от метро
  • Кондиционирование и вентиляция
  • Свой паркинг
Сдается в долгосрочную прямую аренду офисное помещение класса B+ площадью 490 квадратных метров в бизнес-центре "Меридиан".

Москва, САО, Смольная улица, 24Д

Удобная локация здания:
- Автомобиль: близость транспортных магистралей, таких как Ленинградское шоссе и других.
- Возможность аренды парковочных мест.
- Ближайшее метро: от метро "Речной вокзал" всего 11 мин пешком

Офис класса B+:
- Офис с отделкой, полностью готов к аренде
- Вентиляция: Приточно-вытяжная вентиляция
- Кондиционирование: сплит-системы
- Презентабельный центральный рецепшн
- Круглосуточная охрана и видеонаблюдение


Что еще можно узнать о предложении:

1. Мы отправим Вам подробную презентацию с планировкой и фотографиями в течение 10 минут после звонка, чтобы Вы могли поделиться информацией с руководством или с коллегами.
2. Мы готовы ответить на любые Ваши вопросы о помещении и коммерческих условиях аренды.
3.

Вы можете позвонить нам в любое время. Мы ответим на Ваши вопросы по будням до 19:00, а поздно вечером или в выходные сможем передать Ваш контакт нашему менеджеру.

Коммерческие условия

Арендная плата 816 670 ₽
Ставка арендной платы 34 000 ₽ м²/год
Эксплуатационные расходы Включены в ставку
Налоги С учётом НДС
Тип договора Прямая аренда
Срок договора Долгосрочный
Размер платежей 1 месяц
Обеспечительный платеж 2 месяц
Статус Сдан

О бизнес-центре

Класс B+
Этажность 20
Лифты Есть
Общая площадь 22 000 м²
Год постройки 1991
Паркинг Наземный
Вентиляция приточно-вытяжная
Кондиционирование сплит-системы
Телекоммуникации Интернет/Телефония

Расположение

Подробная презентацию по предложению

Собираете информацию? Получите подробную презентацию в удобном формате, чтобы обсудить вариант с коллегами или переслать руководству!

Похожие предложения в других зданиях

БЕЗ КОМИССИИ ID: 270133 Рейтинг8.9 КлассА

Москва, Головинское шоссе, 5 к1

Водный стадион → 540 м
~ 5 мин
Арендная плата в месяц 1 761 500 ₽ 39 000 ₽/м² в год С учётом НДС
Характеристики 542 м² 14 этаж Готово к въезду
Преимущества
  • Класс А
  • Пешком от метро
  • Кондиционирование и вентиляция
  • Несколько провайдеров связи

Предлагается в долгосрочную прямую аренду офис класса А площадью 542 квадр. метров в новом бизнес-центре "Водный"... подробнее

Презентация по предложению

Собираете информацию? Получите подробную презентацию в удобном формате!

БЕЗ КОМИССИИ ID: 149188 Рейтинг8.0 КлассB+

Москва, Вишнёвая улица, 9 к1

Тушинская → 1.01 км
~ 10 мин
Арендная плата в месяц 1 230 658 ₽ 28 900 ₽/м² в год С учётом НДС
Характеристики 511 м² 1 этаж Готово к въезду
Преимущества
  • Класс B+
  • Пешком от метро
  • Кондиционирование и вентиляция
  • Свой паркинг
  • Несколько провайдеров связи

Сдается в долгосрочную прямую аренду офис класса B+ площадью 511 квадр. метров в новом бизнес-центре "Империал Парк"... подробнее

Презентация по предложению

Собираете информацию? Получите подробную презентацию в удобном формате!

Посмотреть все похожие предложения
Отнеситесь рационально к процессу поиска нового офиса!

Просто ответьте на 3 вопроса, и наши специалисты сами предложат оптимальные варианты под ваш бюджет

.