8.2
Смотреть все фото
БЕЗ КОМИССИИ ID: 1329012 Рейтинг9.5 КлассА
Бизнес-центр «Метрополис»

Аренда офиса 2105 м²

Москва, Ленинградское шоссе, 16а с1

Войковская → 221 м
~ 2 мин
Арендная плата в месяц 11 619 600 ₽ 66 200 ₽/м² в год С учётом НДС

Презентация по предложению

Собираете информацию? Получите подробную презентацию в удобном формате!

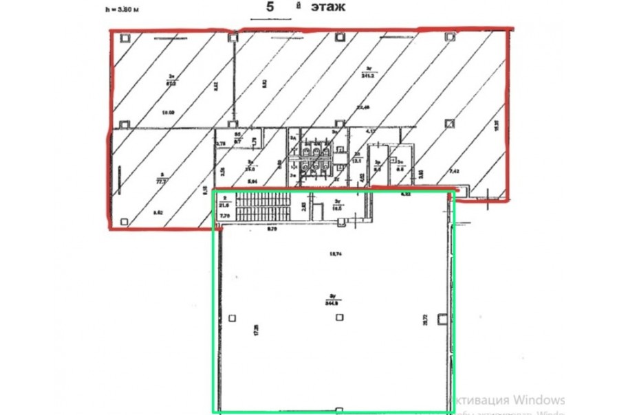
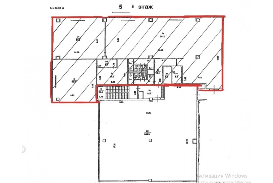
Площадь 2 105 м²
Состояние Готово к въезду
Планировка Смешанная
Этаж 4 - 5

Описание

Преимущества
  • Класс А
  • Пешком от метро
  • Кондиционирование и вентиляция
  • Свой паркинг
  • Несколько провайдеров связи
  • Развитая инфраструктура
Предлагаем в долгосрочную аренду помещение под офис класса А площадью 2105 квадратных метров в бизнес-центре "Метрополис".

Москва, САО, Ленинградское шоссе, 16а с1

Удобное расположение здания для всех видов транспорта:
- Автомобиль: близость транспортных магистралей, таких как Ленинградское шоссе, Волоколамское шоссе, Ленинградский проспект и других.
- Возможность аренды парковочных мест.
- Ближайшее метро: буквально 6 мин пешком от метро "Войковская"

Офис класса А:
- Помещение с отделкой, готово к въезду
- Вентиляция: Приточно-вытяжная вентиляция
- Кондиционирование: центральное
- Презентабельный центральный ресепшн
- Круглосуточная охрана и видеонаблюдение
- Развитая инфраструктура внутри здания

Возможность заключения контракта в соответствии с 44ФЗ по госзакупкам.

Если данное предложение подходит Вашему запросу:

1. Мы отправим Вам подробную презентацию с планировкой и фотографиями в течение 10 минут после звонка, чтобы Вы могли поделиться информацией с руководством или с коллегами.
2. Мы готовы ответить на любые Ваши вопросы о помещении и коммерческих условиях аренды.
3. Покажем помещение в удобное для Вас время с менеджером в здании, при необходимости подготовим виртуальный тур.

Вы можете позвонить нам в любое время. Мы ответим на Ваши вопросы по будням до 19:00, а поздно вечером или в выходные зафиксируем Ваш контакт и перезвоним в рабочее время.

Коммерческие условия

Арендная плата 11 619 600 ₽
Ставка арендной платы 47 500 ₽ м²/год
Эксплуатационные расходы 7 700 ₽
Налоги Без НДС
Тип договора Субаренда
Срок договора Долгосрочный
Размер платежей 1 месяц
Обеспечительный платеж 2 месяц

О бизнес-центре

Класс А
Этажность 11
Лифты Есть
Общая площадь 80 000 м²
Год постройки 2009
Паркинг Подземный
Вентиляция приточно-вытяжная
Кондиционирование центральное
Телекоммуникации Интернет/Телефония

Расположение

Подробная презентацию по предложению

Собираете информацию? Получите подробную презентацию в удобном формате, чтобы обсудить вариант с коллегами или переслать руководству!

Отнеситесь рационально к процессу поиска нового офиса!

Просто ответьте на 3 вопроса, и наши специалисты сами предложат оптимальные варианты под ваш бюджет