8.2
Смотреть все фото
ВОЗМОЖНО ОСВОБОЖДЕНИЕ ID: 1292813 Рейтинг8.1 КлассB+

Москва, Мичуринский проспект, 31 к7

Раменки → 308 м
~ 3 мин
Арендная плата в месяц по запросу потенциального арендатора Срок освобождение в течение 3 месяцев

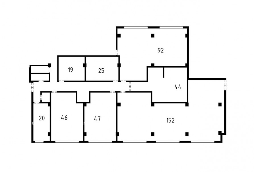
Информация по помещению

Ознакомьтесь с дополнительной информацией по помещению и коммерческим условиям!

Площадь 529 м²
Планировка Смешанная
Этаж 2

Описание

Преимущества
  • Класс B+
  • Пешком от метро
  • Кондиционирование и вентиляция
  • Свой паркинг
  • Развитая инфраструктура

Коммерческие условия

Арендная плата по запросу
Ставка арендной платы по запросу
Эксплуатационные расходы Включены в ставку
Налоги С учётом НДС
Тип договора Прямая аренда
Срок договора Долгосрочный
Размер платежей 1 месяц
Обеспечительный платеж 1 месяц
Статус Сдан

О бизнес-центре

Класс B+
Этажность 3
Лифты Есть
Общая площадь 20 160 м²
Год постройки 2016
Паркинг Подземный
Вентиляция приточно-вытяжная
Кондиционирование центральное
Телекоммуникации Интернет/Телефония

Расположение

Информация по помещению

Получите дополнительную информацию по помещению и коммерческом условиям!

Похожие предложения в других зданиях

БЕЗ КОМИССИИ ID: 218609 Рейтинг7.0 КлассB

Москва, Мосфильмовская улица, 35

Ломоносовский проспект → 1.03 км
~ 10 мин
Арендная плата в месяц 1 041 667 ₽ 25 000 ₽/м² в год С учётом НДС
Характеристики 500 м² 4 этаж Готово к въезду
Преимущества
  • Класс B
  • Пешком от метро
  • Кондиционирование и вентиляция

Сдаем в долгосрочную прямую аренду помещение под офис класса B площадью 500 кв. метров в бизнес-центре... подробнее

Презентация по предложению

Собираете информацию? Получите подробную презентацию в удобном формате!

БЕЗ КОМИССИИ ID: 227076 Рейтинг9.1 КлассА

Москва, проспект Вернадского, 37 к1

Проспект Вернадского → 263 м
~ 3 мин
Арендная плата в месяц 1 375 000 ₽ 30 000 ₽/м² в год С учётом НДС
Характеристики 550 м² 1 этаж Готово к въезду
Преимущества
  • Класс А
  • Пешком от метро
  • Кондиционирование и вентиляция
  • Свой паркинг

Собственник сдает в прямую аренду офисное помещение класса А общей площадью 550 кв.м в недавно отреконструированном бизнес-центре "Вернадского 37 к 1"... подробнее

Презентация по предложению

Собираете информацию? Получите подробную презентацию в удобном формате!

БЕЗ КОМИССИИ ID: 1268786 Рейтинг7.6 КлассB+

Москва, Университетский проспект, 12

Ломоносовский проспект → 1.43 км
~ 14 мин
Арендная плата в месяц 1 146 383 ₽ 28 600 ₽/м² в год С учётом НДС
Характеристики 481 м² 3 этаж Готово к въезду
Преимущества
  • Класс B+
  • Пешком от метро
  • Кондиционирование и вентиляция
  • Свой паркинг
  • Развитая инфраструктура

Сдаем в долгосрочную аренду офисное помещение класса B+ общей площадью 481 квадр. метров в недавно отреконструированном бизнес-центре "Воробьёвский"... подробнее

>

Виртуальный тур

Презентация по предложению

Собираете информацию? Получите подробную презентацию в удобном формате!

БЕЗ КОМИССИИ ID: 1235341 Рейтинг7.6 КлассB+

Москва, Университетский проспект, 12

Ломоносовский проспект → 1.43 км
~ 14 мин
Арендная плата в месяц 1 122 550 ₽ 28 600 ₽/м² в год С учётом НДС
Характеристики 471 м² 5 этаж Готово к въезду
Преимущества
  • Класс B+
  • Пешком от метро
  • Кондиционирование и вентиляция
  • Свой паркинг
  • Развитая инфраструктура

Предлагаем в прямую аренду помещение под офис класса B+ общей площадью 471 кв. метров в недавно отреконструированном бизнес-центре "Воробьёвский"... подробнее

>

Виртуальный тур

Презентация по предложению

Собираете информацию? Получите подробную презентацию в удобном формате!

БЕЗ КОМИССИИ ID: 1260647 Рейтинг7.6 КлассB+

Москва, Университетский проспект, 12

Ломоносовский проспект → 1.43 км
~ 14 мин
Арендная плата в месяц 1 100 000 ₽ 27 500 ₽/м² в год С учётом НДС
Характеристики 480 м² 2 этаж Готово к въезду
Преимущества
  • Класс B+
  • Пешком от метро
  • Кондиционирование и вентиляция
  • Свой паркинг
  • Развитая инфраструктура

Сдаем в долгосрочную прямую аренду офисное помещение класса B+ общей площадью 480 кв.м в недавно отреконструированном бизнес-центре "Воробьёвский"... подробнее

>

Виртуальный тур

Презентация по предложению

Собираете информацию? Получите подробную презентацию в удобном формате!

Посмотреть все похожие предложения
Отнеситесь рационально к процессу поиска нового офиса!

Просто ответьте на 3 вопроса, и наши специалисты сами предложат оптимальные варианты под ваш бюджет

.