8.2
Смотреть все фото
БЕЗ КОМИССИИ ID: 242036 Рейтинг7.5 КлассB+
Бизнес-центр «Михайловский»

Аренда офиса 945 м²

Москва, Михайловский проезд, 1 с1

Пролетарская → 1.38 км
~ 14 мин
Арендная плата в месяц 669 400 ₽ 8 500 ₽/м² в год С учётом НДС

Презентация по предложению

Собираете информацию? Получите подробную презентацию в удобном формате!

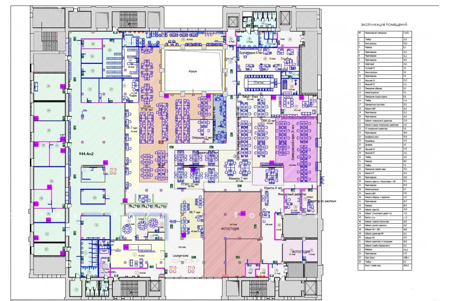
Площадь 945 м²
Состояние Готово к въезду
Планировка Смешанная
Этаж 3

Описание

Преимущества
  • Класс B+
  • Пешком от метро
  • Кондиционирование и вентиляция
  • Свой паркинг
Собственник сдает в аренду офисное помещение класса B+ площадью 945 кв. метров в историческом недавно отреконструированном Офисно-торговом центре "Михайловский".

Москва, ЮВАО, Михайловский проезд, 1 с1

Характеристики местоположения:
- Автомобиль: близость транспортных магистралей, таких как Третье Транспортное Кольцо, Волгоградский проспект и других.
- Возможность аренды парковочных мест.
- Ближайшее метро: от метро "Пролетарская" можно добраться пешком или на городском транспорте

Офис класса B+:
- Помещение готово к въезду
- Вентиляция: Приточно-вытяжная вентиляция
- Кондиционирование: сплит-системы


Что еще можно узнать о предложении:

1. Мы подготовили презентацию с информацией о помещении, фотографиями и планировкой, чтобы Вы могли поделиться ей с коллегами или руководством. Попросите об этом нашего менеджера по телефону в объявлении.
2. Ответим на любые Ваши вопросы, готовы обсуждать любые предложения по коммерческим условиям аренды помещения.
3. Проводим показы ежедневно, договоримся на удобное для Вас время. Можем организовать виртуальный тур по офисному блоку.

Вы можете позвонить нам в любое время. Мы ответим на Ваши вопросы по будням до 19:00, а поздно вечером или в выходные сможем передать Ваш контакт нашему менеджеру.

Коммерческие условия

Арендная плата 669 380 ₽
Ставка арендной платы 8 500 ₽ м²/год
Эксплуатационные расходы Включены в ставку
Налоги С учётом НДС
Тип договора Субаренда
Срок договора от 11 месяцев
Размер платежей 1 месяц
Обеспечительный платеж 1 месяц
Статус Сдан

О бизнес-центре

Класс B+
Этажность 7
Лифты Есть
Общая площадь 6 575 м²
Год постройки 1933
Паркинг Наземный
Вентиляция приточно-вытяжная
Кондиционирование сплит-системы
Телекоммуникации Интернет/Телефония

Расположение

Подробная презентацию по предложению

Собираете информацию? Получите подробную презентацию в удобном формате, чтобы обсудить вариант с коллегами или переслать руководству!

Похожие предложения в других зданиях

БЕЗ КОМИССИИ ID: 171664 Рейтинг8.3 КлассB

Москва, Большая Калитниковская улица, 42

Площадь Ильича → 1.81 км
~ 18 мин
Арендная плата в месяц 675 000 ₽ 9 000 ₽/м² в год С учётом НДС
Характеристики 900 м² 5 этаж Отделка под арендатора
Преимущества
  • Класс B
  • Пешком от метро
  • Кондиционирование и вентиляция
  • Свой паркинг
  • Развитая инфраструктура

Предлагаем в долгосрочную аренду офисное помещение класса B площадью 900 кв. метров в историческом бизнес-центре "Калитники"... подробнее

Презентация по предложению

Собираете информацию? Получите подробную презентацию в удобном формате!

БЕЗ КОМИССИИ ID: 265331 Рейтинг6.5 КлассB

Москва, Старообрядческая улица, 46А

Площадь Ильича → 2.09 км
~ 8 мин
Арендная плата в месяц 740 250 ₽ 9 000 ₽/м² в год С учётом НДС
Характеристики 987 м² 1 - 3 этаж Готово к въезду
Преимущества
  • Класс B
  • Кондиционирование и вентиляция
  • Свой паркинг

Предлагается в долгосрочную прямую аренду офисное помещение класса B площадью 987 квадр. метров в историческом бизнес-центре... подробнее

Презентация по предложению

Собираете информацию? Получите подробную презентацию в удобном формате!

БЕЗ КОМИССИИ ID: 1256326 Рейтинг6.5 КлассB

Москва, Старообрядческая улица, 46А

Площадь Ильича → 2.09 км
~ 8 мин
Арендная плата в месяц 672 000 ₽ 9 600 ₽/м² в год С учётом НДС
Характеристики 840 м² 1 - 3 этаж Готово к въезду
Преимущества
  • Класс B
  • Кондиционирование и вентиляция
  • Свой паркинг

Предлагаем в долгосрочную прямую аренду офис класса B площадью 840 кв.м в историческом бизнес-центре... подробнее

Презентация по предложению

Собираете информацию? Получите подробную презентацию в удобном формате!

БЕЗ КОМИССИИ ID: 12729 Рейтинг7.5 КлассB

Москва, Смирновская улица, 4 с.2

Нижегородская → 1.95 км
~ 20 мин
Арендная плата в месяц 533 333 ₽ 8 000 ₽/м² в год С учётом НДС
Характеристики 800 м² 1 этаж Готово к въезду
Преимущества
  • Класс B
  • Кондиционирование и вентиляция
  • Свой паркинг

Сдается в долгосрочную аренду офисный блок класса B площадью 800 квадр. метров в недавно отреконструированном бизнес-центре... подробнее

Презентация по предложению

Собираете информацию? Получите подробную презентацию в удобном формате!

Посмотреть все похожие предложения
Отнеситесь рационально к процессу поиска нового офиса!

Просто ответьте на 3 вопроса, и наши специалисты сами предложат оптимальные варианты под ваш бюджет

.