8.2
Смотреть все фото
ВОЗМОЖНО ОСВОБОЖДЕНИЕ ID: 284128 Рейтинг8.2 КлассB+
Бизнес-центр «Милан»

Аренда офиса 407 м²

Москва, Шипиловская улица, 28а

Домодедовская → 1.05 км
~ 10 мин
Арендная плата в месяц по запросу потенциального арендатора Срок освобождение в течение 3 месяцев

Информация по помещению

Ознакомьтесь с дополнительной информацией по помещению и коммерческим условиям!

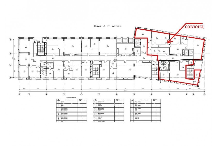
Площадь 407 м²
Планировка Кабинетная
Этаж 8

Описание

Преимущества
  • Класс B+
  • Пешком от метро
  • Кондиционирование и вентиляция
  • Свой паркинг
  • Развитая инфраструктура

Коммерческие условия

Арендная плата по запросу
Ставка арендной платы по запросу
Эксплуатационные расходы Включены в ставку
Налоги С учётом НДС
Тип договора Прямая аренда
Срок договора от 11 месяцев
Размер платежей 1 месяц
Обеспечительный платеж 1 месяц
Статус Сдан

О бизнес-центре

Класс B+
Этажность 21
Лифты Есть
Общая площадь 28 000 м²
Год постройки 2007
Паркинг Подземный
Вентиляция приточно-вытяжная
Кондиционирование центральное
Телекоммуникации Интернет/Телефония

Расположение

Информация по помещению

Получите дополнительную информацию по помещению и коммерческом условиям!

Похожие предложения в других зданиях

БЕЗ КОМИССИИ ID: 219850 Рейтинг8.0 КлассB

Москва, Ясеневая улица, 26

Зябликово → 1.19 км
~ 12 мин
Арендная плата в месяц 740 667 ₽ 22 000 ₽/м² в год С учётом НДС
Характеристики 404 м² 1 этаж Под отделку
Преимущества
  • Класс B
  • Пешком от метро
  • Кондиционирование и вентиляция
  • Свой паркинг

Предлагаем в прямую аренду офис класса B общей площадью 404 кв. метров в бизнес-центре... подробнее

Презентация по предложению

Собираете информацию? Получите подробную презентацию в удобном формате!

БЕЗ КОМИССИИ ID: 299213 Рейтинг6.0 КлассB

Москва, Новочеркасский бульвар, 55 к2

Марьино → 375 м
~ 4 мин
Арендная плата в месяц 640 000 ₽ 19 200 ₽/м² в год С учётом НДС
Характеристики 400 м² этаж Готово к въезду
Преимущества
  • Класс B
  • Пешком от метро
  • Свой паркинг
  • Развитая инфраструктура

Сдаем в долгосрочную прямую аренду помещение под офис класса B площадью 400 кв.м в бизнес-центре... подробнее

Презентация по предложению

Собираете информацию? Получите подробную презентацию в удобном формате!

БЕЗ КОМИССИИ ID: 1317260 Рейтинг4.5 КлассB

Москва, Дорожная улица, 12

Пражская → 1.77 км
~ 18 мин
Арендная плата в месяц 640 000 ₽ 19 200 ₽/м² в год С учётом НДС
Характеристики 400 м² 1 этаж Готово к въезду
Преимущества
  • Класс B
  • Пешком от метро

Предлагаем в долгосрочную аренду помещение под офис класса B общей площадью 400 кв.м в бизнес-центре... подробнее

>

Виртуальный тур

Презентация по предложению

Собираете информацию? Получите подробную презентацию в удобном формате!

Посмотреть все похожие предложения
Отнеситесь рационально к процессу поиска нового офиса!

Просто ответьте на 3 вопроса, и наши специалисты сами предложат оптимальные варианты под ваш бюджет

.