8.2
Смотреть все фото
ВОЗМОЖНО ОСВОБОЖДЕНИЕ ID: 229041 Рейтинг6.5 КлассB

Москва, Милютинский переулок, 5 с2

Лубянка → 546 м
~ 5 мин
Арендная плата в месяц по запросу потенциального арендатора Срок освобождение в течение 3 месяцев

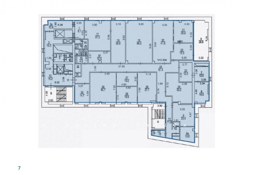
Информация по помещению

Ознакомьтесь с дополнительной информацией по помещению и коммерческим условиям!

Площадь 588 м²
Планировка Кабинетная
Этаж 4

Описание

Преимущества
  • Класс B
  • Пешком от метро
  • Кондиционирование и вентиляция

Коммерческие условия

Арендная плата по запросу
Ставка арендной платы по запросу
Эксплуатационные расходы Включены в ставку
Налоги С учётом НДС
Тип договора Прямая аренда
Срок договора от 11 месяцев
Размер платежей 1 месяц
Обеспечительный платеж 1 месяц
Статус Сдан

О бизнес-центре

Класс B
Этажность 9
Лифты Есть
Общая площадь 6 792 м²
Год постройки 1980
Паркинг Стихийный
Вентиляция естественная
Кондиционирование центральное
Телекоммуникации Интернет/Телефония

Расположение

Информация по помещению

Получите дополнительную информацию по помещению и коммерческом условиям!

Похожие предложения в других зданиях

БЕЗ КОМИССИИ ID: 1320155 Рейтинг5.6 КлассB

Москва, Мясницкая улица, 13 с18

Сретенский бульвар → 529 м
~ 5 мин
Арендная плата в месяц 1 040 000 ₽ 24 000 ₽/м² в год С учётом НДС
Характеристики 520 м² 1 этаж Готово к въезду
Преимущества
  • Класс B
  • Пешком от метро
  • Кондиционирование и вентиляция

Предлагается в долгосрочную аренду помещение под офис класса B площадью 520 квадр. метров в бизнес-центре... подробнее

Презентация по предложению

Собираете информацию? Получите подробную презентацию в удобном формате!

БЕЗ КОМИССИИ ID: 112218 Рейтинг5.9 КлассB

Москва, Кривоколенный переулок, 4 с3

Лубянка → 403 м
~ 4 мин
Арендная плата в месяц 1 098 667 ₽ 20 600 ₽/м² в год С учётом НДС
Характеристики 640 м² 1 - 2 этаж Готово к въезду
Преимущества
  • Класс B
  • Пешком от метро
  • Кондиционирование и вентиляция
  • Свой паркинг

Сдаем в долгосрочную прямую аренду офисное помещение класса B общей площадью 640 кв. метров в бизнес-центре... подробнее

Презентация по предложению

Собираете информацию? Получите подробную презентацию в удобном формате!

БЕЗ КОМИССИИ ID: 64778 Рейтинг5.4 КлассB

Москва, Архангельский переулок, 11/16 с3

Чистые пруды → 488 м
~ 5 мин
Арендная плата в месяц 1 102 000 ₽ 22 800 ₽/м² в год С учётом НДС
Характеристики 580 м² 1 - 3 этаж Готово к въезду
Преимущества
  • Класс B
  • Пешком от метро
  • Кондиционирование и вентиляция
  • Свой паркинг

Предлагается в долгосрочную прямую аренду офисный блок класса B общей площадью 580 кв.м в бизнес-центре... подробнее

Презентация по предложению

Собираете информацию? Получите подробную презентацию в удобном формате!

БЕЗ КОМИССИИ ID: 102791 Рейтинг8.5 КлассB

Москва, улица Маросейка, 4

Китай-город → 162 м
~ 2 мин
Арендная плата в месяц 1 354 167 ₽ 25 000 ₽/м² в год С учётом НДС
Характеристики 650 м² 2 - 3 этаж Под отделку
Преимущества
  • Класс B
  • Пешком от метро
  • Кондиционирование и вентиляция
  • Развитая инфраструктура

Предлагаем в аренду офисный блок класса B общей площадью 650 кв.м в бизнес-центре... подробнее

Презентация по предложению

Собираете информацию? Получите подробную презентацию в удобном формате!

БЕЗ КОМИССИИ ID: 182305 Рейтинг8.0 КлассB

Москва, Звонарский переулок, 4 с1

Кузнецкий Мост → 470 м
~ 5 мин
Арендная плата в месяц 1 239 583 ₽ 25 000 ₽/м² в год С учётом НДС
Характеристики 595 м² 0 - 3 этаж Готово к въезду
Преимущества
  • Класс B
  • Пешком от метро
  • Кондиционирование и вентиляция

Предлагаем в долгосрочную прямую аренду помещение под офис класса B площадью 595 кв. метров в историческом бизнес-центре... подробнее

Презентация по предложению

Собираете информацию? Получите подробную презентацию в удобном формате!

Посмотреть все похожие предложения
Отнеситесь рационально к процессу поиска нового офиса!

Просто ответьте на 3 вопроса, и наши специалисты сами предложат оптимальные варианты под ваш бюджет

.