8.2
Смотреть все фото
БЕЗ КОМИССИИ ID: 1374376 Рейтинг7.3 КлассB
Бизнес-центр «Минаевский»

Аренда офиса 264 м²

Москва, улица Сущёвский Вал, 16 с1

Марьина Роща → 928 м
~ 9 мин
Арендная плата в месяц 575 000 ₽ 26 100 ₽/м² в год Упрощённая система налогообложения

Презентация по предложению

Собираете информацию? Получите подробную презентацию в удобном формате!

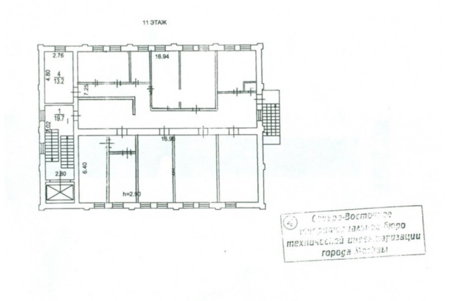
Площадь 264 м²
Состояние Готово к въезду
Планировка Смешанная
Этаж 11

Описание

Преимущества
  • Класс B
  • Пешком от метро
  • Кондиционирование и вентиляция
  • Свой паркинг
Предлагается в долгосрочную прямую аренду офисный блок класса B общей площадью 264 кв.м в бизнес-центре "Минаевский".

Москва, СВАО, улица Сущёвский Вал, 16 с1

Удобная локация здания:
- Автомобиль: близость транспортных магистралей, таких как Третье Транспортное Кольцо, Бутырская улица и других.
- Возможность аренды парковочных мест.
- Ближайшее метро: от метро "Марьина Роща" всего 9 мин пешком

Офис класса B:
- Помещение готово к въезду
- Вентиляция: Приточно-вытяжная вентиляция
- Кондиционирование: сплит-системы


Если данное предложение подходит Вашему запросу:

1. Мы отправим Вам подробную презентацию с планировкой и фотографиями в течение 10 минут после звонка, чтобы Вы могли поделиться информацией с руководством или с коллегами.
2. Мы готовы ответить на любые Ваши вопросы о помещении и коммерческих условиях аренды.
3. Оперативно организуем просмотр помещения, договоримся на любое удобное время, подготовим виртуальный тур.

Вы можете позвонить нам в любое время. Мы ответим на Ваши вопросы по будням до 19:00, а поздно вечером или в выходные зафиксируем Ваш контакт и перезвоним в рабочее время.

Коммерческие условия

Арендная плата 574 990 ₽
Ставка арендной платы 23 000 ₽ м²/год
Эксплуатационные расходы 3 136 ₽
Налоги Упрощённая система налогообложения
Тип договора Прямая аренда
Срок договора от 11 месяцев
Размер платежей 1 месяц
Обеспечительный платеж 1 месяц
Статус Свободен

О бизнес-центре

Класс B
Этажность 12
Лифты Есть
Общая площадь 0 м²
Паркинг Наземный
Вентиляция приточно-вытяжная
Кондиционирование сплит-системы
Телекоммуникации Интернет/Телефония

Расположение

Подробная презентацию по предложению

Собираете информацию? Получите подробную презентацию в удобном формате, чтобы обсудить вариант с коллегами или переслать руководству!

Похожие предложения в других зданиях

БЕЗ КОМИССИИ ID: 1299916 Рейтинг5.4 КлассB

Москва, улица Сущевский Вал, 5 с15

Савеловская → 494 м
~ 5 мин
Арендная плата в месяц 529 375 ₽ 23 100 ₽/м² в год С учётом НДС
Характеристики 275 м² 2 этаж Готово к въезду
Преимущества
  • Класс B
  • Пешком от метро

Предлагаем в прямую аренду офисный блок класса B общей площадью 306 квадр. метров в историческом бизнес-центре... подробнее

Презентация по предложению

Собираете информацию? Получите подробную презентацию в удобном формате!

БЕЗ КОМИССИИ ID: 1256064 Рейтинг8.3 КлассB+

Москва, улица Образцова, 4А

Достоевская → 811 м
~ 8 мин
Арендная плата в месяц 604 968 ₽ 25 200 ₽/м² в год С учётом НДС
Характеристики 288 м² 2 этаж Готово к въезду
Преимущества
  • Класс B+
  • Пешком от метро
  • Кондиционирование и вентиляция
  • Свой паркинг

Предлагаем в долгосрочную аренду офис класса B+ площадью 288 кв. метров в бизнес-центре... подробнее

>

Виртуальный тур

Презентация по предложению

Собираете информацию? Получите подробную презентацию в удобном формате!

БЕЗ КОМИССИИ ID: 168376 Рейтинг7.0 КлассB

Москва, Складочная улица, 1Б с1

Савеловская → 594 м
~ 6 мин
Арендная плата в месяц 500 000 ₽ 20 000 ₽/м² в год С учётом НДС
Характеристики 300 м² 2 этаж Готово к въезду
Преимущества
  • Класс B
  • Пешком от метро
  • Кондиционирование и вентиляция

Предлагаем в долгосрочную аренду офис класса B общей площадью 300 кв. метров в бизнес-центре... подробнее

Презентация по предложению

Собираете информацию? Получите подробную презентацию в удобном формате!

БЕЗ КОМИССИИ ID: 289448 Рейтинг8.4 КлассB+

Москва, улица Бутырский Вал, 68/70 с1

Савеловская → 704 м
~ 7 мин
Арендная плата в месяц 514 600 ₽ 24 900 ₽/м² в год С учётом НДС
Характеристики 248 м² 1 этаж Готово к въезду
Преимущества
  • Класс B+
  • Пешком от метро
  • Кондиционирование и вентиляция
  • Свой паркинг
  • Несколько провайдеров связи

Предлагается в прямую аренду офис класса B+ площадью 248 кв.м в бизнес-центре "Бейкер Плаза"... подробнее

>

Виртуальный тур

Презентация по предложению

Собираете информацию? Получите подробную презентацию в удобном формате!

БЕЗ КОМИССИИ ID: 288069 Рейтинг7.7 КлассB

Москва, Новослободская улица, 45Б

Менделеевская → 364 м
~ 4 мин
Арендная плата в месяц 526 167 ₽ 22 000 ₽/м² в год С учётом НДС
Характеристики 287 м² 3 этаж Готово к въезду
Преимущества
  • Класс B
  • Пешком от метро
  • Кондиционирование и вентиляция
  • Свой паркинг
  • Несколько провайдеров связи

Сдается в долгосрочную аренду помещение под офис класса B площадью 287 квадр. метров в историческом недавно отреконструированном бизнес-центре "Новослободский Loft"... подробнее

Презентация по предложению

Собираете информацию? Получите подробную презентацию в удобном формате!

Посмотреть все похожие предложения
Отнеситесь рационально к процессу поиска нового офиса!

Просто ответьте на 3 вопроса, и наши специалисты сами предложат оптимальные варианты под ваш бюджет

.