8.2

Виртуальный тур

Смотреть все фото
БЕЗ КОМИССИИ ID: 1286908 Рейтинг6.2 КлассB
Бизнес-центр «Минская 4»

Аренда офиса 1110 м²

Москва, Минская улица, 4

Филевский парк → 772 м
~ 8 мин
Арендная плата в месяц 1 759 900 ₽ 19 000 ₽/м² в год С учётом НДС

Презентация по предложению

Собираете информацию? Получите подробную презентацию в удобном формате!

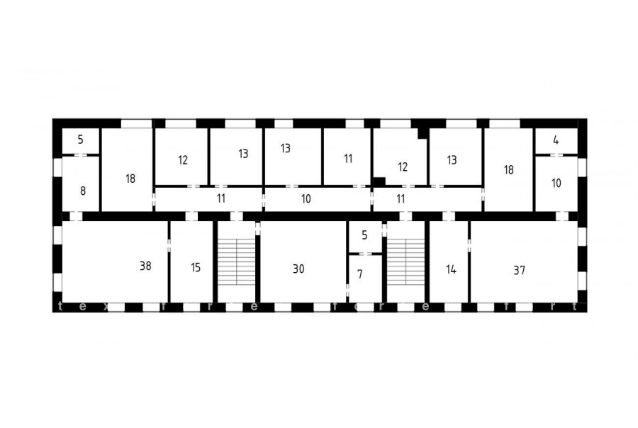
Площадь 1 110 м²
Состояние Готово к въезду
Планировка Смешанная
Этаж -1 - 3

Описание

Преимущества
  • Класс B
  • Пешком от метро
  • Кондиционирование и вентиляция
  • Свой паркинг
Предлагаем в долгосрочную прямую аренду офисное здание класса B площадью 1110 кв. метров.

Москва, ЗАО, Минская улица, 4

Удобная локация здания:
- Автомобиль: близость транспортных магистралей, таких как Кутузовский проспект и других.
- Возможность аренды парковочных мест.
- Ближайшее метро: от метро "Филевский парк" всего 8 мин пешком

Офис класса B:
- Помещение с отделкой, готово к въезду
- Кондиционирование: центральное


Если предложение предварительно Вам подходит:

1. Мы отправим Вам подробную презентацию с планировкой и фотографиями в течение 10 минут после звонка, чтобы Вы могли поделиться информацией с руководством или с коллегами.
2. Мы готовы ответить на любые Ваши вопросы о помещении и коммерческих условиях аренды.
3.

Вы можете позвонить нам в любое время. Мы ответим на Ваши вопросы по будням до 19:00, а поздно вечером или в выходные зафиксируем Ваш контакт и перезвоним в рабочее время.

Коммерческие условия

Арендная плата 1 599 970 ₽
Ставка арендной платы 19 000 ₽ м²/год
Эксплуатационные расходы Включены в ставку
Налоги С учётом НДС
Тип договора Прямая аренда
Срок договора Долгосрочный
Размер платежей 1 месяц
Обеспечительный платеж 2 месяц
Статус Сдан

О бизнес-центре

Класс B
Этажность 4
Лифты Нет
Общая площадь 1 113 м²
Год постройки 1961
Паркинг Наземный
Вентиляция естественная
Кондиционирование центральное
Телекоммуникации Интернет/Телефония

Расположение

Подробная презентацию по предложению

Собираете информацию? Получите подробную презентацию в удобном формате, чтобы обсудить вариант с коллегами или переслать руководству!

Похожие предложения в других зданиях

ВОЗМОЖНО ОСВОБОЖДЕНИЕ ID: 473161 Рейтинг7.7 КлассB

Москва, Багратионовский проезд, 7 к3

Багратионовская → 396 м
~ 5 мин
Арендная плата в месяц 1 732 500 ₽ 18 000 ₽/м² в год С учётом НДС
Характеристики 1 155 м² 2 этаж Готово к въезду
Преимущества
  • Класс B
  • Пешком от метро
  • Кондиционирование и вентиляция
  • Свой паркинг
  • Несколько провайдеров связи
  • Развитая инфраструктура

Сдается в долгосрочную прямую аренду офис класса B общей площадью 1155 квадратных метров в бизнес-центре "Рубин"... подробнее

Презентация по предложению

Собираете информацию? Получите подробную презентацию в удобном формате!

БЕЗ КОМИССИИ ID: 126686 Рейтинг7.7 КлассB

Москва, Багратионовский проезд, 7 к3

Багратионовская → 396 м
~ 5 мин
Арендная плата в месяц 1 500 000 ₽ 18 000 ₽/м² в год С учётом НДС
Характеристики 1 000 м² 3 этаж Готово к въезду
Преимущества
  • Класс B
  • Пешком от метро
  • Кондиционирование и вентиляция
  • Свой паркинг
  • Несколько провайдеров связи
  • Развитая инфраструктура

Предлагается в долгосрочную аренду офисный блок класса B площадью 1000 кв.м в бизнес-центре "Рубин"... подробнее

Презентация по предложению

Собираете информацию? Получите подробную презентацию в удобном формате!

БЕЗ КОМИССИИ ID: 307728 Рейтинг5.0 КлассB

Москва, Багратионовский проезд, 18

Багратионовская → 313 м
~ 3 мин
Арендная плата в месяц 1 746 875 ₽ 21 500 ₽/м² в год С учётом НДС
Характеристики 975 м² 4 этаж Готово к въезду
Преимущества
  • Класс B
  • Пешком от метро
  • Кондиционирование и вентиляция
  • Свой паркинг
  • Несколько провайдеров связи

Предлагаем в долгосрочную прямую аренду офисный блок класса B общей площадью 975 кв. метров в бизнес-центре... подробнее

Презентация по предложению

Собираете информацию? Получите подробную презентацию в удобном формате!

ВОЗМОЖНО ОСВОБОЖДЕНИЕ ID: 473163 Рейтинг6.8 КлассB

Москва, Багратионовский проезд, 7 к20А

Багратионовская → 451 м
~ 5 мин
Арендная плата в месяц 1 425 000 ₽ 18 000 ₽/м² в год С учётом НДС
Характеристики 950 м² 4 этаж Готово к въезду
Преимущества
  • Класс B
  • Пешком от метро
  • Кондиционирование и вентиляция
  • Свой паркинг
  • Развитая инфраструктура

Предлагаем в долгосрочную прямую аренду офис класса B общей площадью 950 квадратных метров в бизнес-центре... подробнее

Презентация по предложению

Собираете информацию? Получите подробную презентацию в удобном формате!

БЕЗ КОМИССИИ ID: 135654 Рейтинг7.7 КлассB+

Москва, улица Барклая, 6 с3

Багратионовская → 862 м
~ 9 мин
Арендная плата в месяц 1 724 083 ₽ 17 000 ₽/м² в год С учётом НДС
Характеристики 1 217 м² 4 - 5 этаж Готово к въезду
Преимущества
  • Класс B+
  • Пешком от метро
  • Кондиционирование и вентиляция
  • Свой паркинг
  • Развитая инфраструктура

Сдаем в долгосрочную аренду офисное помещение класса B+ общей площадью 1217 квадратных метров в бизнес-центре "Барклай Парк"... подробнее

Презентация по предложению

Собираете информацию? Получите подробную презентацию в удобном формате!

Посмотреть все похожие предложения
Отнеситесь рационально к процессу поиска нового офиса!

Просто ответьте на 3 вопроса, и наши специалисты сами предложат оптимальные варианты под ваш бюджет

.