8.2
Смотреть все фото
БЕЗ КОМИССИИ ID: 1281727 Рейтинг7.1 КлассB
Бизнес-центр «Мира 3 к1»

Аренда офиса 259 м²

Москва, проспект Мира, 3 к1

Сухаревская → 55 м
~ 1 мин
Арендная плата в месяц 622 600 ₽ 28 800 ₽/м² в год С учётом НДС

Презентация по предложению

Собираете информацию? Получите подробную презентацию в удобном формате!

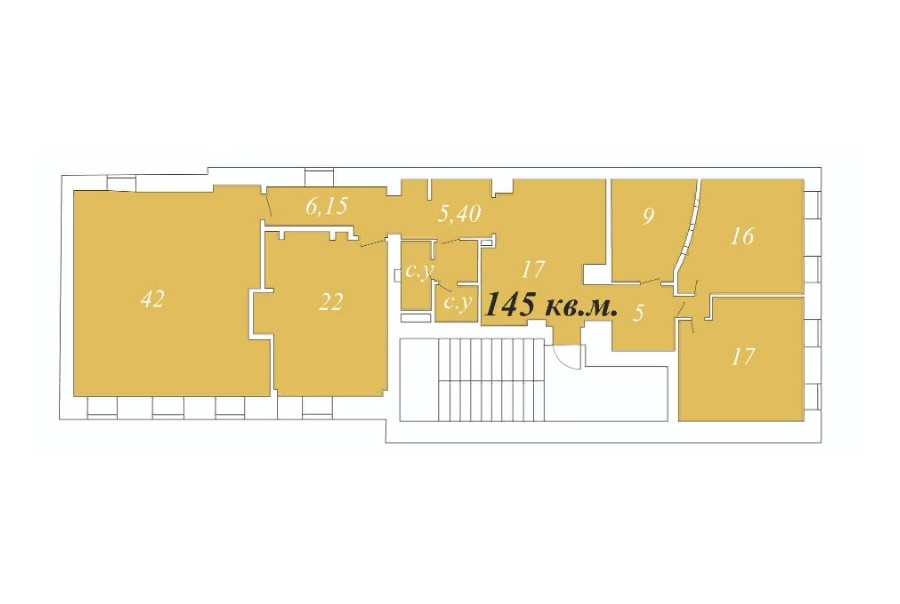
Площадь 259 м²
Состояние Готово к въезду
Планировка Смешанная
Этаж 4

Описание

Преимущества
  • Класс B
  • Пешком от метро
  • Кондиционирование и вентиляция
Предлагается в долгосрочную аренду офис класса B площадью 259 квадр. метров в бизнес-центре.

Москва, ЦАО, проспект Мира, 3 к1

Удобное расположение здания для всех видов транспорта:
- Автомобиль: близость транспортных магистралей, таких как Садовое Кольцо, Проспект Мира и других.
- Ближайшее метро: буквально 1 мин пешком от метро "Сухаревская"

Офис класса B:
- Офис с отделкой, полностью готов к аренде
- Вентиляция: Приточно-вытяжная вентиляция


Если предложение предварительно Вам подходит:

1. Мы отправим Вам подробную презентацию с планировкой и фотографиями в течение 10 минут после звонка, чтобы Вы могли поделиться информацией с руководством или с коллегами.
2. Мы готовы ответить на любые Ваши вопросы о помещении и коммерческих условиях аренды.
3. Покажем помещение в удобное для Вас время с менеджером в здании, при необходимости подготовим виртуальный тур.

Вы можете позвонить нам в любое время. Мы ответим на Ваши вопросы по будням до 19:00, а поздно вечером или в выходные сможем передать Ваш контакт нашему менеджеру.

Коммерческие условия

Арендная плата 566 000 ₽
Ставка арендной платы 28 800 ₽ м²/год
Эксплуатационные расходы Включены в ставку
Налоги С учётом НДС
Тип договора Прямая аренда
Срок договора от 11 месяцев
Размер платежей 1 месяц
Обеспечительный платеж 1 месяц месяц
Статус Сдан

О бизнес-центре

Класс B
Этажность 4
Лифты Нет
Общая площадь 0 м²
Паркинг Стихийный
Вентиляция приточно-вытяжная
Кондиционирование возможность установки
Телекоммуникации Интернет/Телефония

Расположение

Подробная презентацию по предложению

Собираете информацию? Получите подробную презентацию в удобном формате, чтобы обсудить вариант с коллегами или переслать руководству!

Похожие предложения в других зданиях

БЕЗ КОМИССИИ ID: 1262141 Рейтинг9.2 КлассА

Москва, проспект Мира, 6

Сухаревская → 84 м
~ 1 мин
Арендная плата в месяц 627 733 ₽ 29 400 ₽/м² в год С учётом НДС
Характеристики 256 м² 4 этаж Готово к въезду
Преимущества
  • Класс А
  • Пешком от метро
  • Кондиционирование и вентиляция
  • Свой паркинг
  • Развитая инфраструктура

Сдается в прямую аренду офисное помещение класса А площадью 256 кв.м в бизнес-центре "Мелиора Плейс"... подробнее

>

Виртуальный тур

Презентация по предложению

Собираете информацию? Получите подробную презентацию в удобном формате!

БЕЗ КОМИССИИ ID: 196761 Рейтинг7.0 КлассB

Москва, Большой Сухаревский переулок, 19 с2

Сухаревская → 381 м
~ 4 мин
Арендная плата в месяц 583 333 ₽ 28 000 ₽/м² в год С учётом НДС
Характеристики 250 м² 4 этаж Готово к въезду
Преимущества
  • Класс B
  • Пешком от метро
  • Кондиционирование и вентиляция
  • Свой паркинг

Предлагаем в долгосрочную прямую аренду помещение под офис класса B общей площадью 250 кв. метров в бизнес-центре... подробнее

Презентация по предложению

Собираете информацию? Получите подробную презентацию в удобном формате!

БЕЗ КОМИССИИ ID: 286003 Рейтинг7.1 КлассB

Москва, Большой Сухаревский переулок, 17 с2

Сухаревская → 364 м
~ 4 мин
Арендная плата в месяц 646 100 ₽ 27 300 ₽/м² в год С учётом НДС
Характеристики 284 м² 3 этаж Готово к въезду
Преимущества
  • Класс B
  • Пешком от метро
  • Кондиционирование и вентиляция
  • Развитая инфраструктура

Предлагается в долгосрочную прямую аренду офисный блок класса B общей площадью 284 квадратных метров в историческом недавно отреконструированном бизнес-центре... подробнее

Презентация по предложению

Собираете информацию? Получите подробную презентацию в удобном формате!

БЕЗ КОМИССИИ ID: 280052 Рейтинг7.3 КлассB+

Москва, проспект Мира, 20 к2

Сухаревская → 421 м
~ 4 мин
Арендная плата в месяц 647 500 ₽ 30 000 ₽/м² в год С учётом НДС
Характеристики 259 м² 1 этаж Готово к въезду
Преимущества
  • Класс B+
  • Пешком от метро
  • Кондиционирование и вентиляция
  • Развитая инфраструктура

Предлагаем в прямую аренду офисное помещение класса B+ общей площадью 259 кв. метров в историческом недавно отреконструированном бизнес-центре... подробнее

Презентация по предложению

Собираете информацию? Получите подробную презентацию в удобном формате!

БЕЗ КОМИССИИ ID: 245260 Рейтинг7.7 КлассB

Москва, проспект Мира, 13 с1

Сухаревская → 652 м
~ 7 мин
Арендная плата в месяц 750 000 ₽ 30 000 ₽/м² в год С учётом НДС
Характеристики 300 м² 2 - 3 этаж Готово к въезду
Преимущества
  • Класс B
  • Пешком от метро
  • Кондиционирование и вентиляция
  • Свой паркинг
  • Развитая инфраструктура

Предлагается в долгосрочную прямую аренду офисный блок класса B площадью 300 квадратных метров в бизнес-центре... подробнее

Презентация по предложению

Собираете информацию? Получите подробную презентацию в удобном формате!

Посмотреть все похожие предложения
Отнеситесь рационально к процессу поиска нового офиса!

Просто ответьте на 3 вопроса, и наши специалисты сами предложат оптимальные варианты под ваш бюджет

.