8.2
Смотреть все фото
БЕЗ КОМИССИИ ID: 1308996 Рейтинг7.0 КлассB
Бизнес-центр «Мира 64»

Аренда офиса 767 м²

Москва, проспект Мира, 64

Проспект Мира → 608 м
~ 6 мин
Арендная плата в месяц 2 684 500 ₽ 42 000 ₽/м² в год С учётом НДС

Презентация по предложению

Собираете информацию? Получите подробную презентацию в удобном формате!

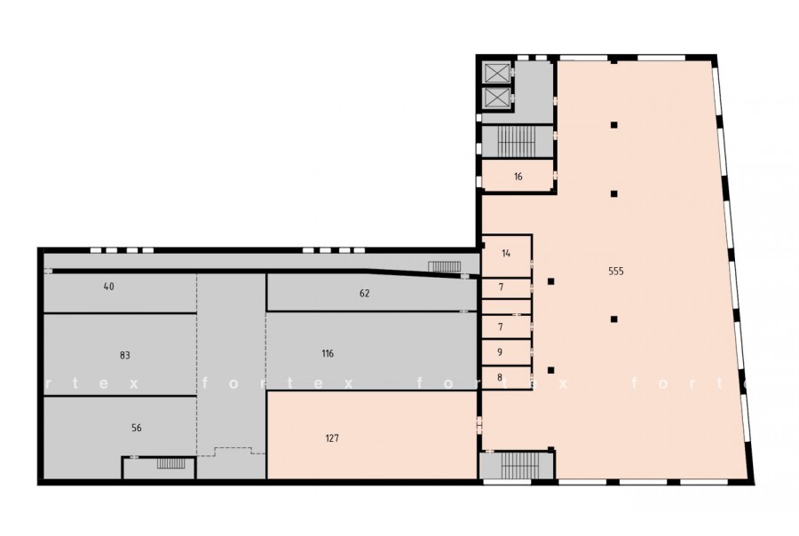
Площадь 767 м²
Состояние Готово к въезду
Планировка Смешанная
Этаж 5

Описание

Преимущества
  • Класс B
  • Пешком от метро
  • Кондиционирование и вентиляция
  • Развитая инфраструктура
Предлагаем в прямую аренду офис класса B площадью 767 кв. метров в бизнес-центре.

Москва, ЦАО, проспект Мира, 64

Удобная локация здания:
- Автомобиль: близость транспортных магистралей, таких как Третье Транспортное Кольцо, Проспект Мира и других.
- Ближайшее метро: от метро "Проспект Мира" всего 6 мин пешком

Офис класса B:
- Помещение готово к въезду
- Вентиляция: Приточно-вытяжная вентиляция
- Кондиционирование: центральное
- Круглосуточная охрана и видеонаблюдение
- Развитая инфраструктура внутри здания

Возможность заключения контракта в соответствии с 44ФЗ по госзакупкам.

Что еще можно узнать о предложении:

1. Получите презентацию в течение 10 минут в Whatsapp или на почту с фотографиями и планировкой, чтобы обсудить данный вариант с коллегами или переслать руководству. Для этого позвоните по телефону, указанному в объявлении.
2. Задайте любые вопросы менеджеру по телефону, готовы обсуждать любые предложения по финансовым условиям договора аренды.
3. Покажем помещение в удобное для Вас время с менеджером в здании, при необходимости подготовим виртуальный тур.

Звоните нам в любое время. По будням мы сможем ответить на Ваши вопросы до 19:00. В выходные или вечернее время мы передадим Ваш контакт нашему менеджеру по аренде.

Коммерческие условия

Арендная плата 2 556 670 ₽
Ставка арендной платы 42 000 ₽ м²/год
Эксплуатационные расходы Включены в ставку
Налоги С учётом НДС
Тип договора Прямая аренда
Срок договора от 11 месяцев
Размер платежей 1 месяц
Обеспечительный платеж 2 месяц
Статус Сдан

О бизнес-центре

Класс B
Этажность 5
Лифты Есть
Общая площадь 6 600 м²
Год постройки 2008
Паркинг Стихийный
Вентиляция приточно-вытяжная
Кондиционирование центральное
Телекоммуникации Интернет/Телефония

Расположение

Подробная презентацию по предложению

Собираете информацию? Получите подробную презентацию в удобном формате, чтобы обсудить вариант с коллегами или переслать руководству!

Похожие предложения в других зданиях

БЕЗ КОМИССИИ ID: 55215 Рейтинг8.0 КлассB

Москва, Протопоповский переулок, 19 с13

Проспект Мира → 605 м
~ 6 мин
Арендная плата в месяц 2 162 175 ₽ 38 100 ₽/м² в год С учётом НДС
Характеристики 681 м² 1 - 3 этаж Готово к въезду
Преимущества
  • Класс B
  • Пешком от метро
  • Кондиционирование и вентиляция
  • Свой паркинг

Предлагается в долгосрочную аренду помещение под офис класса B площадью 681 квадратных метров в историческом бизнес-центре... подробнее

Презентация по предложению

Собираете информацию? Получите подробную презентацию в удобном формате!

ВОЗМОЖНО ОСВОБОЖДЕНИЕ ID: 498211 Рейтинг8.6 КлассА

Москва, проспект Мира, 33 к1

Проспект Мира → 172 м
~ 2 мин
Арендная плата в месяц 2 701 000 ₽ 37 000 ₽/м² в год С учётом НДС
Характеристики 876 м² 2 этаж Готово к въезду
Преимущества
  • Класс А
  • Пешком от метро
  • Кондиционирование и вентиляция
  • Свой паркинг
  • Развитая инфраструктура

Предлагается в долгосрочную прямую аренду помещение под офис класса А общей площадью 876 кв. метров в бизнес-центре "Олимпик плаза"... подробнее

Презентация по предложению

Собираете информацию? Получите подробную презентацию в удобном формате!

БЕЗ КОМИССИИ ID: 1284361 Рейтинг9.0 КлассА

Москва, Ботанический переулок, 5

Проспект Мира → 659 м
~ 7 мин
Арендная плата в месяц 3 133 900 ₽ 46 200 ₽/м² в год С учётом НДС
Характеристики 814 м² 7 - 10 этаж Готово к въезду
Преимущества
  • Класс А
  • Пешком от метро
  • Кондиционирование и вентиляция
  • Свой паркинг
  • Развитая инфраструктура

Предлагается в долгосрочную прямую аренду офисный блок класса А общей площадью 814 квадр. метров в бизнес-центре... подробнее

Презентация по предложению

Собираете информацию? Получите подробную презентацию в удобном формате!

БЕЗ КОМИССИИ ID: 229390 Рейтинг7.0 КлассB

Москва, Верхняя Красносельская улица, 2/1 с1

Красносельская → 773 м
~ 8 мин
Арендная плата в месяц 2 115 000 ₽ 36 000 ₽/м² в год С учётом НДС
Характеристики 705 м² 4 этаж Готово к въезду
Преимущества
  • Класс B
  • Пешком от метро
  • Кондиционирование и вентиляция
  • Свой паркинг

Предлагается в долгосрочную аренду офис класса B площадью 705 кв. метров в бизнес-центре... подробнее

Презентация по предложению

Собираете информацию? Получите подробную презентацию в удобном формате!

БЕЗ КОМИССИИ ID: 53642 Рейтинг7.8 КлассB+

Москва, Троицкая улица, 7 с4

Цветной бульвар → 557 м
~ 6 мин
Арендная плата в месяц 2 748 333 ₽ 38 800 ₽/м² в год С учётом НДС
Характеристики 850 м² 1 - 2 этаж Готово к въезду
Преимущества
  • Класс B+
  • Пешком от метро
  • Кондиционирование и вентиляция
  • Свой паркинг

Предлагаем в долгосрочную прямую аренду офис класса B+ общей площадью 850 квадр. метров в бизнес-центре... подробнее

Презентация по предложению

Собираете информацию? Получите подробную презентацию в удобном формате!

Посмотреть все похожие предложения
Отнеситесь рационально к процессу поиска нового офиса!

Просто ответьте на 3 вопроса, и наши специалисты сами предложат оптимальные варианты под ваш бюджет

.