8.2

Виртуальный тур

Смотреть все фото
БЕЗ КОМИССИИ ID: 1295439 Рейтинг7.5 КлассB+
Бизнес-центр «МирЛанд»

Аренда офиса 586 м²

Москва, 2-я Хуторская улица, 38А

Дмитровская → 882 м
~ 9 мин
Арендная плата в месяц 846 000 ₽ 17 300 ₽/м² в год С учётом НДС

Презентация по предложению

Собираете информацию? Получите подробную презентацию в удобном формате!

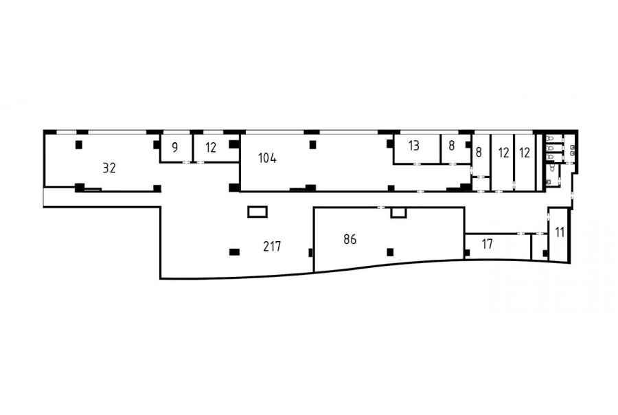
Площадь 586 м²
Состояние Готово к въезду
Планировка Смешанная
Этаж 3

Описание

Преимущества
  • Класс B+
  • Пешком от метро
  • Кондиционирование и вентиляция
  • Свой паркинг
  • Несколько провайдеров связи
  • Развитая инфраструктура
Сдается в долгосрочную аренду помещение под офис класса B+ общей площадью 586 квадр. метров в бизнес-центре "МирЛанд".

Москва, САО, 2-я Хуторская улица, 38А

Удобная локация здания:
- Автомобиль: близость транспортных магистралей, таких как Третье Транспортное Кольцо, Бутырская улица, Дмитровское шоссе, Ленинградский проспект и других.
- Возможность аренды парковочных мест.
- Ближайшее метро: от метро "Дмитровская" всего 9 мин пешком

Офис класса B+:
- Помещение готово к въезду
- Вентиляция: Приточно-вытяжная вентиляция
- Кондиционирование: центральное
- Круглосуточная охрана и видеонаблюдение
- Развитая инфраструктура внутри здания


Если предложение предварительно Вам подходит:

1. Мы отправим Вам подробную презентацию с планировкой и фотографиями в течение 10 минут после звонка, чтобы Вы могли поделиться информацией с руководством или с коллегами.
2. Задайте любые вопросы менеджеру по телефону, готовы обсуждать любые предложения по финансовым условиям договора аренды.
3.

Звоните нам в любое время. По будням мы сможем ответить на Ваши вопросы до 19:00. В выходные или вечернее время мы передадим Ваш контакт нашему менеджеру по аренде.

Коммерческие условия

Арендная плата 805 750 ₽
Ставка арендной платы 17 300 ₽ м²/год
Эксплуатационные расходы Включены в ставку
Налоги С учётом НДС
Тип договора Прямая аренда
Срок договора от 11 месяцев
Размер платежей 1 месяц
Обеспечительный платеж 1 месяц
Статус Сдан

О бизнес-центре

Класс B+
Этажность 9
Лифты Есть
Общая площадь 80 000 м²
Год постройки 2005
Паркинг Наземный
Вентиляция приточно-вытяжная
Кондиционирование центральное
Телекоммуникации Интернет/Телефония

Расположение

Подробная презентацию по предложению

Собираете информацию? Получите подробную презентацию в удобном формате, чтобы обсудить вариант с коллегами или переслать руководству!

Похожие предложения в других зданиях

БЕЗ КОМИССИИ ID: 138014 Рейтинг5.3 КлассB

Москва, Тимирязевская улица, 2/3 с3

Дмитровская → 592 м
~ 6 мин
Арендная плата в месяц 750 000 ₽ 18 000 ₽/м² в год С учётом НДС
Характеристики 500 м² 2 этаж Готово к въезду
Преимущества
  • Класс B
  • Пешком от метро
  • Кондиционирование и вентиляция
  • Свой паркинг

Сдается в долгосрочную прямую аренду офис класса B площадью 500 кв.м в бизнес-центре "Парк 11"... подробнее

Презентация по предложению

Собираете информацию? Получите подробную презентацию в удобном формате!

ВОЗМОЖНО ОСВОБОЖДЕНИЕ ID: 122712 Рейтинг5.7 КлассB

Москва, Старый Петровско-Разумовский проезд, 1/23 с4

Петровский парк → 1.36 км
~ 14 мин
Арендная плата в месяц 668 750 ₽ 15 000 ₽/м² в год С учётом НДС
Характеристики 535 м² 3 этаж Готово к въезду
Преимущества
  • Класс B
  • Пешком от метро
  • Кондиционирование и вентиляция
  • Свой паркинг
  • Развитая инфраструктура

Предлагаем в долгосрочную аренду офисный блок класса B общей площадью 535 кв. метров в бизнес-центре "Вымпел"... подробнее

Презентация по предложению

Собираете информацию? Получите подробную презентацию в удобном формате!

БЕЗ КОМИССИИ ID: 147712 Рейтинг5.8 КлассB

Москва, Мишина улица, 35

Петровский парк → 769 м
~ 8 мин
Арендная плата в месяц 920 833 ₽ 17 000 ₽/м² в год С учётом НДС
Характеристики 650 м² 3 этаж Готово к въезду
Преимущества
  • Класс B
  • Пешком от метро
  • Кондиционирование и вентиляция
  • Свой паркинг

Сдается в долгосрочную прямую аренду помещение под офис класса B общей площадью 650 квадр. метров в бизнес-центре... подробнее

Презентация по предложению

Собираете информацию? Получите подробную презентацию в удобном формате!

ВОЗМОЖНО ОСВОБОЖДЕНИЕ ID: 113952 Рейтинг6.8 КлассB

Москва, Большая Новодмитровская улица, 23 с5

Дмитровская → 674 м
~ 7 мин
Арендная плата в месяц 762 500 ₽ 15 000 ₽/м² в год С учётом НДС
Характеристики 610 м² 5 этаж Готово к въезду
Преимущества
  • Класс B
  • Пешком от метро
  • Кондиционирование и вентиляция
  • Свой паркинг
  • Несколько провайдеров связи

Предлагаем в долгосрочную аренду помещение под офис класса B площадью 610 кв. метров в бизнес-центре "Панорама на Дмитровской"... подробнее

Презентация по предложению

Собираете информацию? Получите подробную презентацию в удобном формате!

БЕЗ КОМИССИИ ID: 280737 Рейтинг8.0 КлассB

Москва, Башиловская улица, 12

Савеловская → 930 м
~ 9 мин
Арендная плата в месяц 666 667 ₽ 16 000 ₽/м² в год С учётом НДС
Характеристики 500 м² 2 - 4 этаж Готово к въезду
Преимущества
  • Класс B
  • Пешком от метро
  • Кондиционирование и вентиляция
  • Свой паркинг
  • Развитая инфраструктура

Сдается в долгосрочную аренду помещение под офис класса B площадью 500 квадратных метров в бизнес-центре... подробнее

Презентация по предложению

Собираете информацию? Получите подробную презентацию в удобном формате!

Посмотреть все похожие предложения
Отнеситесь рационально к процессу поиска нового офиса!

Просто ответьте на 3 вопроса, и наши специалисты сами предложат оптимальные варианты под ваш бюджет

.