8.2

Виртуальный тур

Смотреть все фото
БЕЗ КОМИССИИ ID: 1324373 Рейтинг7.5 КлассB+
Бизнес-центр «МирЛанд»

Аренда офиса 714 м²

Москва, 2-я Хуторская улица, 38А

Дмитровская → 882 м
~ 9 мин
Арендная плата в месяц 1 368 500 ₽ 23 000 ₽/м² в год С учётом НДС

Презентация по предложению

Собираете информацию? Получите подробную презентацию в удобном формате!

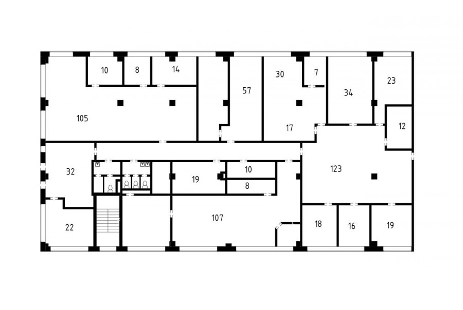
Площадь 714 м²
Состояние Готово к въезду
Планировка Кабинетная
Этаж 3

Описание

Преимущества
  • Класс B+
  • Пешком от метро
  • Кондиционирование и вентиляция
  • Свой паркинг
  • Несколько провайдеров связи
  • Развитая инфраструктура
Предлагаем в долгосрочную аренду офисный блок класса B+ площадью 714 квадр. метров в бизнес-центре "МирЛанд".

Москва, САО, 2-я Хуторская улица, 38А

Удобная локация здания:
- Автомобиль: близость транспортных магистралей, таких как Дмитровское шоссе, Ленинградский проспект, Третье Транспортное Кольцо, Бутырская улица и других.
- Возможность аренды парковочных мест.
- Ближайшее метро: от метро "Дмитровская" всего 9 мин пешком

Офис класса B+:
- Помещение готово к въезду
- Вентиляция: Приточно-вытяжная вентиляция
- Кондиционирование: центральное
- Круглосуточная охрана и видеонаблюдение
- Развитая инфраструктура внутри здания

Возможность заключения контракта в соответствии с 44ФЗ по госзакупкам.

Если данное предложение подходит Вашему запросу:

1. Мы отправим Вам подробную презентацию с планировкой и фотографиями в течение 10 минут после звонка, чтобы Вы могли поделиться информацией с руководством или с коллегами.
2. Задайте любые вопросы менеджеру по телефону, готовы обсуждать любые предложения по финансовым условиям договора аренды.
3.

Вы можете позвонить нам в любое время. Мы ответим на Ваши вопросы по будням до 19:00, а поздно вечером или в выходные зафиксируем Ваш контакт и перезвоним в рабочее время.

Коммерческие условия

Арендная плата 1 368 500 ₽
Ставка арендной платы 23 000 ₽ м²/год
Эксплуатационные расходы Включены в ставку
Налоги С учётом НДС
Тип договора Прямая аренда
Срок договора Долгосрочный
Размер платежей 1 месяц
Обеспечительный платеж 1 месяц
Статус Сдан

О бизнес-центре

Класс B+
Этажность 9
Лифты Есть
Общая площадь 80 000 м²
Год постройки 2005
Паркинг Наземный
Вентиляция приточно-вытяжная
Кондиционирование центральное
Телекоммуникации Интернет/Телефония

Расположение

Подробная презентацию по предложению

Собираете информацию? Получите подробную презентацию в удобном формате, чтобы обсудить вариант с коллегами или переслать руководству!

Похожие предложения в других зданиях

БЕЗ КОМИССИИ ID: 1380308 Рейтинг6.5 КлассB

Москва, 2-я Хуторская улица, 38А с1

Дмитровская → 877 м
~ 9 мин
Арендная плата в месяц 1 557 833 ₽ 26 000 ₽/м² в год С учётом НДС
Характеристики 719 м² 4 - 6 этаж Готово к въезду
Преимущества
  • Класс B
  • Пешком от метро
  • Кондиционирование и вентиляция
  • Свой паркинг
  • Несколько провайдеров связи

Сдается в прямую аренду офис класса B общей площадью 719 квадр. метров в недавно отреконструированном бизнес-центре "Башиловский Двор"... подробнее

Презентация по предложению

Собираете информацию? Получите подробную презентацию в удобном формате!

БЕЗ КОМИССИИ ID: 1380307 Рейтинг6.5 КлассB

Москва, 2-я Хуторская улица, 38А с1

Дмитровская → 877 м
~ 9 мин
Арендная плата в месяц 1 343 333 ₽ 26 000 ₽/м² в год С учётом НДС
Характеристики 620 м² 2 - 4 этаж Готово к въезду
Преимущества
  • Класс B
  • Пешком от метро
  • Кондиционирование и вентиляция
  • Свой паркинг
  • Несколько провайдеров связи

Сдается в прямую аренду офисное помещение класса B общей площадью 620 квадратных метров в недавно отреконструированном бизнес-центре "Башиловский Двор"... подробнее

Презентация по предложению

Собираете информацию? Получите подробную презентацию в удобном формате!

БЕЗ КОМИССИИ ID: 1128766 Рейтинг7.6 КлассB+

Москва, Тимирязевская улица, 1

Дмитровская → 758 м
~ 8 мин
Арендная плата в месяц 1 162 333 ₽ 22 000 ₽/м² в год С учётом НДС
Характеристики 634 м² 3 этаж Готово к въезду
Преимущества
  • Класс B+
  • Пешком от метро
  • Кондиционирование и вентиляция
  • Свой паркинг
  • Развитая инфраструктура

Предлагается в прямую аренду офисный блок класса B+ площадью 634 квадр. метров в бизнес-центре "Премьер"... подробнее

Презентация по предложению

Собираете информацию? Получите подробную презентацию в удобном формате!

БЕЗ КОМИССИИ ID: 193963 Рейтинг5.9 КлассB

Москва, улица Юннатов, 18

Петровский парк → 1.55 км
~ 15 мин
Арендная плата в месяц 1 366 667 ₽ 20 500 ₽/м² в год С учётом НДС
Характеристики 800 м² 2 - 4 этаж Готово к въезду
Преимущества
  • Класс B
  • Пешком от метро
  • Кондиционирование и вентиляция
  • Свой паркинг
  • Развитая инфраструктура

Сдаем в долгосрочную прямую аренду офисное помещение класса B общей площадью 800 квадр. метров в бизнес-центре... подробнее

Презентация по предложению

Собираете информацию? Получите подробную презентацию в удобном формате!

БЕЗ КОМИССИИ ID: 208825 Рейтинг8.7 КлассА

Москва, Бутырская улица, 77

Дмитровская → 464 м
~ 5 мин
Арендная плата в месяц 1 298 333 ₽ 20 000 ₽/м² в год С учётом НДС
Характеристики 779 м² 4 - 5 этаж Готово к въезду
Преимущества
  • Класс А
  • Пешком от метро
  • Кондиционирование и вентиляция
  • Свой паркинг
  • Развитая инфраструктура

Сдается в долгосрочную аренду офис класса А площадью 779 кв. метров в бизнес-центре "Диагональ Хаус"... подробнее

Презентация по предложению

Собираете информацию? Получите подробную презентацию в удобном формате!

Посмотреть все похожие предложения
Отнеситесь рационально к процессу поиска нового офиса!

Просто ответьте на 3 вопроса, и наши специалисты сами предложат оптимальные варианты под ваш бюджет

.