8.2

Виртуальный тур

Смотреть все фото
БЕЗ КОМИССИИ ID: 1288148 Рейтинг7.5 КлассB+
Бизнес-центр «МирЛанд»

Аренда офиса 794 м²

Москва, 2-я Хуторская улица, 38А

Дмитровская → 882 м
~ 9 мин
Арендная плата в месяц 1 164 500 ₽ 17 600 ₽/м² в год С учётом НДС

Презентация по предложению

Собираете информацию? Получите подробную презентацию в удобном формате!

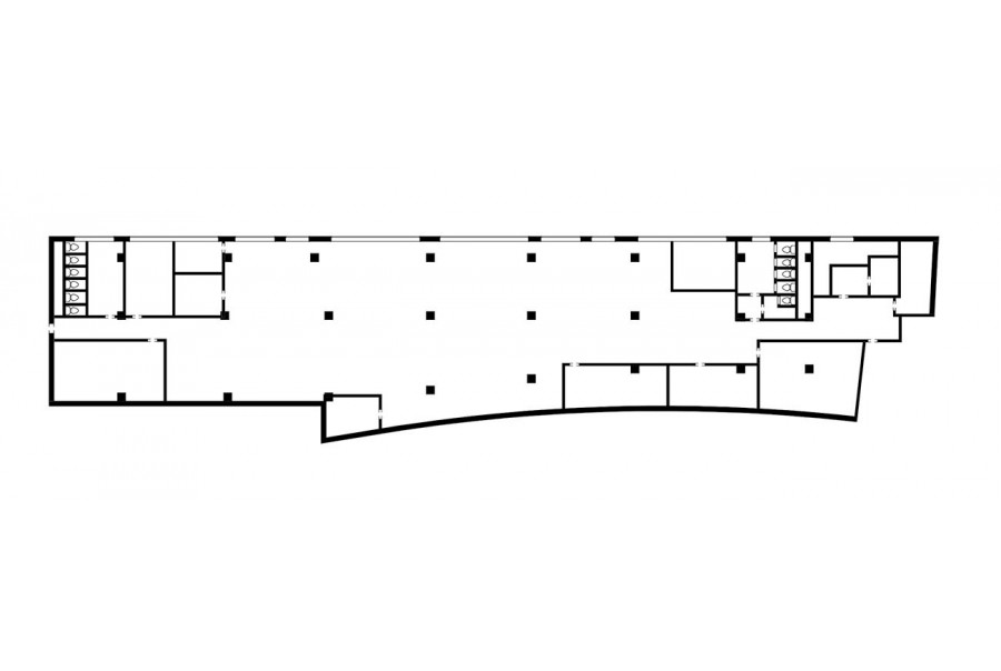
Площадь 794 м²
Состояние Готово к въезду
Планировка Смешанная
Этаж 2

Описание

Преимущества
  • Класс B+
  • Пешком от метро
  • Кондиционирование и вентиляция
  • Свой паркинг
  • Несколько провайдеров связи
  • Развитая инфраструктура
Предлагается в долгосрочную аренду помещение под офис класса B+ площадью 794 квадратных метров в бизнес-центре "МирЛанд".

Москва, САО, 2-я Хуторская улица, 38А

Удобная локация здания:
- Автомобиль: близость транспортных магистралей, таких как Третье Транспортное Кольцо, Ленинградский проспект, Дмитровское шоссе, Бутырская улица и других.
- Возможность аренды парковочных мест.
- Ближайшее метро: от метро "Дмитровская" всего 9 мин пешком

Офис класса B+:
- Помещение с отделкой, готово к въезду
- Вентиляция: Приточно-вытяжная вентиляция
- Кондиционирование: центральное
- Круглосуточная охрана и видеонаблюдение
- Развитая инфраструктура внутри здания

Возможность заключения контракта в соответствии с 44ФЗ по госзакупкам.

Что еще можно узнать о предложении:

1. Мы подготовили презентацию с информацией о помещении, фотографиями и планировкой, чтобы Вы могли поделиться ей с коллегами или руководством. Попросите об этом нашего менеджера по телефону в объявлении.
2. Задайте любые вопросы менеджеру по телефону, готовы обсуждать любые предложения по финансовым условиям договора аренды.
3.

Звоните нам в любое время. По будням мы сможем ответить на Ваши вопросы до 19:00. В выходные или вечернее время мы передадим Ваш контакт нашему менеджеру по аренде.

Коммерческие условия

Арендная плата 1 058 670 ₽
Ставка арендной платы 17 600 ₽ м²/год
Эксплуатационные расходы Включены в ставку
Налоги С учётом НДС
Тип договора Прямая аренда
Срок договора от 11 месяцев
Размер платежей 1 месяц
Обеспечительный платеж 1 месяц
Статус Сдан

О бизнес-центре

Класс B+
Этажность 9
Лифты Есть
Общая площадь 80 000 м²
Год постройки 2005
Паркинг Наземный
Вентиляция приточно-вытяжная
Кондиционирование центральное
Телекоммуникации Интернет/Телефония

Расположение

Подробная презентацию по предложению

Собираете информацию? Получите подробную презентацию в удобном формате, чтобы обсудить вариант с коллегами или переслать руководству!

Похожие предложения в других зданиях

БЕЗ КОМИССИИ ID: 146001 Рейтинг7.6 КлассB+

Москва, Тимирязевская улица, 1

Дмитровская → 758 м
~ 8 мин
Арендная плата в месяц 1 363 375 ₽ 19 500 ₽/м² в год С учётом НДС
Характеристики 839 м² 6 - 7 этаж Готово к въезду
Преимущества
  • Класс B+
  • Пешком от метро
  • Кондиционирование и вентиляция
  • Свой паркинг
  • Развитая инфраструктура

Предлагаем в долгосрочную прямую аренду офис класса B+ общей площадью 839 квадр. метров в бизнес-центре "Премьер"... подробнее

Презентация по предложению

Собираете информацию? Получите подробную презентацию в удобном формате!

БЕЗ КОМИССИИ ID: 208825 Рейтинг8.7 КлассА

Москва, Бутырская улица, 77

Дмитровская → 464 м
~ 5 мин
Арендная плата в месяц 1 298 333 ₽ 20 000 ₽/м² в год С учётом НДС
Характеристики 779 м² 4 - 5 этаж Готово к въезду
Преимущества
  • Класс А
  • Пешком от метро
  • Кондиционирование и вентиляция
  • Свой паркинг
  • Развитая инфраструктура

Сдается в долгосрочную аренду офис класса А площадью 779 кв. метров в бизнес-центре "Диагональ Хаус"... подробнее

Презентация по предложению

Собираете информацию? Получите подробную презентацию в удобном формате!

БЕЗ КОМИССИИ ID: 159472 Рейтинг5.8 КлассB

Москва, Мишина улица, 35

Петровский парк → 769 м
~ 8 мин
Арендная плата в месяц 1 232 500 ₽ 17 000 ₽/м² в год С учётом НДС
Характеристики 870 м² 3 этаж Готово к въезду
Преимущества
  • Класс B
  • Пешком от метро
  • Кондиционирование и вентиляция
  • Свой паркинг

Предлагаем в долгосрочную аренду помещение под офис класса B общей площадью 870 кв. метров в бизнес-центре... подробнее

Презентация по предложению

Собираете информацию? Получите подробную презентацию в удобном формате!

ВОЗМОЖНО ОСВОБОЖДЕНИЕ ID: 69538 Рейтинг6.8 КлассB

Москва, Большая Новодмитровская улица, 23 с5

Дмитровская → 674 м
~ 7 мин
Арендная плата в месяц 1 040 000 ₽ 16 000 ₽/м² в год С учётом НДС
Характеристики 780 м² 2 - 5 этаж Готово к въезду
Преимущества
  • Класс B
  • Пешком от метро
  • Кондиционирование и вентиляция
  • Свой паркинг
  • Несколько провайдеров связи

Предлагается в прямую аренду офисный блок класса B общей площадью 780 квадратных метров в бизнес-центре "Панорама на Дмитровской"... подробнее

Презентация по предложению

Собираете информацию? Получите подробную презентацию в удобном формате!

БЕЗ КОМИССИИ ID: 1244023 Рейтинг7.6 КлассB

Москва, Вятская улица, 35 с4

Савеловская → 817 м
~ 8 мин
Арендная плата в месяц 1 155 000 ₽ 16 500 ₽/м² в год С учётом НДС
Характеристики 840 м² 3 этаж Готово к въезду
Преимущества
  • Класс B
  • Пешком от метро
  • Кондиционирование и вентиляция
  • Свой паркинг
  • Развитая инфраструктура

Предлагаем в долгосрочную прямую аренду помещение под офис класса B общей площадью 840 кв.м в бизнес-центре "Вятка"... подробнее

>

Виртуальный тур

Презентация по предложению

Собираете информацию? Получите подробную презентацию в удобном формате!

Посмотреть все похожие предложения
Отнеситесь рационально к процессу поиска нового офиса!

Просто ответьте на 3 вопроса, и наши специалисты сами предложат оптимальные варианты под ваш бюджет

.