8.2
Смотреть все фото
БЕЗ КОМИССИИ ID: 1376056 Рейтинг9.2 КлассА
Бизнес-центр «Моховая»

Аренда офиса 308 м²

Москва, улица Воздвиженка, 4/7 с2

Библиотека имени Ленина → 423 м
~ 4 мин
Арендная плата в месяц 2 442 400 ₽ 95 200 ₽/м² в год С учётом НДС

Презентация по предложению

Собираете информацию? Получите подробную презентацию в удобном формате!

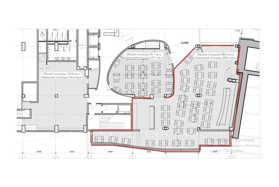
Площадь 308 м²
Состояние Готово к въезду
Планировка Смешанная
Этаж -1

Описание

Преимущества
  • Класс А
  • Пешком от метро
  • Кондиционирование и вентиляция
  • Свой паркинг
Предлагаем в прямую аренду офисное помещение класса А площадью 308 кв. метров в историческом бизнес-центре "Моховая".

7 с2

Удобное расположение в пределах Садового кольца:
- Возможность аренды парковочных мест.
- Ближайшее метро: от метро "Библиотека имени Ленина" всего 6 мин пешком

Офис класса А:
- Офис с отделкой, полностью готов к аренде
- Вентиляция: Приточно-вытяжная вентиляция
- Кондиционирование: центральное
- Презентабельный центральный ресепшн
- Круглосуточная охрана и видеонаблюдение

Возможность заключения контракта в соответствии с 44ФЗ по госзакупкам.

Что еще можно узнать о предложении:

1. Получите презентацию в течение 10 минут в Whatsapp или на почту с фотографиями и планировкой, чтобы обсудить данный вариант с коллегами или переслать руководству. Для этого позвоните по телефону, указанному в объявлении.
2. Мы готовы ответить на любые Ваши вопросы о помещении и коммерческих условиях аренды.
3. Покажем помещение в удобное для Вас время с менеджером в здании, при необходимости подготовим виртуальный тур.

Вы можете позвонить нам в любое время. Мы ответим на Ваши вопросы по будням до 19:00, а поздно вечером или в выходные зафиксируем Ваш контакт и перезвоним в рабочее время.

Коммерческие условия

Арендная плата 2 442 440 ₽
Ставка арендной платы 66 000 ₽ м²/год
Эксплуатационные расходы 12 000 ₽
Налоги Без НДС
Тип договора Прямая аренда
Срок договора от 11 месяцев
Размер платежей 1 месяц
Обеспечительный платеж 2 месяц
Статус Свободен

О бизнес-центре

Класс А
Этажность 8
Лифты Есть
Общая площадь 17 000 м²
Год постройки 1899
Паркинг Подземный
Вентиляция приточно-вытяжная
Кондиционирование центральное
Телекоммуникации Интернет/Телефония

Расположение

Подробная презентацию по предложению

Собираете информацию? Получите подробную презентацию в удобном формате, чтобы обсудить вариант с коллегами или переслать руководству!

Похожие предложения в других зданиях

БЕЗ КОМИССИИ ID: 1378829 Рейтинг9.5 КлассА

Москва, Романов переулок, 4

Александровский сад → 392 м
~ 5 мин
Арендная плата в месяц 2 745 000 ₽ 109 800 ₽/м² в год С учётом НДС
Характеристики 300 м² 1 этаж Под отделку
Преимущества
  • Класс А
  • Пешком от метро
  • Кондиционирование и вентиляция
  • Свой паркинг
  • Развитая инфраструктура

Сдается в долгосрочную прямую аренду офисный блок класса А площадью 300 квадр. метров в бизнес-центре "Романов двор"... подробнее

Презентация по предложению

Собираете информацию? Получите подробную презентацию в удобном формате!

БЕЗ КОМИССИИ ID: 266935 Рейтинг9.3 КлассB

Москва, улица Знаменка, 9 с1

Боровицкая → 294 м
~ 3 мин
Арендная плата в месяц 1 475 017 ₽ 65 800 ₽/м² в год С учётом НДС
Характеристики 269 м² 4 этаж Готово к въезду
Преимущества
  • Класс B
  • Пешком от метро
  • Кондиционирование и вентиляция
  • Свой паркинг

Сдаем в прямую аренду офисный блок класса B площадью 269 кв. метров в бизнес-центре... подробнее

Презентация по предложению

Собираете информацию? Получите подробную презентацию в удобном формате!

БЕЗ КОМИССИИ ID: 1268780 Рейтинг8.9 КлассА

Москва, Газетный переулок, 17 с2

Охотный Ряд → 398 м
~ 4 мин
Арендная плата в месяц 1 643 688 ₽ 68 200 ₽/м² в год С учётом НДС
Характеристики 289 м² 3 этаж Готово к въезду
Преимущества
  • Класс А
  • Пешком от метро
  • Кондиционирование и вентиляция
  • Свой паркинг
  • Несколько провайдеров связи

Предлагается в прямую аренду помещение под офис класса А общей площадью 289 кв. метров в бизнес-центре... подробнее

>

Виртуальный тур

Презентация по предложению

Собираете информацию? Получите подробную презентацию в удобном формате!

БЕЗ КОМИССИИ ID: 1299356 Рейтинг7.7 КлассB+

Москва, Калашный переулок, 12 с2

Арбатская → 490 м
~ 6 мин
Арендная плата в месяц 1 552 950 ₽ 64 300 ₽/м² в год С учётом НДС
Характеристики 290 м² 1 этаж Готово к въезду
Преимущества
  • Класс B+
  • Пешком от метро
  • Кондиционирование и вентиляция

Сдается в аренду офисный блок класса B+ общей площадью 290 квадратных метров в бизнес-центре... подробнее

Презентация по предложению

Собираете информацию? Получите подробную презентацию в удобном формате!

БЕЗ КОМИССИИ ID: 113268 Рейтинг8.2 КлассА

Москва, улица Арбат, 6/2

Арбатская → 397 м
~ 5 мин
Арендная плата в месяц 1 895 833 ₽ 65 000 ₽/м² в год С учётом НДС
Характеристики 350 м² 1 - 2 этаж Под отделку
Преимущества
  • Класс А
  • Пешком от метро
  • Кондиционирование и вентиляция

Предлагаем в долгосрочную прямую аренду офисный блок класса А общей площадью 350 кв. метров в историческом недавно отреконструированном бизнес-центре... подробнее

Презентация по предложению

Собираете информацию? Получите подробную презентацию в удобном формате!

Посмотреть все похожие предложения
Отнеситесь рационально к процессу поиска нового офиса!

Просто ответьте на 3 вопроса, и наши специалисты сами предложат оптимальные варианты под ваш бюджет

.