8.2

Виртуальный тур

Смотреть все фото
БЕЗ КОМИССИИ ID: 1242939 Рейтинг9.2 КлассА
Бизнес-центр «Моховая»

Аренда офиса 840 м²

Москва, улица Воздвиженка, 4/7 с2

Библиотека имени Ленина → 423 м
~ 4 мин
Арендная плата в месяц 5 542 500 ₽ 79 200 ₽/м² в год С учётом НДС

Презентация по предложению

Собираете информацию? Получите подробную презентацию в удобном формате!

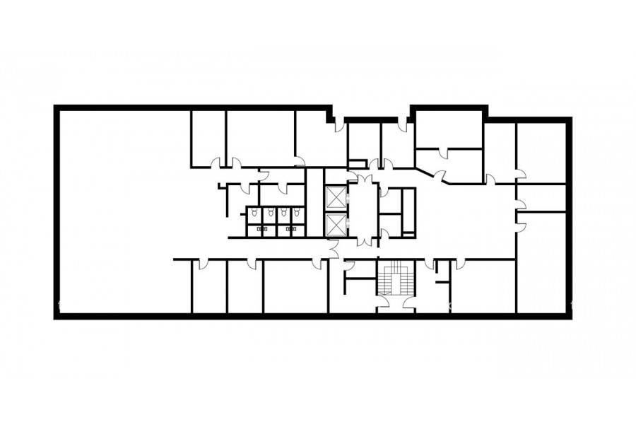
Площадь 840 м²
Состояние Готово к въезду
Планировка Смешанная
Этаж 8

Описание

Преимущества
  • Класс А
  • Пешком от метро
  • Кондиционирование и вентиляция
  • Свой паркинг
Сдается в долгосрочную аренду помещение под офис класса А площадью 840 квадратных метров в историческом бизнес-центре "Моховая".

Москва, ЦАО, улица Воздвиженка, 4/7 с2

Удобное расположение в пределах Садового кольца:
- Возможность аренды парковочных мест.
- Ближайшее метро: от метро "Библиотека имени Ленина" всего 6 мин пешком

Офис класса А:
- Помещение с отделкой, готово к въезду
- Вентиляция: Приточно-вытяжная вентиляция
- Кондиционирование: центральное
- Презентабельный центральный рецепшн
- Круглосуточная охрана и видеонаблюдение

Возможность заключения контракта в соответствии с 44ФЗ по госзакупкам.

Если данное предложение подходит Вашему запросу:

1. Получите презентацию в течение 10 минут в Whatsapp или на почту с фотографиями и планировкой, чтобы обсудить данный вариант с коллегами или переслать руководству. Для этого позвоните по телефону, указанному в объявлении.
2. Задайте любые вопросы менеджеру по телефону, готовы обсуждать любые предложения по финансовым условиям договора аренды.
3.

Вы можете позвонить нам в любое время. Мы ответим на Ваши вопросы по будням до 19:00, а поздно вечером или в выходные сможем передать Ваш контакт нашему менеджеру.

Коммерческие условия

Арендная плата 5 038 600 ₽
Ставка арендной платы 79 200 ₽ м²/год
Эксплуатационные расходы Включены в ставку
Налоги С учётом НДС
Тип договора Прямая аренда
Срок договора Долгосрочный
Размер платежей 1 месяц
Обеспечительный платеж 2 месяц
Статус Сдан

О бизнес-центре

Класс А
Этажность 8
Лифты Есть
Общая площадь 17 000 м²
Год постройки 1899
Паркинг Подземный
Вентиляция приточно-вытяжная
Кондиционирование центральное
Телекоммуникации Интернет/Телефония

Расположение

Подробная презентацию по предложению

Собираете информацию? Получите подробную презентацию в удобном формате, чтобы обсудить вариант с коллегами или переслать руководству!

Похожие предложения в других зданиях

ВОЗМОЖНО ОСВОБОЖДЕНИЕ ID: 994449 Рейтинг8.4 КлассА

Москва, улица Арбат, 10

Арбатская → 512 м
~ 5 мин
Арендная плата в месяц 5 464 000 ₽ 68 300 ₽/м² в год С учётом НДС
Характеристики 960 м² 2 этаж Готово к въезду
Преимущества
  • Класс А
  • Пешком от метро
  • Кондиционирование и вентиляция
  • Свой паркинг
  • Развитая инфраструктура

Собственник сдает в долгосрочную прямую аренду помещение под офис класса А площадью 960 квадратных метров в бизнес-центре "Мидленд Плаза"... подробнее

>

Виртуальный тур

Презентация по предложению

Собираете информацию? Получите подробную презентацию в удобном формате!

БЕЗ КОМИССИИ ID: 1376695 Рейтинг9.1 КлассА

Москва, Леонтьевский переулок, 25

Тверская → 396 м
~ 5 мин
Арендная плата в месяц 5 250 000 ₽ 75 000 ₽/м² в год С учётом НДС
Характеристики 840 м² 3 этаж Готово к въезду
Преимущества
  • Класс А
  • Пешком от метро
  • Кондиционирование и вентиляция
  • Свой паркинг
  • Несколько провайдеров связи

Предлагается в аренду офисный блок класса А общей площадью 840 кв. метров в недавно отреконструированном бизнес-центре... подробнее

Презентация по предложению

Собираете информацию? Получите подробную презентацию в удобном формате!

БЕЗ КОМИССИИ ID: 1232757 Рейтинг9.3 КлассА

Москва, Гоголевский бульвар, 11

Кропоткинская → 193 м
~ 3 мин
Арендная плата в месяц 5 318 860 ₽ 70 000 ₽/м² в год С учётом НДС
Характеристики 912 м² 5 этаж Готово к въезду
Преимущества
  • Класс А
  • Пешком от метро
  • Кондиционирование и вентиляция
  • Свой паркинг

Сдается в прямую аренду офисное помещение класса А площадью 912 квадратных метров в бизнес-центре "Гоголевский"... подробнее

>

Виртуальный тур

Презентация по предложению

Собираете информацию? Получите подробную презентацию в удобном формате!

БЕЗ КОМИССИИ ID: 1183249 Рейтинг9.3 КлассА

Москва, Гоголевский бульвар, 11

Кропоткинская → 193 м
~ 3 мин
Арендная плата в месяц 4 199 100 ₽ 70 000 ₽/м² в год С учётом НДС
Характеристики 720 м² 3 этаж Готово к въезду
Преимущества
  • Класс А
  • Пешком от метро
  • Кондиционирование и вентиляция
  • Свой паркинг

Предлагаем в прямую аренду помещение под офис класса А общей площадью 720 кв.м в бизнес-центре "Гоголевский"... подробнее

>

Виртуальный тур

Презентация по предложению

Собираете информацию? Получите подробную презентацию в удобном формате!

БЕЗ КОМИССИИ ID: 1328553 Рейтинг7.8 КлассА

Москва, улица Большая Дмитровка, 16 с2

Охотный Ряд → 537 м
~ 5 мин
Арендная плата в месяц 4 692 200 ₽ 69 600 ₽/м² в год С учётом НДС
Характеристики 809 м² 4 - 5 этаж Готово к въезду
Преимущества
  • Класс А
  • Пешком от метро
  • Кондиционирование и вентиляция

Сдается в долгосрочную прямую аренду офис класса А общей площадью 809 квадратных метров в бизнес-центре "Модуль"... подробнее

Презентация по предложению

Собираете информацию? Получите подробную презентацию в удобном формате!

Посмотреть все похожие предложения
Отнеситесь рационально к процессу поиска нового офиса!

Просто ответьте на 3 вопроса, и наши специалисты сами предложат оптимальные варианты под ваш бюджет

.