8.2
Смотреть все фото
БЕЗ КОМИССИИ ID: 1284725 Рейтинг8.6 КлассB+

Москва, Воронцовская улица, 17

Марксистская → 389 м
~ 4 мин
Арендная плата в месяц 5 375 800 ₽ 30 900 ₽/м² в год С учётом НДС

Презентация по предложению

Собираете информацию? Получите подробную презентацию в удобном формате!

Площадь 2 087 м²
Состояние Готово к въезду
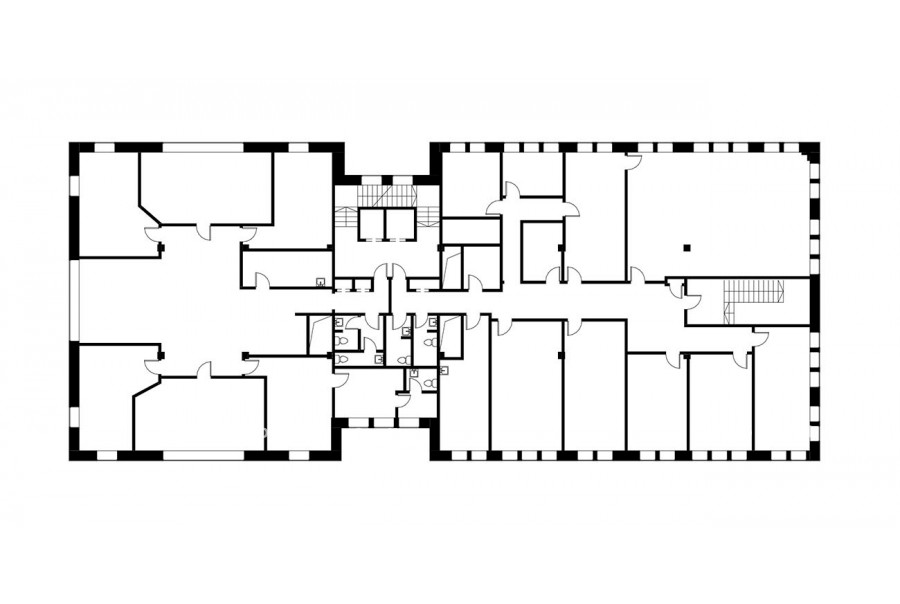
Планировка Смешанная
Этаж 4

Описание

Преимущества
  • Класс B+
  • Пешком от метро
  • Кондиционирование и вентиляция
  • Свой паркинг
Собственник сдает в долгосрочную прямую аренду помещение под офис класса B+ площадью 2087 кв.м в бизнес-центре "Мосэнка Плаза 6".

Москва, ЦАО, Воронцовская улица, 17

Удобное расположение здания для всех видов транспорта:
- Автомобиль: близость транспортных магистралей, таких как Садовое Кольцо, Волгоградский проспект и других.
- Возможность аренды парковочных мест.
- Ближайшее метро: от метро "Марксистская" всего 4 мин пешком

Офис класса B+:
- Помещение готово к въезду
- Вентиляция: Приточно-вытяжная вентиляция
- Кондиционирование: центральное


Если предложение предварительно Вам подходит:

1. Мы подготовили презентацию с информацией о помещении, фотографиями и планировкой, чтобы Вы могли поделиться ей с коллегами или руководством. Попросите об этом нашего менеджера по телефону в объявлении.
2. Задайте любые вопросы менеджеру по телефону, готовы обсуждать любые предложения по финансовым условиям договора аренды.
3. Проводим показы ежедневно, договоримся на удобное для Вас время. Можем организовать виртуальный тур по офисному блоку.

Звоните нам в любое время. По будням мы сможем ответить на Ваши вопросы до 19:00. В выходные или вечернее время мы передадим Ваш контакт нашему менеджеру по аренде.

Коммерческие условия

Арендная плата 4 887 060 ₽
Ставка арендной платы 30 900 ₽ м²/год
Эксплуатационные расходы Включены в ставку
Налоги С учётом НДС
Тип договора Прямая аренда
Срок договора от 11 месяцев
Размер платежей 1 месяц
Обеспечительный платеж 1 месяц
Статус Сдан

О бизнес-центре

Класс B+
Этажность 4
Лифты Есть
Общая площадь 3 015 м²
Год постройки 1995
Паркинг Подземный
Вентиляция приточно-вытяжная
Кондиционирование центральное
Телекоммуникации Интернет/Телефония

Расположение

Подробная презентацию по предложению

Собираете информацию? Получите подробную презентацию в удобном формате, чтобы обсудить вариант с коллегами или переслать руководству!

Похожие предложения в других зданиях

БЕЗ КОМИССИИ ID: 343474 Рейтинг7.2 КлассB

Москва, Таганская улица, 9

Марксистская → 264 м
~ 3 мин
Арендная плата в месяц 4 616 667 ₽ 27 700 ₽/м² в год С учётом НДС
Характеристики 2 000 м² -1 - 4 этаж Готово к въезду
Преимущества
  • Класс B
  • Пешком от метро

Собственник сдает в долгосрочную аренду офисный блок класса B общей площадью 2000 кв. метров в бизнес-центре... подробнее

Презентация по предложению

Собираете информацию? Получите подробную презентацию в удобном формате!

БЕЗ КОМИССИИ ID: 1280827 Рейтинг8.6 КлассА

Москва, Таганская улица, 17-23

Марксистская → 503 м
~ 5 мин
Арендная плата в месяц 5 221 214 ₽ 30 900 ₽/м² в год С учётом НДС
Характеристики 2 027 м² 4 - 8 этаж Готово к въезду
Преимущества
  • Класс А
  • Пешком от метро
  • Кондиционирование и вентиляция
  • Свой паркинг

Собственник сдает в прямую аренду офис класса А общей площадью 2027 кв. метров в бизнес-центре "Мосэнка Парк Тауэрс"... подробнее

Презентация по предложению

Собираете информацию? Получите подробную презентацию в удобном формате!

БЕЗ КОМИССИИ ID: 344271 Рейтинг7.1 КлассB

Москва, Большой Дровяной переулок, 7/9 с1

Таганская → 323 м
~ 3 мин
Арендная плата в месяц 5 392 333 ₽ 28 000 ₽/м² в год С учётом НДС
Характеристики 2 311 м² -1 - 4 этаж Готово к въезду
Преимущества
  • Класс B
  • Пешком от метро
  • Кондиционирование и вентиляция
  • Развитая инфраструктура

Собственник сдает в долгосрочную прямую аренду офисное помещение класса B общей площадью 2311 квадр. метров в бизнес-центре "Большой Дровяной 7 9 с1"... подробнее

Презентация по предложению

Собираете информацию? Получите подробную презентацию в удобном формате!

БЕЗ КОМИССИИ ID: 56258 Рейтинг5.9 КлассB+

Москва, Садовническая улица, 71

Павелецкая → 838 м
~ 8 мин
Арендная плата в месяц 4 550 000 ₽ 30 000 ₽/м² в год С учётом НДС
Характеристики 1 820 м² 1 - 4 этаж Готово к въезду
Преимущества
  • Класс B+
  • Пешком от метро
  • Кондиционирование и вентиляция

Собственник сдает в прямую аренду офисное помещение класса B+ общей площадью 1820 кв.м в бизнес-центре... подробнее

Презентация по предложению

Собираете информацию? Получите подробную презентацию в удобном формате!

БЕЗ КОМИССИИ ID: 1318198 Рейтинг7.4 КлассА

Москва, Николоямская улица, 11 с2

Таганская → 1.04 км
~ 10 мин
Арендная плата в месяц 7 930 000 ₽ 47 600 ₽/м² в год С учётом НДС
Характеристики 2 000 м² 6 - 7 этаж Под отделку
Преимущества
  • Класс А
  • Пешком от метро
  • Свой паркинг

Предлагаем в долгосрочную аренду офис класса А общей площадью 2000 квадратных метров в бизнес-центре "Берников"... подробнее

Презентация по предложению

Собираете информацию? Получите подробную презентацию в удобном формате!

Посмотреть все похожие предложения
Отнеситесь рационально к процессу поиска нового офиса!

Просто ответьте на 3 вопроса, и наши специалисты сами предложат оптимальные варианты под ваш бюджет

.