8.2
Смотреть все фото
БЕЗ КОМИССИИ ID: 307179 Рейтинг7.6 КлассB
Бизнес-центр «Москвич»

Аренда офиса 7123 м²

Москва, Волгоградский проспект, 42 к8

Текстильщики → 748 м
~ 7 мин
Арендная плата в месяц 8 191 400 ₽ 13 800 ₽/м² в год С учётом НДС

Презентация по предложению

Собираете информацию? Получите подробную презентацию в удобном формате!

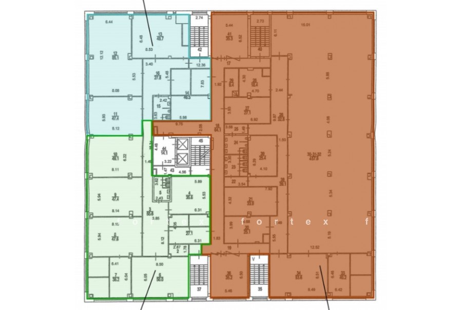
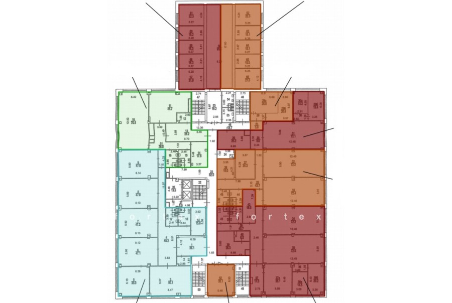
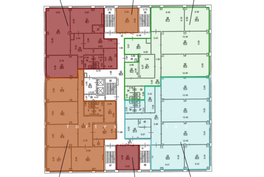
Площадь 7 123 м²
Состояние Готово к въезду
Планировка Кабинетная
Этаж 1 - 4

Описание

Преимущества
  • Класс B
  • Пешком от метро
  • Кондиционирование и вентиляция
  • Свой паркинг
  • Несколько провайдеров связи
Предлагается в долгосрочную прямую аренду офисное помещение класса B общей площадью 7123 квадратных метров в бизнес-центре "Москвич".

Москва, ЮВАО, Волгоградский проспект, 42 к8

Характеристики местоположения:
- Автомобиль: близость транспортных магистралей, таких как Третье Транспортное Кольцо, Волгоградский проспект, Люблинская улица и других.
- Возможность аренды парковочных мест.
- Ближайшее метро: от метро "Текстильщики" можно добраться пешком или на городском транспорте

Офис класса B:
- Офис с отделкой, полностью готов к аренде
- Вентиляция: Приточно-вытяжная вентиляция
- Кондиционирование: центральное
- Круглосуточная охрана и видеонаблюдение

Возможность заключения контракта в соответствии с 44ФЗ по госзакупкам.

Если предложение предварительно Вам подходит:

1. Мы отправим Вам подробную презентацию с планировкой и фотографиями в течение 10 минут после звонка, чтобы Вы могли поделиться информацией с руководством или с коллегами.
2. Задайте любые вопросы менеджеру по телефону, готовы обсуждать любые предложения по финансовым условиям договора аренды.
3. Проводим показы ежедневно, договоримся на удобное для Вас время. Можем организовать виртуальный тур по офисному блоку.

Вы можете позвонить нам в любое время. Мы ответим на Ваши вопросы по будням до 19:00, а поздно вечером или в выходные сможем передать Ваш контакт нашему менеджеру.

Коммерческие условия

Арендная плата 8 191 450 ₽
Ставка арендной платы 13 800 ₽ м²/год
Эксплуатационные расходы Включены в ставку
Налоги С учётом НДС
Тип договора Прямая аренда
Срок договора от 11 месяцев
Размер платежей 1 месяц
Обеспечительный платеж 1 месяц
Статус Сдан

О бизнес-центре

Класс B
Этажность 4
Лифты Есть
Общая площадь 7 100 м²
Год постройки 1971
Паркинг Наземный
Вентиляция приточно-вытяжная
Кондиционирование центральное
Телекоммуникации Интернет/Телефония

Расположение

Подробная презентацию по предложению

Собираете информацию? Получите подробную презентацию в удобном формате, чтобы обсудить вариант с коллегами или переслать руководству!

Похожие предложения в других зданиях

БЕЗ КОМИССИИ ID: 10912 Рейтинг6.6 КлассB+

Москва, Волгоградский проспект, 47

Текстильщики → 652 м
~ 7 мин
Арендная плата в месяц 7 233 333 ₽ 14 000 ₽/м² в год С учётом НДС
Характеристики 6 200 м² 7 этаж Готово к въезду
Преимущества
  • Класс B+
  • Пешком от метро
  • Кондиционирование и вентиляция
  • Свой паркинг
  • Развитая инфраструктура

Сдаем в долгосрочную аренду офисное помещение класса B+ общей площадью 6200 кв. метров в бизнес-центре "Куб"... подробнее

Презентация по предложению

Собираете информацию? Получите подробную презентацию в удобном формате!

БЕЗ КОМИССИИ ID: 221096 Рейтинг5.8 КлассB

Москва, Рязанский проспект, 6 к2

Стахановская → 230 м
~ 2 мин
Арендная плата в месяц 8 125 000 ₽ 15 000 ₽/м² в год С учётом НДС
Характеристики 6 500 м² 1 - 5 этаж Под отделку
Преимущества
  • Класс B
  • Пешком от метро
  • Кондиционирование и вентиляция

Сдаем в долгосрочную аренду офис класса B площадью 6500 кв. метров в бизнес-центре... подробнее

Презентация по предложению

Собираете информацию? Получите подробную презентацию в удобном формате!

БЕЗ КОМИССИИ ID: 269237 Рейтинг6.0 КлассB

Москва, Сибирский проезд, 2к27 с1

Волгоградский проспект → 802 м
~ 8 мин
Арендная плата в месяц 8 240 167 ₽ 14 000 ₽/м² в год С учётом НДС
Характеристики 7 063 м² -1 - 3 этаж Под отделку
Преимущества
  • Класс B
  • Пешком от метро

Предлагаем в прямую аренду офис класса B площадью 7063 кв.м в бизнес-центре... подробнее

Презентация по предложению

Собираете информацию? Получите подробную презентацию в удобном формате!

Посмотреть все похожие предложения
Отнеситесь рационально к процессу поиска нового офиса!

Просто ответьте на 3 вопроса, и наши специалисты сами предложат оптимальные варианты под ваш бюджет

.