8.2

Виртуальный тур

Смотреть все фото
БЕЗ КОМИССИИ ID: 1235317 Рейтинг7.8 КлассB+
Бизнес-центр «Мытная 66»

Аренда офиса 808 м²

Москва, Мытная улица, 66

Тульская → 600 м
~ 6 мин
Арендная плата в месяц 1 898 800 ₽ 28 200 ₽/м² в год С учётом НДС

Презентация по предложению

Собираете информацию? Получите подробную презентацию в удобном формате!

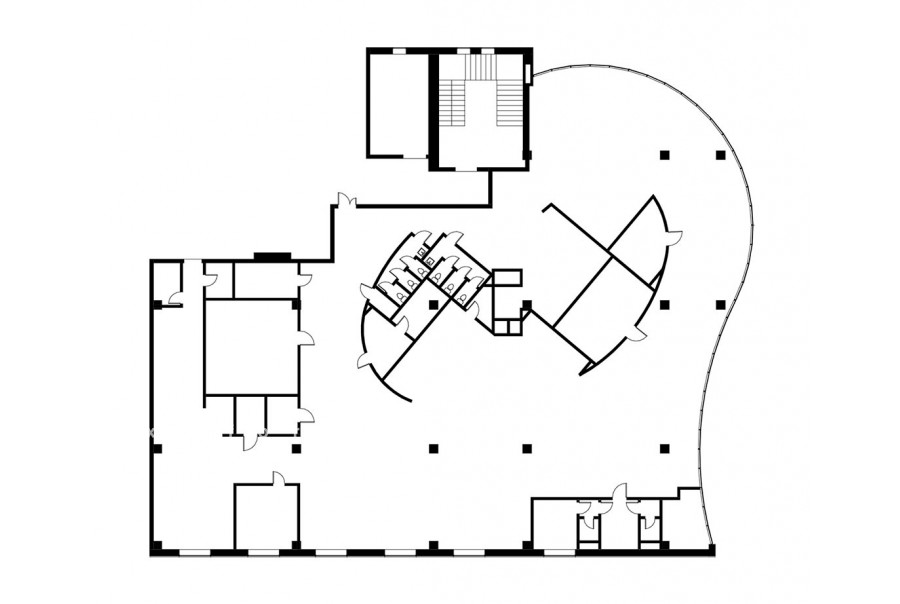
Площадь 808 м²
Состояние Готово к въезду
Планировка Кабинетная
Этаж 3

Описание

Преимущества
  • Класс B+
  • Пешком от метро
  • Кондиционирование и вентиляция
  • Свой паркинг
Предлагается в прямую аренду помещение под офис класса B+ площадью 808 кв.м в бизнес-центре.

Москва, ЮАО, Мытная улица, 66

Удобная локация здания:
- Автомобиль: близость транспортных магистралей, таких как Третье Транспортное Кольцо, Варшавское шоссе и других.
- Возможность аренды парковочных мест.
- Ближайшее метро: от метро "Тульская" всего 6 мин пешком

Офис класса B+:
- Офис с отделкой, полностью готов к аренде
- Вентиляция: Приточно-вытяжная вентиляция
- Кондиционирование: центральное


Если данное предложение подходит Вашему запросу:

1. Мы отправим Вам подробную презентацию с планировкой и фотографиями в течение 10 минут после звонка, чтобы Вы могли поделиться информацией с руководством или с коллегами.
2. Мы готовы ответить на любые Ваши вопросы о помещении и коммерческих условиях аренды.
3.

Вы можете позвонить нам в любое время. Мы ответим на Ваши вопросы по будням до 19:00, а поздно вечером или в выходные сможем передать Ваш контакт нашему менеджеру.

Коммерческие условия

Арендная плата 1 900 010 ₽
Ставка арендной платы 28 200 ₽ м²/год
Эксплуатационные расходы Включены в ставку
Налоги С учётом НДС
Тип договора Прямая аренда
Срок договора от 11 месяцев
Размер платежей 1 месяц
Обеспечительный платеж 1 месяц
Статус Сдан

О бизнес-центре

Класс B+
Этажность 5
Лифты Есть
Общая площадь 12 900 м²
Год постройки 2004
Паркинг Подземный
Вентиляция приточно-вытяжная
Кондиционирование центральное
Телекоммуникации Интернет/Телефония

Расположение

Подробная презентацию по предложению

Собираете информацию? Получите подробную презентацию в удобном формате, чтобы обсудить вариант с коллегами или переслать руководству!

Похожие предложения в других зданиях

БЕЗ КОМИССИИ ID: 1309333 Рейтинг6.8 КлассB

Москва, Городская улица, 8

Тульская → 844 м
~ 8 мин
Арендная плата в месяц 1 653 750 ₽ 26 500 ₽/м² в год Упрощённая система налогообложения
Характеристики 750 м² 4 этаж Готово к въезду
Преимущества
  • Класс B
  • Пешком от метро
  • Кондиционирование и вентиляция
  • Свой паркинг

Предлагаем в прямую аренду помещение под офис класса B общей площадью 750 квадратных метров в бизнес-центре... подробнее

Презентация по предложению

Собираете информацию? Получите подробную презентацию в удобном формате!

БЕЗ КОМИССИИ ID: 1309329 Рейтинг6.8 КлассB

Москва, Городская улица, 8

Тульская → 844 м
~ 8 мин
Арендная плата в месяц 1 653 750 ₽ 26 500 ₽/м² в год Упрощённая система налогообложения
Характеристики 750 м² 1 этаж Готово к въезду
Преимущества
  • Класс B
  • Пешком от метро
  • Кондиционирование и вентиляция
  • Свой паркинг

Сдается в прямую аренду помещение под офис класса B площадью 750 кв. метров в бизнес-центре... подробнее

Презентация по предложению

Собираете информацию? Получите подробную презентацию в удобном формате!

БЕЗ КОМИССИИ ID: 1309336 Рейтинг6.8 КлассB

Москва, Городская улица, 8

Тульская → 844 м
~ 8 мин
Арендная плата в месяц 1 653 750 ₽ 26 500 ₽/м² в год Упрощённая система налогообложения
Характеристики 750 м² 7 этаж Готово к въезду
Преимущества
  • Класс B
  • Пешком от метро
  • Кондиционирование и вентиляция
  • Свой паркинг

Предлагаем в долгосрочную прямую аренду помещение под офис класса B площадью 750 кв.м в бизнес-центре... подробнее

Презентация по предложению

Собираете информацию? Получите подробную презентацию в удобном формате!

БЕЗ КОМИССИИ ID: 1309335 Рейтинг6.8 КлассB

Москва, Городская улица, 8

Тульская → 844 м
~ 8 мин
Арендная плата в месяц 1 653 750 ₽ 26 500 ₽/м² в год Упрощённая система налогообложения
Характеристики 750 м² 6 этаж Готово к въезду
Преимущества
  • Класс B
  • Пешком от метро
  • Кондиционирование и вентиляция
  • Свой паркинг

Предлагаем в долгосрочную прямую аренду офис класса B площадью 750 квадратных метров в бизнес-центре... подробнее

Презентация по предложению

Собираете информацию? Получите подробную презентацию в удобном формате!

БЕЗ КОМИССИИ ID: 1309334 Рейтинг6.8 КлассB

Москва, Городская улица, 8

Тульская → 844 м
~ 8 мин
Арендная плата в месяц 1 653 750 ₽ 26 500 ₽/м² в год Упрощённая система налогообложения
Характеристики 750 м² 5 этаж Готово к въезду
Преимущества
  • Класс B
  • Пешком от метро
  • Кондиционирование и вентиляция
  • Свой паркинг

Сдается в долгосрочную прямую аренду офисное помещение класса B общей площадью 750 кв.м в бизнес-центре... подробнее

Презентация по предложению

Собираете информацию? Получите подробную презентацию в удобном формате!

Посмотреть все похожие предложения
Отнеситесь рационально к процессу поиска нового офиса!

Просто ответьте на 3 вопроса, и наши специалисты сами предложат оптимальные варианты под ваш бюджет

.