8.2
Смотреть все фото
БЕЗ КОМИССИИ ID: 110712 Рейтинг7.3 КлассB

Москва, Малая Семёновская улица, 9 с1

Электрозаводская → 443 м
~ 4 мин
Арендная плата в месяц 1 670 500 ₽ 26 000 ₽/м² в год С учётом НДС

Презентация по предложению

Собираете информацию? Получите подробную презентацию в удобном формате!

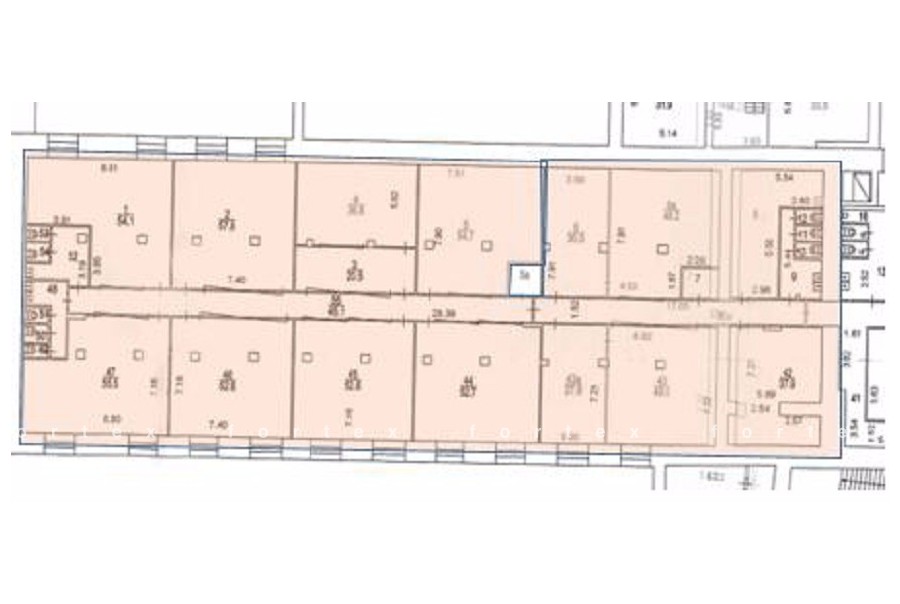
Площадь 771 м²
Состояние Готово к въезду
Планировка Кабинетная
Этаж 2

Описание

Преимущества
  • Класс B
  • Пешком от метро
  • Кондиционирование и вентиляция
  • Свой паркинг
  • Несколько провайдеров связи
Собственник сдает в прямую аренду офисный блок класса B общей площадью 771 кв.м в недавно отреконструированном бизнес-центре "На Семеновской".

Москва, ВАО, Малая Семеновская улица, 9 с1

Удобная локация здания:
- Автомобиль: близость транспортных магистралей, таких как Третье Транспортное Кольцо, Большая Черкизовская улица, Русаковская улица, улица Стромынка и других.
- Возможность аренды парковочных мест.
- Ближайшее метро: от метро "Электрозаводская" всего 8 мин пешком

Офис класса B:
- Помещение с отделкой, готово к въезду
- Вентиляция: Приточно-вытяжная вентиляция
- Кондиционирование: сплит-системы


Если данное предложение подходит Вашему запросу:

1. Мы отправим Вам подробную презентацию с планировкой и фотографиями в течение 10 минут после звонка, чтобы Вы могли поделиться информацией с руководством или с коллегами.
2. Задайте любые вопросы менеджеру по телефону, готовы обсуждать любые предложения по финансовым условиям договора аренды.
3. Оперативно организуем просмотр помещения, договоримся на любое удобное время, подготовим виртуальный тур.

Звоните нам в любое время. По будням мы сможем ответить на Ваши вопросы до 19:00. В выходные или вечернее время мы передадим Ваш контакт нашему менеджеру по аренде.

Коммерческие условия

Арендная плата 674 630 ₽
Ставка арендной платы 26 000 ₽ м²/год
Эксплуатационные расходы Включены в ставку
Налоги С учётом НДС
Тип договора Прямая аренда
Срок договора от 11 месяцев
Размер платежей 1 месяц
Обеспечительный платеж 1 месяц
Статус Сдан

О бизнес-центре

Класс B
Этажность 5
Лифты Нет
Общая площадь 1 000 м²
Паркинг Наземный
Вентиляция приточно-вытяжная
Кондиционирование сплит-системы
Телекоммуникации Интернет/Телефония

Расположение

Подробная презентацию по предложению

Собираете информацию? Получите подробную презентацию в удобном формате, чтобы обсудить вариант с коллегами или переслать руководству!

Похожие предложения в других зданиях

БЕЗ КОМИССИИ ID: 1373575 Рейтинг8.4 КлассB+

Москва, Электрозаводская улица, 27 с1

Преображенская площадь → 841 м
~ 8 мин
Арендная плата в месяц 2 772 196 ₽ 39 600 ₽/м² в год С учётом НДС
Характеристики 839 м² 5 этаж Готово к въезду
Преимущества
  • Класс B+
  • Пешком от метро
  • Кондиционирование и вентиляция
  • Свой паркинг
  • Несколько провайдеров связи

Сдается в долгосрочную аренду офис класса B+ площадью 839 кв. метров в бизнес-центре "ЛеФорт"... подробнее

Презентация по предложению

Собираете информацию? Получите подробную презентацию в удобном формате!

БЕЗ КОМИССИИ ID: 1376335 Рейтинг8.4 КлассB+

Москва, Электрозаводская улица, 27 с1

Преображенская площадь → 841 м
~ 8 мин
Арендная плата в месяц 2 441 779 ₽ 39 600 ₽/м² в год С учётом НДС
Характеристики 739 м² 5 этаж Готово к въезду
Преимущества
  • Класс B+
  • Пешком от метро
  • Кондиционирование и вентиляция
  • Свой паркинг
  • Несколько провайдеров связи

Предлагается в долгосрочную аренду офис класса B+ общей площадью 739 квадратных метров в бизнес-центре "ЛеФорт"... подробнее

Презентация по предложению

Собираете информацию? Получите подробную презентацию в удобном формате!

БЕЗ КОМИССИИ ID: 1284410 Рейтинг6.6 КлассB

Москва, Семёновская площадь, 7

Семеновская → 128 м
~ 1 мин
Арендная плата в месяц 1 649 921 ₽ 23 300 ₽/м² в год С учётом НДС
Характеристики 850 м² 1 - 3 этаж Готово к въезду
Преимущества
  • Класс B
  • Пешком от метро
  • Кондиционирование и вентиляция
  • Свой паркинг
  • Развитая инфраструктура

Сдается в долгосрочную прямую аренду помещение под офис класса B площадью 850 кв.м в недавно отреконструированном бизнес-центре "Семеновский"... подробнее

Презентация по предложению

Собираете информацию? Получите подробную презентацию в удобном формате!

ВОЗМОЖНО ОСВОБОЖДЕНИЕ ID: 1246004 Рейтинг9.6 КлассА

Москва, Преображенская площадь, 8

Преображенская площадь → 74 м
~ 1 мин
Арендная плата в месяц 2 021 433 ₽ 29 800 ₽/м² в год С учётом НДС
Характеристики 814 м² 18 этаж Готово к въезду
Преимущества
  • Класс А
  • Пешком от метро
  • Кондиционирование и вентиляция
  • Свой паркинг
  • Развитая инфраструктура

Собственник сдает в долгосрочную прямую аренду офисное помещение класса А площадью 814 кв. метров в бизнес-центре "Прео 8"... подробнее

>

Виртуальный тур

Презентация по предложению

Собираете информацию? Получите подробную презентацию в удобном формате!

БЕЗ КОМИССИИ ID: 267555 Рейтинг6.3 КлассB

Москва, улица Фридриха Энгельса, 75 с9

Электрозаводская → 1.23 км
~ 12 мин
Арендная плата в месяц 1 429 968 ₽ 24 900 ₽/м² в год С учётом НДС
Характеристики 690 м² 1 - 3 этаж Готово к въезду
Преимущества
  • Класс B
  • Пешком от метро
  • Кондиционирование и вентиляция
  • Свой паркинг

Предлагается в долгосрочную аренду офисное помещение класса B общей площадью 697 кв. метров в бизнес-центре... подробнее

>

Виртуальный тур

Презентация по предложению

Собираете информацию? Получите подробную презентацию в удобном формате!

Посмотреть все похожие предложения
Отнеситесь рационально к процессу поиска нового офиса!

Просто ответьте на 3 вопроса, и наши специалисты сами предложат оптимальные варианты под ваш бюджет

.