8.2

Виртуальный тур

Смотреть все фото
БЕЗ КОМИССИИ ID: 293502 Рейтинг9.1 КлассА

Москва, проспект Андропова, 18 к5

Технопарк → 165 м
~ 2 мин
Арендная плата в месяц 1 268 500 ₽ 43 000 ₽/м² в год С учётом НДС

Презентация по предложению

Собираете информацию? Получите подробную презентацию в удобном формате!

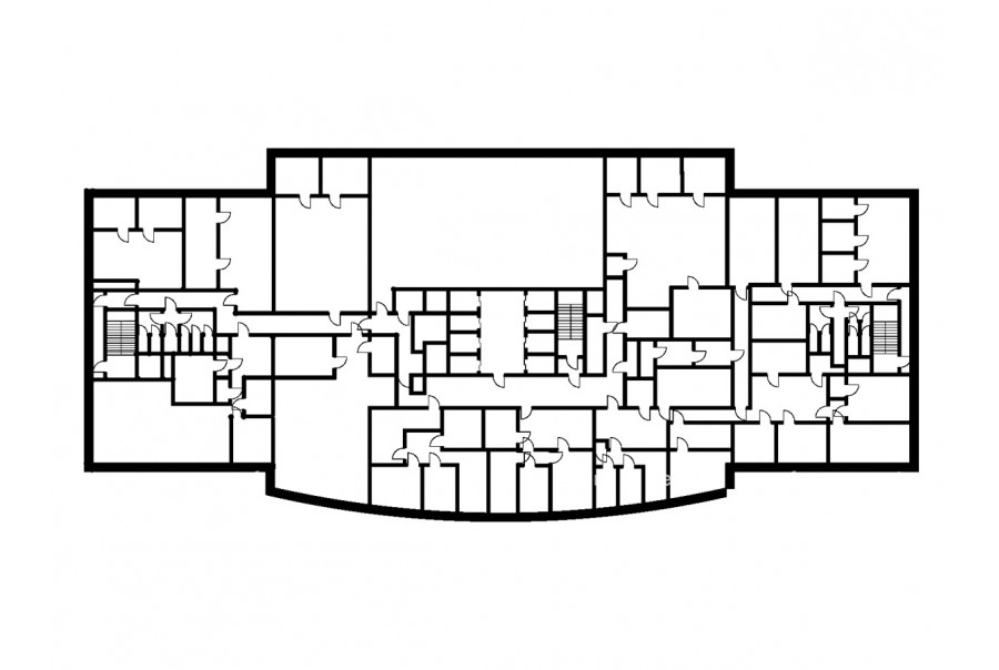
Площадь 354 м²
Состояние Готово к въезду
Планировка Смешанная
Этаж 8

Описание

Преимущества
  • Класс А
  • Пешком от метро
  • Кондиционирование и вентиляция
  • Свой паркинг
  • Развитая инфраструктура
Предлагается в долгосрочную аренду офисный блок класса А площадью 354 квадратных метров в бизнес-центре "Нагатино Айлэнд".

Москва, ЮАО, проспект Андропова, 18 к5

Удобное расположение здания для всех видов транспорта:
- Автомобиль: близость транспортных магистралей, таких как Третье Транспортное Кольцо, Проспект Андропова и других.
- Возможность аренды парковочных мест.
- Ближайшее метро: буквально 2 мин пешком от метро "Технопарк"

Офис класса А:
- Офис с отделкой, полностью готов к аренде
- Вентиляция: Приточно-вытяжная вентиляция
- Кондиционирование: центральное
- Презентабельный центральный ресепшн
- Круглосуточная охрана и видеонаблюдение
- Развитая инфраструктура внутри здания


Если данное предложение подходит Вашему запросу:

1. Мы подготовили презентацию с информацией о помещении, фотографиями и планировкой, чтобы Вы могли поделиться ей с коллегами или руководством. Попросите об этом нашего менеджера по телефону в объявлении.
2. Ответим на любые Ваши вопросы, готовы обсуждать любые предложения по коммерческим условиям аренды помещения.
3.

Звоните нам в любое время. По будням мы сможем ответить на Ваши вопросы до 19:00. В выходные или вечернее время мы передадим Ваш контакт нашему менеджеру по аренде.

Коммерческие условия

Арендная плата 725 700 ₽
Ставка арендной платы 43 000 ₽ м²/год
Эксплуатационные расходы Включены в ставку
Налоги С учётом НДС
Тип договора Прямая аренда
Срок договора от 11 месяцев
Размер платежей 1 месяц
Обеспечительный платеж 1 месяц
Статус Сдан

О бизнес-центре

Класс А
Этажность 20
Лифты Есть
Общая площадь 32 600 м²
Год постройки 2009
Паркинг Наземный крытый
Вентиляция приточно-вытяжная
Кондиционирование центральное
Телекоммуникации Интернет/Телефония

Расположение

Подробная презентацию по предложению

Собираете информацию? Получите подробную презентацию в удобном формате, чтобы обсудить вариант с коллегами или переслать руководству!

Похожие предложения в других зданиях

ВОЗМОЖНО ОСВОБОЖДЕНИЕ ID: 1311138 Рейтинг8.6 КлассА

Москва, Варшавское шоссе, 25А с6

Верхние Котлы → 651 м
~ 8 мин
Арендная плата в месяц 1 313 375 ₽ 39 900 ₽/м² в год С учётом НДС
Характеристики 395 м² 2 этаж Готово к въезду
Преимущества
  • Класс А
  • Пешком от метро
  • Кондиционирование и вентиляция
  • Свой паркинг
  • Несколько провайдеров связи

Предлагаем в долгосрочную прямую аренду офисное помещение класса А площадью 395 квадратных метров в недавно отреконструированном бизнес-центре "Чайка Плаза 10"... подробнее

>

Виртуальный тур

Презентация по предложению

Собираете информацию? Получите подробную презентацию в удобном формате!

БЕЗ КОМИССИИ ID: 1327041 Рейтинг8.3 КлассB+

Москва, Варшавское шоссе, 9

Тульская → 959 м
~ 10 мин
Арендная плата в месяц 1 067 413 ₽ 38 900 ₽/м² в год С учётом НДС
Характеристики 329 м² 1 - 2 этаж Готово к въезду
Преимущества
  • Класс B+
  • Пешком от метро
  • Кондиционирование и вентиляция
  • Свой паркинг
  • Развитая инфраструктура

Сдается в прямую аренду помещение под офис класса B+ общей площадью 329 квадратных метров в историческом недавно отреконструированном бизнес-центре "Даниловская Мануфактура"... подробнее

Презентация по предложению

Собираете информацию? Получите подробную презентацию в удобном формате!

ВОЗМОЖНО ОСВОБОЖДЕНИЕ ID: 887458 Рейтинг8.4 КлассB+

Москва, Каширское шоссе, 3к2 с2

Нагатинская → 1.59 км
~ 16 мин
Арендная плата в месяц 1 051 383 ₽ 39 800 ₽/м² в год С учётом НДС
Характеристики 317 м² 5 этаж Готово к въезду
Преимущества
  • Класс B+
  • Пешком от метро
  • Кондиционирование и вентиляция
  • Свой паркинг
  • Несколько провайдеров связи

Предлагаем в долгосрочную прямую аренду помещение под офис класса B+ общей площадью 317 кв. метров в бизнес-центре "Сириус Парк"... подробнее

>

Виртуальный тур

Презентация по предложению

Собираете информацию? Получите подробную презентацию в удобном формате!

Посмотреть все похожие предложения
Отнеситесь рационально к процессу поиска нового офиса!

Просто ответьте на 3 вопроса, и наши специалисты сами предложат оптимальные варианты под ваш бюджет

.