8.2

Виртуальный тур

Смотреть все фото
БЕЗ КОМИССИИ ID: 1245193 Рейтинг9.1 КлассА

Москва, проспект Андропова, 18 к5

Технопарк → 165 м
~ 2 мин
Арендная плата в месяц 1 327 100 ₽ 31 400 ₽/м² в год С учётом НДС

Презентация по предложению

Собираете информацию? Получите подробную презентацию в удобном формате!

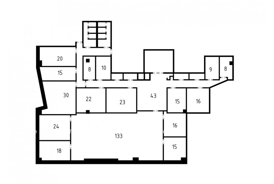
Площадь 508 м²
Состояние Готово к въезду
Планировка Смешанная
Этаж 17

Описание

Преимущества
  • Класс А
  • Пешком от метро
  • Кондиционирование и вентиляция
  • Свой паркинг
  • Развитая инфраструктура
Предлагаем в прямую аренду помещение под офис класса А общей площадью 508 кв.м в бизнес-центре "Нагатино Айлэнд".

Москва, ЮАО, проспект Андропова, 18 к5

Удобное расположение здания для всех видов транспорта:
- Автомобиль: близость транспортных магистралей, таких как Проспект Андропова, Третье Транспортное Кольцо и других.
- Возможность аренды парковочных мест.
- Ближайшее метро: буквально 2 мин пешком от метро "Технопарк"

Офис класса А:
- Помещение готово к въезду
- Вентиляция: Приточно-вытяжная вентиляция
- Кондиционирование: центральное
- Презентабельный центральный ресепшн
- Круглосуточная охрана и видеонаблюдение
- Развитая инфраструктура внутри здания

Возможность заключения контракта в соответствии с 44ФЗ по госзакупкам.

Если предложение предварительно Вам подходит:

1. Получите презентацию в течение 10 минут в Whatsapp или на почту с фотографиями и планировкой, чтобы обсудить данный вариант с коллегами или переслать руководству. Для этого позвоните по телефону, указанному в объявлении.
2. Мы готовы ответить на любые Ваши вопросы о помещении и коммерческих условиях аренды.
3.

Вы можете позвонить нам в любое время. Мы ответим на Ваши вопросы по будням до 19:00, а поздно вечером или в выходные зафиксируем Ваш контакт и перезвоним в рабочее время.

Коммерческие условия

Арендная плата 1 206 500 ₽
Ставка арендной платы 31 400 ₽ м²/год
Эксплуатационные расходы Включены в ставку
Налоги С учётом НДС
Тип договора Прямая аренда
Срок договора Долгосрочный
Размер платежей 1 месяц
Обеспечительный платеж 1 месяц
Статус Сдан

О бизнес-центре

Класс А
Этажность 20
Лифты Есть
Общая площадь 32 600 м²
Год постройки 2009
Паркинг Наземный крытый
Вентиляция приточно-вытяжная
Кондиционирование центральное
Телекоммуникации Интернет/Телефония

Расположение

Подробная презентацию по предложению

Собираете информацию? Получите подробную презентацию в удобном формате, чтобы обсудить вариант с коллегами или переслать руководству!

Похожие предложения в других зданиях

БЕЗ КОМИССИИ ID: 1265421 Рейтинг8.2 КлассB

Москва, проспект Андропова, 11

Технопарк → 1.44 км
~ 14 мин
Арендная плата в месяц 1 397 917 ₽ 33 600 ₽/м² в год С учётом НДС
Характеристики 500 м² 1 - 3 этаж Под отделку
Преимущества
  • Класс B
  • Пешком от метро
  • Кондиционирование и вентиляция

Собственник сдает в долгосрочную аренду офисный блок класса B общей площадью 500 кв. метров в бизнес-центре... подробнее

Презентация по предложению

Собираете информацию? Получите подробную презентацию в удобном формате!

БЕЗ КОМИССИИ ID: 1314135 Рейтинг7.8 КлассB+

Москва, Автозаводская улица, 14

Автозаводская → 756 м
~ 8 мин
Арендная плата в месяц 1 344 583 ₽ 35 000 ₽/м² в год С учётом НДС
Характеристики 461 м² 1 этаж Готово к въезду
Преимущества
  • Класс B+
  • Пешком от метро
  • Кондиционирование и вентиляция
  • Свой паркинг

Предлагаем в прямую аренду офис класса B+ площадью 461 кв. метров в бизнес-центре... подробнее

>

Виртуальный тур

Презентация по предложению

Собираете информацию? Получите подробную презентацию в удобном формате!

БЕЗ КОМИССИИ ID: 205727 Рейтинг6.5 КлассB

Москва, Нагатинская улица, 34

Коломенская → 264 м
~ 3 мин
Арендная плата в месяц 1 361 417 ₽ 31 000 ₽/м² в год С учётом НДС
Характеристики 527 м² 1 этаж Под отделку
Преимущества
  • Класс B
  • Пешком от метро
  • Кондиционирование и вентиляция

Предлагается в прямую аренду офисное помещение класса B общей площадью 527 кв.м в бизнес-центре... подробнее

Презентация по предложению

Собираете информацию? Получите подробную презентацию в удобном формате!

БЕЗ КОМИССИИ ID: 274127 Рейтинг6.5 КлассB

Москва, улица Ленинская Слобода, 21/1

Автозаводская → 810 м
~ 8 мин
Арендная плата в месяц 1 391 667 ₽ 33 400 ₽/м² в год С учётом НДС
Характеристики 500 м² 1 этаж Готово к въезду
Преимущества
  • Класс B
  • Пешком от метро

Сдаем в аренду офисное помещение класса B площадью 500 кв. метров в историческом бизнес-центре... подробнее

Презентация по предложению

Собираете информацию? Получите подробную презентацию в удобном формате!

БЕЗ КОМИССИИ ID: 1378061 Рейтинг7.8 КлассB

Москва, улица Мастеркова, 4

Автозаводская → 69 м
~ 1 мин
Арендная плата в месяц 1 350 000 ₽ 30 000 ₽/м² в год С учётом НДС
Характеристики 540 м² 2 этаж Готово к въезду
Преимущества
  • Класс B
  • Пешком от метро
  • Кондиционирование и вентиляция
  • Свой паркинг
  • Развитая инфраструктура

Сдается в долгосрочную прямую аренду офисное помещение класса B площадью 540 кв. метров в бизнес-центре... подробнее

Презентация по предложению

Собираете информацию? Получите подробную презентацию в удобном формате!

Посмотреть все похожие предложения
Отнеситесь рационально к процессу поиска нового офиса!

Просто ответьте на 3 вопроса, и наши специалисты сами предложат оптимальные варианты под ваш бюджет

.