8.2
Смотреть все фото
БЕЗ КОМИССИИ ID: 150308 Рейтинг6.4 КлассB
Бизнес-центр «Нагатинская 1»

Аренда офиса 2372 м²

Москва, Нагатинская улица, 1

Нагатинская → 136 м
~ 1 мин
Арендная плата в месяц 2 569 700 ₽ 13 000 ₽/м² в год С учётом НДС

Презентация по предложению

Собираете информацию? Получите подробную презентацию в удобном формате!

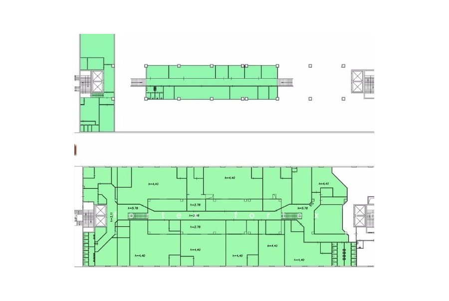
Площадь 2 372 м²
Состояние Готово к въезду
Планировка Смешанная
Этаж 1

Описание

Преимущества
  • Класс B
  • Пешком от метро
  • Кондиционирование и вентиляция
  • Свой паркинг
  • Развитая инфраструктура
Сдается в долгосрочную аренду помещение под офис класса B общей площадью 2372 квадр. метров в бизнес-центре.

Москва, ЮАО, Нагатинская улица, 1

Удобное расположение здания для всех видов транспорта:
- Автомобиль: близость транспортных магистралей, таких как Севастопольский проспект, Варшавское шоссе, Каширское шоссе и других.
- Возможность аренды парковочных мест.
- Ближайшее метро: буквально 1 мин пешком от метро "Нагатинская"

Офис класса B:
- Помещение готово к въезду
- Вентиляция: Приточно-вытяжная вентиляция
- Круглосуточная охрана и видеонаблюдение
- Развитая инфраструктура внутри здания

Возможность заключения контракта в соответствии с 44ФЗ по госзакупкам.

Что еще можно узнать о предложении:

1. Мы подготовили презентацию с информацией о помещении, фотографиями и планировкой, чтобы Вы могли поделиться ей с коллегами или руководством. Попросите об этом нашего менеджера по телефону в объявлении.
2. Мы готовы ответить на любые Ваши вопросы о помещении и коммерческих условиях аренды.
3. Оперативно организуем просмотр помещения, договоримся на любое удобное время, подготовим виртуальный тур.

Звоните нам в любое время. По будням мы сможем ответить на Ваши вопросы до 19:00. В выходные или вечернее время мы передадим Ваш контакт нашему менеджеру по аренде.

Коммерческие условия

Арендная плата 2 569 670 ₽
Ставка арендной платы 13 000 ₽ м²/год
Эксплуатационные расходы Включены в ставку
Налоги С учётом НДС
Тип договора Прямая аренда
Срок договора от 11 месяцев
Размер платежей 1 месяц
Обеспечительный платеж 1 месяц
Статус Сдан

О бизнес-центре

Класс B
Этажность 9
Лифты Есть
Общая площадь 9 000 м²
Год постройки 2000
Паркинг Наземный
Вентиляция приточно-вытяжная
Кондиционирование возможность установки
Телекоммуникации Интернет/Телефония

Расположение

Подробная презентацию по предложению

Собираете информацию? Получите подробную презентацию в удобном формате, чтобы обсудить вариант с коллегами или переслать руководству!

Похожие предложения в других зданиях

БЕЗ КОМИССИИ ID: 306232 Рейтинг7.2 КлассB

Москва, Варшавское шоссе, 33

Верхние Котлы → 489 м
~ 6 мин
Арендная плата в месяц 2 500 000 ₽ 12 000 ₽/м² в год С учётом НДС
Характеристики 2 500 м² 1 этаж Готово к въезду
Преимущества
  • Класс B
  • Пешком от метро
  • Кондиционирование и вентиляция
  • Свой паркинг
  • Развитая инфраструктура

Сдается в долгосрочную аренду офисный блок класса B площадью 2500 квадратных метров в бизнес-центре "Дело"... подробнее

Презентация по предложению

Собираете информацию? Получите подробную презентацию в удобном формате!

БЕЗ КОМИССИИ ID: 11825 Рейтинг6.5 КлассB

Москва, Электролитный проезд, 3

Нагорная → 994 м
~ 10 мин
Арендная плата в месяц 2 708 333 ₽ 13 000 ₽/м² в год С учётом НДС
Характеристики 2 500 м² 5 этаж Готово к въезду
Преимущества
  • Класс B
  • Пешком от метро
  • Кондиционирование и вентиляция
  • Свой паркинг
  • Развитая инфраструктура

Предлагается в долгосрочную аренду офис класса B площадью 2500 квадратных метров в бизнес-центре "Фаворит"... подробнее

Презентация по предложению

Собираете информацию? Получите подробную презентацию в удобном формате!

БЕЗ КОМИССИИ ID: 150762 Рейтинг7.4 КлассB

Москва, Большая Тульская улица, 44

Тульская → 461 м
~ 5 мин
Арендная плата в месяц 3 033 333 ₽ 14 000 ₽/м² в год С учётом НДС
Характеристики 2 600 м² 1 - 4 этаж Готово к въезду
Преимущества
  • Класс B
  • Пешком от метро
  • Кондиционирование и вентиляция
  • Свой паркинг
  • Развитая инфраструктура

Собственник сдает в долгосрочную прямую аренду офисное помещение класса B площадью 2600 квадр. метров в историческом недавно отреконструированном бизнес-центре... подробнее

Презентация по предложению

Собираете информацию? Получите подробную презентацию в удобном формате!

БЕЗ КОМИССИИ ID: 304979 Рейтинг5.5 КлассB

Москва, Новочерёмушкинская улица, 25

Академическая → 1.06 км
~ 11 мин
Арендная плата в месяц 2 633 000 ₽ 12 000 ₽/м² в год С учётом НДС
Характеристики 2 633 м² 2 - 4 этаж Под отделку
Преимущества
  • Класс B
  • Пешком от метро
  • Кондиционирование и вентиляция

Сдаем в долгосрочную прямую аренду офисный блок класса B общей площадью 2633 кв.м в бизнес-центре... подробнее

Презентация по предложению

Собираете информацию? Получите подробную презентацию в удобном формате!

Посмотреть все похожие предложения
Отнеситесь рационально к процессу поиска нового офиса!

Просто ответьте на 3 вопроса, и наши специалисты сами предложат оптимальные варианты под ваш бюджет

.