8.2
Смотреть все фото
БЕЗ КОМИССИИ ID: 1304262 Рейтинг9.3 КлассА
Бизнес-центр «Нахимовский 51»

Аренда офиса 2800 м²

Москва, Нахимовский проспект, 51

Профсоюзная → 337 м
~ 3 мин
Арендная плата в месяц 8 166 700 ₽ 35 000 ₽/м² в год С учётом НДС

Презентация по предложению

Собираете информацию? Получите подробную презентацию в удобном формате!

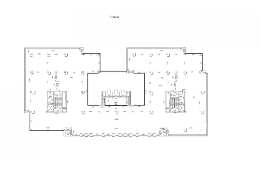
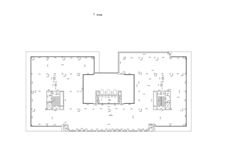
Площадь 2 800 м²
Состояние Под отделку
Планировка Смешанная
Этаж 8 - 9

Описание

Преимущества
  • Класс А
  • Пешком от метро
  • Новое строительство
  • Кондиционирование и вентиляция
  • Свой паркинг
Предлагаем в долгосрочную прямую аренду помещение под офис класса А общей площадью 2800 квадратных метров в современном бизнес-центре.

Москва, ЮЗАО, Нахимовский проспект, 51

Удобное расположение здания для всех видов транспорта:
- Автомобиль: близость транспортных магистралей, таких как Профсоюзная улица, Севастопольский проспект, Ленинский проспект и других.
- Возможность аренды парковочных мест.
- Ближайшее метро: от метро "Профсоюзная" всего 3 мин пешком

Офис класса А:
- Помещение без отделки
- Вентиляция: Приточно-вытяжная вентиляция
- Кондиционирование: центральное


Если данное предложение подходит Вашему запросу:

1. Мы подготовили презентацию с информацией о помещении, фотографиями и планировкой, чтобы Вы могли поделиться ей с коллегами или руководством. Попросите об этом нашего менеджера по телефону в объявлении.
2. Задайте любые вопросы менеджеру по телефону, готовы обсуждать любые предложения по финансовым условиям договора аренды.
3. Оперативно организуем просмотр помещения, договоримся на любое удобное время, подготовим виртуальный тур.

Вы можете позвонить нам в любое время. Мы ответим на Ваши вопросы по будням до 19:00, а поздно вечером или в выходные зафиксируем Ваш контакт и перезвоним в рабочее время.

Коммерческие условия

Арендная плата 8 166 670 ₽
Ставка арендной платы 35 000 ₽ м²/год
Эксплуатационные расходы Включены в ставку
Налоги С учётом НДС
Тип договора Прямая аренда
Срок договора Долгосрочный
Размер платежей 1 месяц
Обеспечительный платеж 2 месяц
Статус Сдан

О бизнес-центре

Класс А
Этажность 10
Лифты Есть
Общая площадь 16 000 м²
Год постройки 2021
Паркинг Наземный
Вентиляция приточно-вытяжная
Кондиционирование центральное
Телекоммуникации Интернет/Телефония

Расположение

Подробная презентацию по предложению

Собираете информацию? Получите подробную презентацию в удобном формате, чтобы обсудить вариант с коллегами или переслать руководству!

Похожие предложения в других зданиях

БЕЗ КОМИССИИ ID: 1281472 Рейтинг9.0 КлассА

Москва, Нахимовский проспект, 58

Профсоюзная → 955 м
~ 10 мин
Арендная плата в месяц 8 423 873 ₽ 34 400 ₽/м² в год С учётом НДС
Характеристики 2 936 м² 5 - 6 этаж Готово к въезду
Преимущества
  • Класс А
  • Пешком от метро
  • Кондиционирование и вентиляция
  • Свой паркинг
  • Несколько провайдеров связи

Предлагаем в долгосрочную аренду офисный блок класса А площадью 2936 квадратных метров в бизнес-центре "iCube"... подробнее

Презентация по предложению

Собираете информацию? Получите подробную презентацию в удобном формате!

БЕЗ КОМИССИИ ID: 1380030 Рейтинг8.4 КлассА

Москва, улица Намёткина, 12А

Калужская → 1.24 км
~ 12 мин
Арендная плата в месяц 8 518 600 ₽ 38 200 ₽/м² в год С учётом НДС
Характеристики 2 676 м² 10 - 11 этаж Готово к въезду
Преимущества
  • Класс А
  • Пешком от метро
  • Кондиционирование и вентиляция
  • Свой паркинг
  • Развитая инфраструктура

Предлагается в долгосрочную аренду офисное помещение класса А площадью 2676 квадратных метров в бизнес-центре "Газойл Плаза"... подробнее

Презентация по предложению

Собираете информацию? Получите подробную презентацию в удобном формате!

БЕЗ КОМИССИИ ID: 1295085 Рейтинг8.0 КлассB+

Москва, Большая Черёмушкинская улица, 13 с4

Крымская → 1.08 км
~ 11 мин
Арендная плата в месяц 8 397 125 ₽ 34 100 ₽/м² в год С учётом НДС
Характеристики 2 955 м² 3 - 4 этаж Готово к въезду
Преимущества
  • Класс B+
  • Пешком от метро
  • Кондиционирование и вентиляция
  • Свой паркинг

Сдается в долгосрочную аренду офисное помещение класса B+ общей площадью 3071 кв.м в недавно отреконструированном бизнес-центре "Березка"... подробнее

Презентация по предложению

Собираете информацию? Получите подробную презентацию в удобном формате!

ВОЗМОЖНО ОСВОБОЖДЕНИЕ ID: 278417 Рейтинг8.5 КлассА

Москва, Херсонская улица, 43 к3

Зюзино → 1.4 км
~ 14 мин
Арендная плата в месяц 7 000 000 ₽ 35 000 ₽/м² в год С учётом НДС
Характеристики 2 400 м² 4 этаж Готово к въезду
Преимущества
  • Класс А
  • Пешком от метро
  • Кондиционирование и вентиляция
  • Свой паркинг

Предлагаем в долгосрочную прямую аренду офисное помещение класса А общей площадью 2400 квадратных метров в бизнес-центре "Газойл Сити"... подробнее

Презентация по предложению

Собираете информацию? Получите подробную презентацию в удобном формате!

БЕЗ КОМИССИИ ID: 267412 Рейтинг8.2 КлассB+

Москва, Научный проезд, 17

Калужская → 1.34 км
~ 13 мин
Арендная плата в месяц 7 370 833 ₽ 30 500 ₽/м² в год С учётом НДС
Характеристики 2 900 м² 7 этаж Готово к въезду
Преимущества
  • Класс B+
  • Пешком от метро
  • Кондиционирование и вентиляция
  • Свой паркинг

Собственник сдает в долгосрочную прямую аренду офисное помещение класса B+ общей площадью 2900 квадр. метров в новом бизнес-центре "9 Акров | Фаза II"... подробнее

Презентация по предложению

Собираете информацию? Получите подробную презентацию в удобном формате!

Посмотреть все похожие предложения
Отнеситесь рационально к процессу поиска нового офиса!

Просто ответьте на 3 вопроса, и наши специалисты сами предложат оптимальные варианты под ваш бюджет

.