8.2
Смотреть все фото
БЕЗ КОМИССИИ ID: 271538 Рейтинг6.0 КлассB

Москва, улица Дмитрия Ульянова, 42

Академическая → 1.46 км
~ 15 мин
Арендная плата в месяц 2 156 800 ₽ 19 200 ₽/м² в год С учётом НДС

Презентация по предложению

Собираете информацию? Получите подробную презентацию в удобном формате!

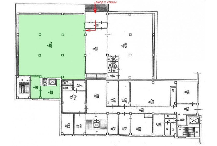
Площадь 1 348 м²
Состояние Готово к въезду
Планировка Открытая
Этаж 1 - 2

Описание

Преимущества
  • Класс B
  • Пешком от метро
  • Кондиционирование и вентиляция
  • Свой паркинг
  • Несколько провайдеров связи
  • Развитая инфраструктура
Собственник сдает в долгосрочную прямую аренду офисное помещение класса B площадью 1348 кв. метров в бизнес-центре "НатИнвест Плаза".

Москва, ЮЗАО, улица Дмитрия Ульянова, 42

Удобная локация здания:
- Автомобиль: близость транспортных магистралей, таких как Профсоюзная улица, Севастопольский проспект и других.
- Возможность аренды парковочных мест.
- Ближайшее метро: от метро "Академическая" всего 15 мин пешком

Офис класса B:
- Помещение с отделкой, готово к въезду
- Кондиционирование: сплит-системы
- Круглосуточная охрана и видеонаблюдение
- Развитая инфраструктура внутри здания

Возможность заключения контракта в соответствии с 44ФЗ по госзакупкам.

Что еще можно узнать о предложении:

1. Мы отправим Вам подробную презентацию с планировкой и фотографиями в течение 10 минут после звонка, чтобы Вы могли поделиться информацией с руководством или с коллегами.
2. Ответим на любые Ваши вопросы, готовы обсуждать любые предложения по коммерческим условиям аренды помещения.
3. Проводим показы ежедневно, договоримся на удобное для Вас время. Можем организовать виртуальный тур по офисному блоку.

Вы можете позвонить нам в любое время. Мы ответим на Ваши вопросы по будням до 19:00, а поздно вечером или в выходные сможем передать Ваш контакт нашему менеджеру.

Коммерческие условия

Арендная плата 2 156 800 ₽
Ставка арендной платы 19 200 ₽ м²/год
Эксплуатационные расходы Включены в ставку
Налоги С учётом НДС
Тип договора Прямая аренда
Срок договора от 11 месяцев
Размер платежей 1 месяц
Обеспечительный платеж 1 месяц
Статус Сдан

О бизнес-центре

Класс B
Этажность 6
Лифты Есть
Общая площадь 18 000 м²
Год постройки 1984
Паркинг Наземный
Вентиляция естественная
Кондиционирование сплит-системы
Телекоммуникации Интернет/Телефония

Расположение

Подробная презентацию по предложению

Собираете информацию? Получите подробную презентацию в удобном формате, чтобы обсудить вариант с коллегами или переслать руководству!

Похожие предложения в других зданиях

БЕЗ КОМИССИИ ID: 1281563 Рейтинг6.4 КлассB

Москва, улица Кржижановского, 29 к1

Профсоюзная → 1.46 км
~ 15 мин
Арендная плата в месяц 1 884 667 ₽ 17 600 ₽/м² в год С учётом НДС
Характеристики 1 285 м² 6 этаж Готово к въезду
Преимущества
  • Класс B
  • Пешком от метро
  • Кондиционирование и вентиляция
  • Развитая инфраструктура

Предлагаем в долгосрочную прямую аренду офисный блок класса B общей площадью 1285 кв. метров в бизнес-центре... подробнее

Презентация по предложению

Собираете информацию? Получите подробную презентацию в удобном формате!

БЕЗ КОМИССИИ ID: 294239 Рейтинг8.5 КлассB+

Москва, Нагорная улица 3, c1

Верхние Котлы → 1.27 км
~ 13 мин
Арендная плата в месяц 2 246 667 ₽ 20 000 ₽/м² в год С учётом НДС
Характеристики 1 348 м² 2 этаж Под отделку
Преимущества
  • Класс B+
  • Пешком от метро
  • Новое строительство
  • Кондиционирование и вентиляция
  • Свой паркинг

Предлагается в долгосрочную прямую аренду офис класса B+ площадью 1348 кв. метров в новом бизнес-центре "НПК Крунит"... подробнее

Презентация по предложению

Собираете информацию? Получите подробную презентацию в удобном формате!

БЕЗ КОМИССИИ ID: 1320300 Рейтинг6.2 КлассB

Москва, улица Кржижановского, 7 к2

Профсоюзная → 568 м
~ 6 мин
Арендная плата в месяц 2 000 096 ₽ 17 900 ₽/м² в год С учётом НДС
Характеристики 1 344 м² 1 - 4 этаж Готово к въезду
Преимущества
  • Класс B
  • Пешком от метро
  • Кондиционирование и вентиляция
  • Свой паркинг

Сдается в долгосрочную аренду офисное помещение класса B площадью 1344 кв.м в историческом бизнес-центре... подробнее

Презентация по предложению

Собираете информацию? Получите подробную презентацию в удобном формате!

БЕЗ КОМИССИИ ID: 172454 Рейтинг7.7 КлассB+

Москва, Варшавское шоссе, 47 к4

Нагатинская → 936 м
~ 12 мин
Арендная плата в месяц 1 800 000 ₽ 18 000 ₽/м² в год С учётом НДС
Характеристики 1 200 м² 15 этаж Готово к въезду
Преимущества
  • Класс B+
  • Пешком от метро
  • Кондиционирование и вентиляция
  • Свой паркинг
  • Развитая инфраструктура

Предлагаем в долгосрочную прямую аренду офисное помещение класса B+ площадью 1200 квадратных метров в бизнес-центре "Навигатор"... подробнее

Презентация по предложению

Собираете информацию? Получите подробную презентацию в удобном формате!

БЕЗ КОМИССИИ ID: 297619 Рейтинг5.3 КлассB

Москва, улица Каховка, 31 к2

Зюзино → 512 м
~ 5 мин
Арендная плата в месяц 1 870 000 ₽ 16 500 ₽/м² в год С учётом НДС
Характеристики 1 360 м² 8 - 11 этаж Готово к въезду
Преимущества
  • Класс B
  • Пешком от метро
  • Кондиционирование и вентиляция
  • Несколько провайдеров связи

Собственник сдает в долгосрочную прямую аренду офисный блок класса B общей площадью 1360 кв. метров в бизнес-центре... подробнее

Презентация по предложению

Собираете информацию? Получите подробную презентацию в удобном формате!

Посмотреть все похожие предложения
Отнеситесь рационально к процессу поиска нового офиса!

Просто ответьте на 3 вопроса, и наши специалисты сами предложат оптимальные варианты под ваш бюджет

.