8.2
Смотреть все фото
БЕЗ КОМИССИИ ID: 227842 Рейтинг9.0 КлассB+
Бизнес-центр «NEO GEO»

Аренда офиса 799 м²

Москва, улица Бутлерова, 17

Калужская → 840 м
~ 8 мин
Арендная плата в месяц 2 550 100 ₽ 38 300 ₽/м² в год С учётом НДС

Презентация по предложению

Собираете информацию? Получите подробную презентацию в удобном формате!

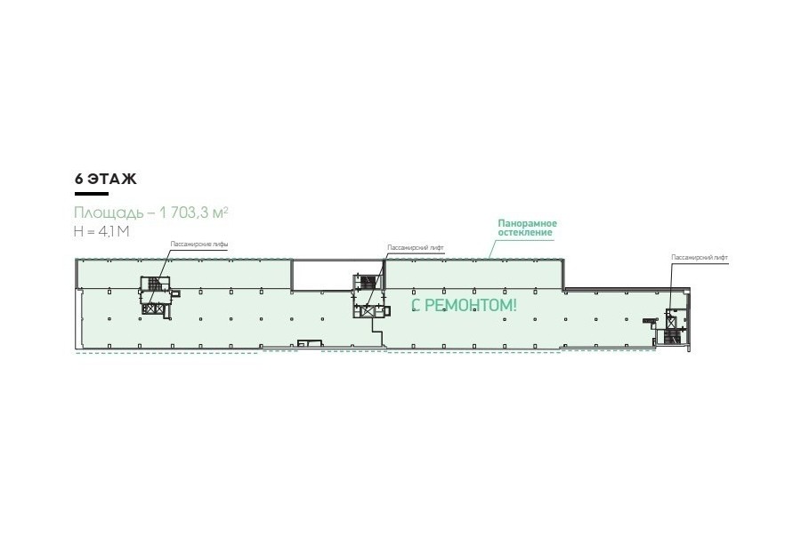
Площадь 799 м²
Состояние Готово к въезду
Планировка Открытая
Этаж 6

Описание

Преимущества
  • Класс B+
  • Пешком от метро
  • Кондиционирование и вентиляция
  • Свой паркинг
Предлагается в прямую аренду офисный блок класса B+ общей площадью 799 квадратных метров в бизнес-центре "NEO GEO".

Москва, ЮЗАО, улица Бутлерова, 17

Удобная локация здания:
- Автомобиль: близость транспортных магистралей, таких как Профсоюзная улица, Севастопольский проспект и других.
- Возможность аренды парковочных мест.
- Ближайшее метро: от метро "Калужская" всего 8 мин пешком

Офис класса B+:
- Помещение готово к въезду
- Вентиляция: Приточно-вытяжная вентиляция
- Кондиционирование: центральное
- Презентабельный центральный ресепшн
- Круглосуточная охрана и видеонаблюдение

Возможность заключения контракта в соответствии с 44ФЗ по госзакупкам.

Что еще можно узнать о предложении:

1. Мы подготовили презентацию с информацией о помещении, фотографиями и планировкой, чтобы Вы могли поделиться ей с коллегами или руководством. Попросите об этом нашего менеджера по телефону в объявлении.
2. Ответим на любые Ваши вопросы, готовы обсуждать любые предложения по коммерческим условиям аренды помещения.
3. Оперативно организуем просмотр помещения, договоримся на любое удобное время, подготовим виртуальный тур.

Звоните нам в любое время. По будням мы сможем ответить на Ваши вопросы до 19:00. В выходные или вечернее время мы передадим Ваш контакт нашему менеджеру по аренде.

Коммерческие условия

Арендная плата 1 453 050 ₽
Ставка арендной платы 38 300 ₽ м²/год
Эксплуатационные расходы Включены в ставку
Налоги С учётом НДС
Тип договора Прямая аренда
Срок договора от 11 месяцев
Размер платежей 1 месяц
Обеспечительный платеж 2 месяц
Статус Сдан

О бизнес-центре

Класс B+
Этажность 21
Лифты Есть
Общая площадь 125 000 м²
Год постройки 2013
Паркинг Подземный
Вентиляция приточно-вытяжная
Кондиционирование центральное
Телекоммуникации Интернет/Телефония

Расположение

Подробная презентацию по предложению

Собираете информацию? Получите подробную презентацию в удобном формате, чтобы обсудить вариант с коллегами или переслать руководству!

Похожие предложения в других зданиях

БЕЗ КОМИССИИ ID: 1381230 Рейтинг9.1 КлассB+

Москва, Профсоюзная улица, 65 к1

Калужская → 309 м
~ 3 мин
Арендная плата в месяц 3 005 470 ₽ 43 500 ₽/м² в год С учётом НДС
Характеристики 829 м² 2 - 4 этаж Готово к въезду
Преимущества
  • Класс B+
  • Пешком от метро
  • Кондиционирование и вентиляция
  • Свой паркинг
  • Несколько провайдеров связи
  • Развитая инфраструктура

Сдается в долгосрочную аренду помещение под офис класса B+ площадью 829 кв. метров в бизнес-центре "Лотте"... подробнее

Презентация по предложению

Собираете информацию? Получите подробную презентацию в удобном формате!

БЕЗ КОМИССИИ ID: 1375858 Рейтинг8.2 КлассB+

Москва, Научный проезд, 17

Калужская → 1.34 км
~ 13 мин
Арендная плата в месяц 2 431 904 ₽ 36 200 ₽/м² в год С учётом НДС
Характеристики 806 м² 2 - 9 этаж Готово к въезду
Преимущества
  • Класс B+
  • Пешком от метро
  • Кондиционирование и вентиляция
  • Свой паркинг

Сдается в долгосрочную аренду офисное помещение класса B+ площадью 806 квадратных метров в бизнес-центре "9 Акров Фаза II"... подробнее

Презентация по предложению

Собираете информацию? Получите подробную презентацию в удобном формате!

БЕЗ КОМИССИИ ID: 1381383 Рейтинг8.2 КлассB+

Москва, Научный проезд, 17

Калужская → 1.34 км
~ 13 мин
Арендная плата в месяц 2 402 992 ₽ 35 800 ₽/м² в год С учётом НДС
Характеристики 805 м² 2 - 8 этаж Готово к въезду
Преимущества
  • Класс B+
  • Пешком от метро
  • Кондиционирование и вентиляция
  • Свой паркинг

Предлагаем в прямую аренду офис класса B+ общей площадью 805 квадр. метров в бизнес-центре "9 Акров Фаза II"... подробнее

Презентация по предложению

Собираете информацию? Получите подробную презентацию в удобном формате!

БЕЗ КОМИССИИ ID: 1375857 Рейтинг8.2 КлассB+

Москва, Научный проезд, 17

Калужская → 1.34 км
~ 13 мин
Арендная плата в месяц 2 378 558 ₽ 37 300 ₽/м² в год С учётом НДС
Характеристики 766 м² 2 - 4 этаж Готово к въезду
Преимущества
  • Класс B+
  • Пешком от метро
  • Кондиционирование и вентиляция
  • Свой паркинг

Предлагается в прямую аренду офисный блок класса B+ общей площадью 766 квадратных метров в бизнес-центре "9 Акров Фаза II"... подробнее

Презентация по предложению

Собираете информацию? Получите подробную презентацию в удобном формате!

БЕЗ КОМИССИИ ID: 1327114 Рейтинг8.2 КлассB+

Москва, Научный проезд, 17

Калужская → 1.34 км
~ 13 мин
Арендная плата в месяц 2 154 000 ₽ 36 000 ₽/м² в год С учётом НДС
Характеристики 718 м² 10 этаж Готово к въезду
Преимущества
  • Класс B+
  • Пешком от метро
  • Кондиционирование и вентиляция
  • Свой паркинг

Предлагаем в прямую аренду помещение под офис класса B+ площадью 718 кв. метров в бизнес-центре "9 Акров Фаза II"... подробнее

>

Виртуальный тур

Презентация по предложению

Собираете информацию? Получите подробную презентацию в удобном формате!

Посмотреть все похожие предложения
Отнеситесь рационально к процессу поиска нового офиса!

Просто ответьте на 3 вопроса, и наши специалисты сами предложат оптимальные варианты под ваш бюджет

.